Groene Hilledijk 201B02 3073 AD Rotterdam

97m2
Wonen
4
Kamers
0m2
Perceel
1925
Bouwjaar
RUIME 4-KAMERWONING VAN CA. 97 M2, VERDEELD OVER TWEE VERDIEPINGEN, MET BALKON EN DRIE SLAAPKAMERS NABIJ ZUIDPLEIN

Aan de Groene Hilledijk 201B02 in Rotterdam ligt deze ruime 4-kamerwoning van circa 97 m2. De woning beschikt over drie slaapkamers, een open keuken met keukeneiland, een balkon aan de achterzijde en twee toiletten, verdeeld over twee verdiepingen.

INDELING EN LEEFRUIMTE
De entree biedt toegang tot een overzichtelijke indeling met duidelijke functies per ruimte. De woning voelt ruim en logisch opgezet. De verdeling over twee verdiepingen zorgt voor een prettige scheiding tussen wonen en slapen.

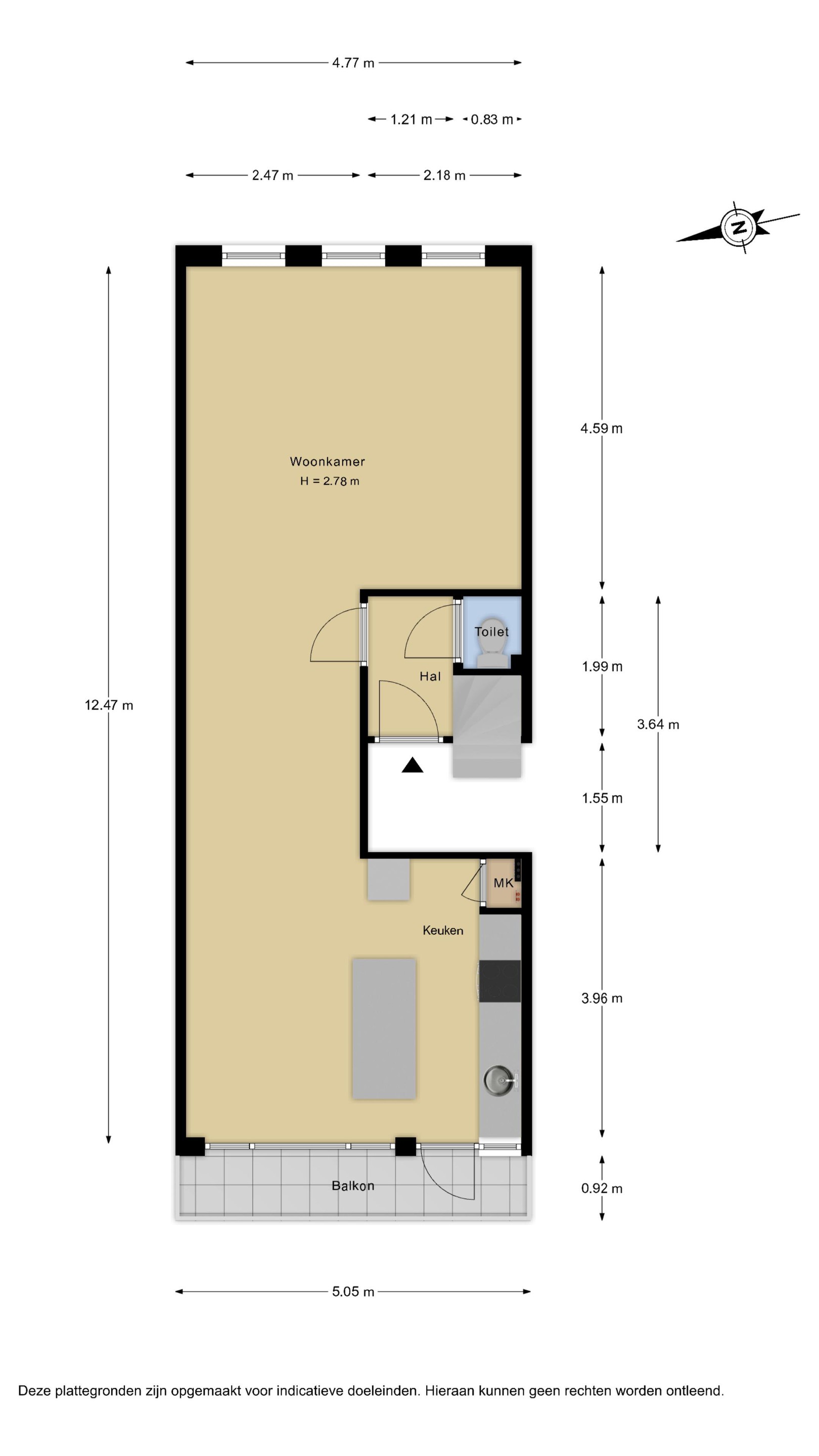
WOONKAMER EN KEUKEN
De woonkamer vormt het hart van de woning en sluit aan op de open keuken. De keuken beschikt over diverse inbouwapparatuur en een keukeneiland, wat zorgt voor extra werk- en zitruimte. Vanuit de keuken bereikt u het balkon aan de achterzijde.

BALKON
Het balkon ligt rustig aan de achterzijde en biedt een fijne buitenruimte bij de leefkeuken. Deze plek nodigt uit tot een ontspannen moment, weg van de drukte van de straat.

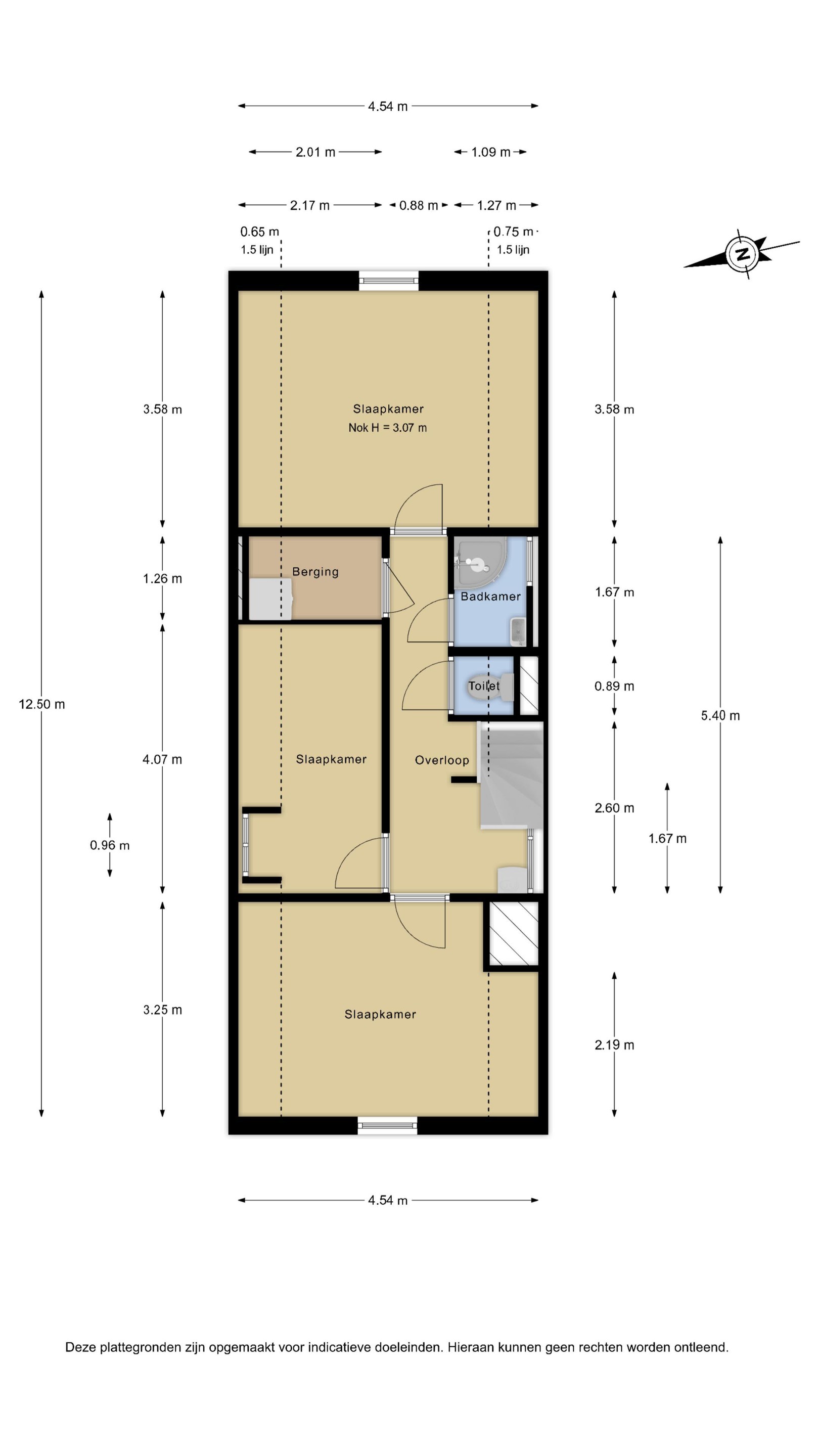
SLAAPKAMERS
De woning telt drie slaapkamers, verdeeld over de verdiepingen. Elke kamer biedt praktische afmetingen en een rustige ligging. Deze ruimtes lenen zich voor slapen, werken of hobby’s, passend bij verschillende woonwensen.

BADKAMER EN SANITAIR
De badkamer beschikt over een wastafelmeubel en een inloopdouche. Op beide verdiepingen bevindt zich een toilet, wat bijdraagt aan comfort en dagelijks gemak.

OMGEVING EN LIGGING
De woning ligt op korte afstand van winkelcentrum Zuidplein, openbaar vervoer en diverse voorzieningen. Metro en bus verbinden de locatie snel met het centrum en andere delen van Rotterdam. De omgeving kenmerkt zich door stedelijke dynamiek en goede bereikbaarheid.

INTERESSE?
Deze woning combineert ruimte, functionaliteit en een centrale ligging. Neem contact op voor aanvullende informatie of plan een bezichtiging om de indeling en sfeer zelf te ervaren.

GLOBALE INDELING
Ontdek met de plattegronden de indeling en ervaar de mogelijkheden. Laat je inspireren door de sfeervolle foto’s en wandel virtueel door de woning. Krijg een levensechte indruk. Klik, kijk en ontdek hoe deze plek jouw nieuwe thuis kan worden!

ALGEMEEN
Oppervlakte woning ca. 97m2
Oppervlakte buitenruimte ca. 5m2
Inhoud woning ca. 198m3
Oplevering in overleg, kan snel
Bouwjaar omstreeks 1925
Eigen grond
Verwarming en warm water d.m.v. cv-ketel
Definitief energielabel E
Projectnotaris van toepassing
Verkoop onder voorbehoud van definitieve splitsing
VvE wordt definitief geactiveerd bij een professionele VvE beheerder, concept stukken staan gereed, maandelijkse bijdrage € 188,79

Ondanks dat deze aanmelding met de nodige zorgvuldigheid is samengesteld, is alle verstrekte informatie nadrukkelijk onder voorbehoud, uitsluitend indicatief, bedoeld als voorbeeld en daardoor niet bindend voor het eindresultaat. Aan deze woninginformatie kunnen geen rechten of verplichtingen worden ontleend, onzerzijds wordt geen enkele aansprakelijkheid aanvaard voor enige onvolledigheid, onjuistheid of anderszins, dan wel de gevolgen daarvan.

Lees meer

Kenmerken

Overdracht

Prijs per m2
€ 3.041
Aangeboden sinds
14 januari 2026
Status
Beschikbaar
Aanvaarding
Direct

Bouw

Soort appartement
Portiekflat, appartement
Soort bouw
Bestaande bouw
Bouwjaar
1925
Soort dak
Zadeldak
Staat van onderhouden binnen
Uitstekend
Staat van onderhouden buiten
Goed

Oppervlakte en inhoud

Inhoud van de woning
315 m3
Oppervlakte gebouwgebonden buitenruimten
5 m2

Indeling

Aantal kamers
4
Aantal slaapkamers
3
Aantal woonlagen
2
Voorzieningen
Balkon, kabel-tv

Buitenruimte

Balkon
Ja
Schuur/berging
Nee

Maandlasten berekenen

De maandlasten voor je woning bestaan uit meer dan alleen de hypotheeklasten. Hieronder vind je een overzicht van de bijkomende kosten en lasten. Zo weet je precies wat je huis per maand gaat kosten. En met de handige vergelijkers kun je ook nog eens snel de beste deals sluiten!

  • Kaart
  • Streetview