Generaal Spoorlaan 367 2283 GJ Rijswijk

106m2
Wonen
3
Kamers
0m2
Perceel
1959
Bouwjaar
In een groene en geliefde woonomgeving in Rijswijk bevindt zich dit ruime en goed onderhouden 3-kamer dubbel bovenhuis van circa 106 m2. De woning kenmerkt zich door het vrije, groene uitzicht, de royale lichtinval en de praktische indeling verdeeld over twee woonlagen. Dankzij de combinatie van ruimte, comfort en ligging is dit een ideale woning voor wie centraal wil wonen met alle voorzieningen binnen handbereik.

Begane grond
Via het afgesloten portiek bereikt u de entree van de woning op de eerste verdieping. De hal biedt toegang tot de meterkast, een handige voorraadkast en de verschillende vertrekken. De ruime woonkamer vormt het hart van de woning en profiteert van grote raampartijen aan zowel de voor- als achterzijde, wat zorgt voor een aangename lichtinval gedurende de dag.
De open keuken, die voorheen als slaapkamer diende, is praktisch ingericht en voorzien van diverse inbouwapparatuur, waaronder een 4-pits keramische kookplaat, oven, afzuigkap en vaatwasser (vernieuwd in 2020). De losse Amerikaanse koelkast blijft achter. Vanuit de woonkamer heeft u toegang tot twee balkons: een kleiner balkon aan de voorzijde en een ruim balkon aan de achterzijde met vrij uitzicht op het groen.
De badkamer is royaal opgezet en compleet uitgerust met een jacuzzi, aparte douche, wastafelmeubel en een opstelling voor wasmachine en droger. Het toilet is in 2021 vernieuwd en verkeert in nette staat.
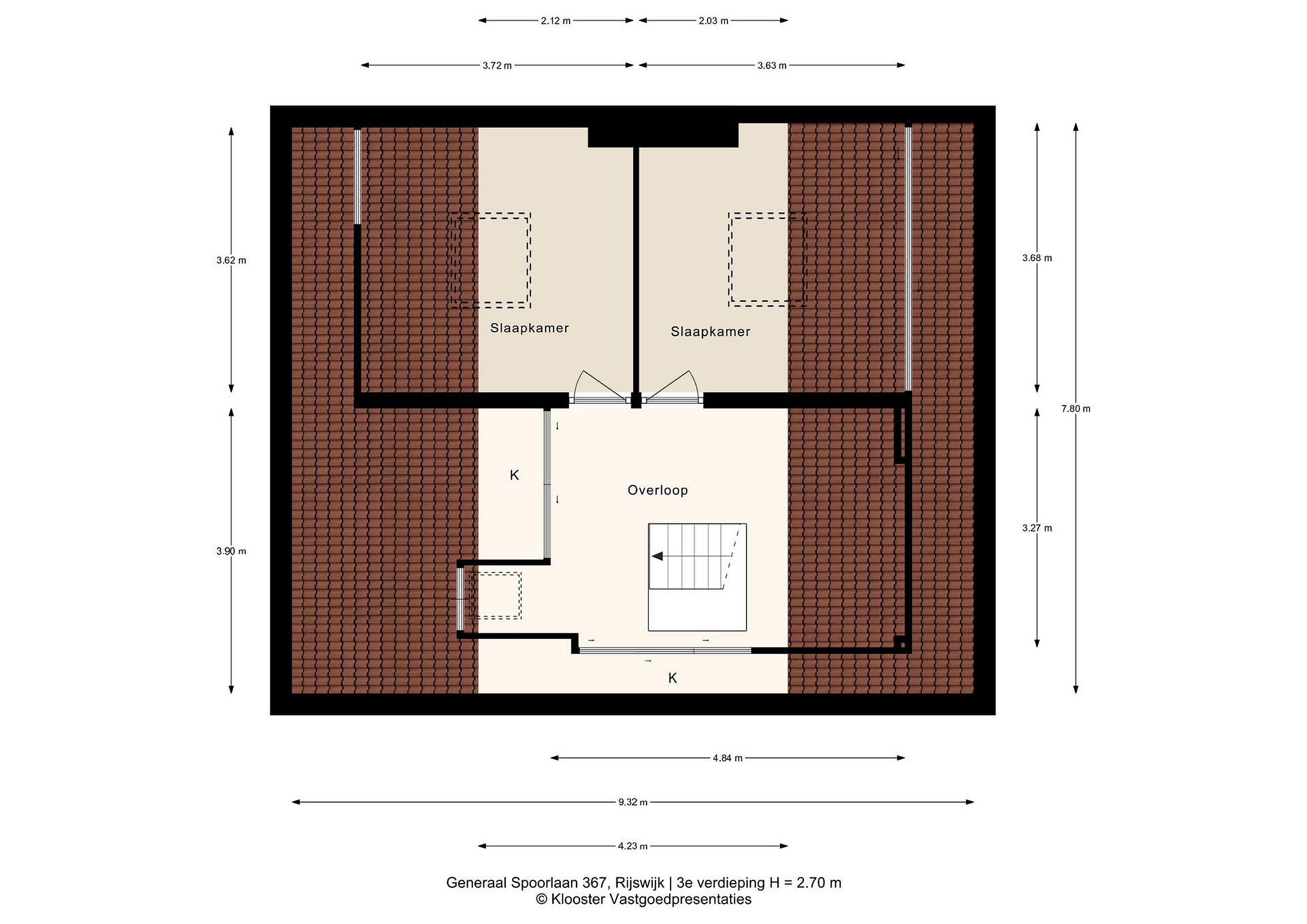
Op de tweede verdieping bevindt zich een ruime overloop die zich uitstekend leent als werkplek of studieruimte. Daarnaast zijn er twee lichte en goed bemeten slaapkamers, ideaal voor een gezin, logees of een thuiswerkplek.

Omgeving
De woning is gelegen in een rustige en groene wijk van Rijswijk, bekend om haar prettige woonklimaat en centrale ligging. Op korte afstand vindt u diverse winkels, supermarkten en winkelcentra voor de dagelijkse boodschappen. Ook scholen, sportfaciliteiten en recreatiemogelijkheden bevinden zich in de directe omgeving.
De bereikbaarheid is uitstekend: openbaar vervoer (tram, bus en trein) is op loop- of fietsafstand, en via de nabijgelegen uitvalswegen zijn steden als Den Haag, Delft en Rotterdam snel en eenvoudig te bereiken. Dit maakt de woning bijzonder geschikt voor forenzen.

Samenvattend
Een ruime, lichte en goed onderhouden woning op een groene en centrale locatie, met alle voorzieningen binnen handbereik. Een ideale kans voor wie comfortabel wil wonen in een prettige woonomgeving met uitstekende bereikbaarheid.


Details
- Type woning: appartement (dubbel bovenhuis)
- Woonoppervlakte: ca. 106 m2
- Bouwjaar: 1959
- Gelegen op eigen grond
- Actieve VvE, bijdrage € 169,50 per maand (incl. opstal- en glasverzekering, water, glazenwasser en tuinonderhoud)
- Verwarming middels cv-combiketel (2010)
- Warm water via centrale voorziening
- Volledig voorzien van dubbel glas (kunststof kozijnen beneden, houten kozijnen boven)
- Toilet vernieuwd in 2021
- Diverse werkzaamheden uitgevoerd, waaronder aanpassing trap (2020) en vervanging keukendeurtjes (2020)
- Berging in de onderbouw
- Materialen- en ouderdomsclausule van toepassing
- Oplevering in overleg

Lees meer

Kenmerken

Overdracht

Prijs per m2
€ 3.538
Aangeboden sinds
19 maart 2026
Status
Beschikbaar
Aanvaarding
In overleg

Bouw

Soort appartement
Portiekflat, appartement
Soort bouw
Bestaande bouw
Bouwjaar
1959
Staat van onderhouden binnen
Goed
Staat van onderhouden buiten
Goed

Oppervlakte en inhoud

Inhoud van de woning
290 m3
Oppervlakte externe bergruimte
7 m2
Oppervlakte gebouwgebonden buitenruimten
8 m2
Oppervlakte overige inpandige ruimten
32 m2

Indeling

Aantal kamers
3
Aantal slaapkamers
2
Aantal woonlagen
2
Voorzieningen
Balkon, schuur/berging, jacuzzi

Buitenruimte

Balkon
Ja
Schuur/berging
Ja

Maandlasten berekenen

De maandlasten voor je woning bestaan uit meer dan alleen de hypotheeklasten. Hieronder vind je een overzicht van de bijkomende kosten en lasten. Zo weet je precies wat je huis per maand gaat kosten. En met de handige vergelijkers kun je ook nog eens snel de beste deals sluiten!

  • Kaart
  • Streetview