Johanna Naberstraat 152 1442 BD Purmerend

74m2
Wonen
3
Kamers
0m2
Perceel
1962
Bouwjaar
WONEN OP LOOPAFSTAND VAN CENTRUM PURMEREND

Heerlijk licht appartement aan de rustige zijde van dit complex gelegen op de 3e verdieping met zicht op groene woonwijk en grenzend aan het prachtig vernieuwde Kooimanpark.

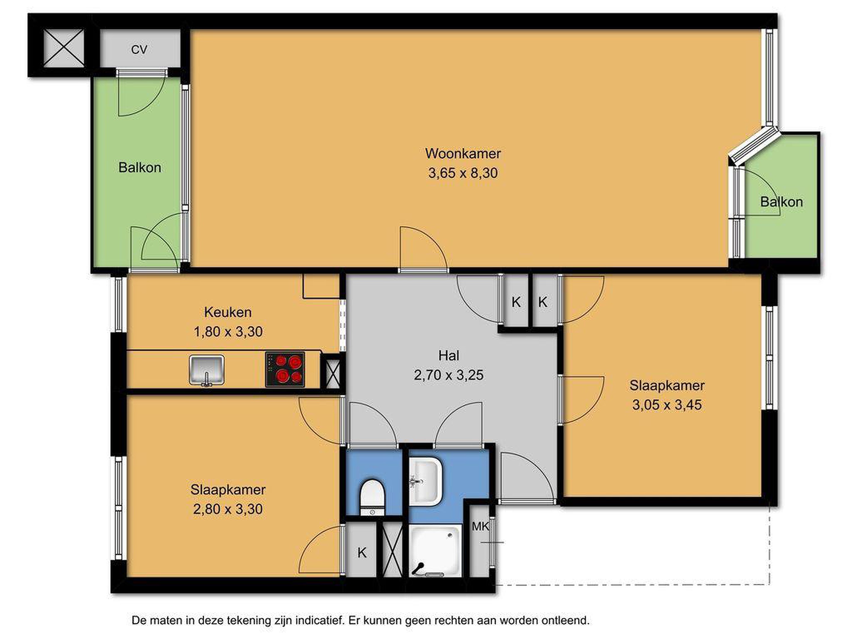
De woning is deels gemoderniseerd en voorzien van inbouwkeuken met kookplaat, oven, afzuigkap, koel-diepvriescombinatie. Verder zijn er 2 ruime slaapkamers en een grote hal in het appartement aanwezig. Op de begane grond is een praktische berging gesitueerd voor opslag en stalling fietsen.

Het appartement is op loopafstand van het gezellige centrum van Purmerend met zijn winkels, terrasjes en restaurants. Het openbaar vervoer is op loopafstand en uitvalswegen naar o.a. Amsterdam via de A-7 zijn nabij.
Begane grond
Entree met brievenbussen, trapopgang en binnendoor met toegang tot de berging.

Eerste verdieping
Derde verdieping
Entree, hal, keuken, doorzon woonkamer met balkons aan weerszijden, 2 ruime slaapkamers, separate toiletruimte met naastgelegen badkamer voorzien van wastafel en douche. Eigen berging op de begane grond.

Details
- Grootonderhoud uitgevoerd met plaatsing nieuwe kunststof ramen en kozijnen
- Vrij uitzicht aan beide zijden
- Voldoende parkeergelegenheid op de openbare weg
- Nabij Kooimanpark en centrum Purmerend
- Maandelijkse servicekosten bedragen €260,-
- Aanvaarding kan desgewenst spoedig

Lees meer

Kenmerken

Overdracht

Prijs per m2
€ 4.189
Aangeboden sinds
25 oktober 2025
Status
Beschikbaar
Aanvaarding
Direct

Bouw

Soort appartement
Portiekflat, appartement
Soort bouw
Bestaande bouw
Bouwjaar
1962
Soort dak
Plat dak
Staat van onderhouden binnen
Goed
Staat van onderhouden buiten
Goed

Oppervlakte en inhoud

Inhoud van de woning
240 m3
Oppervlakte externe bergruimte
6 m2
Oppervlakte gebouwgebonden buitenruimten
6 m2

Indeling

Aantal kamers
3
Aantal slaapkamers
2
Aantal woonlagen
1
Voorzieningen
Vve checklist, balkon, schuur/berging, ventilatie, kabel-tv

Buitenruimte

Balkon
Ja
Schuur/berging
Ja

Maandlasten berekenen

De maandlasten voor je woning bestaan uit meer dan alleen de hypotheeklasten. Hieronder vind je een overzicht van de bijkomende kosten en lasten. Zo weet je precies wat je huis per maand gaat kosten. En met de handige vergelijkers kun je ook nog eens snel de beste deals sluiten!

  • Kaart
  • Streetview