Verkocht OV

Rietgors 1014 3435 CB Nieuwegein

56m2
Wonen
2
Kamers
0m2
Perceel
1981
Bouwjaar
DEZE WONING IS VERKOCHT ONDER VOORBEHOUD!!!

CENTRAAL WONEN TEGENOVER CITY PLAZA, COLLECTIEF DAKTERRAS (CA. 22M2) THEATER DE KOM EN DE BIBLIOTHEEK
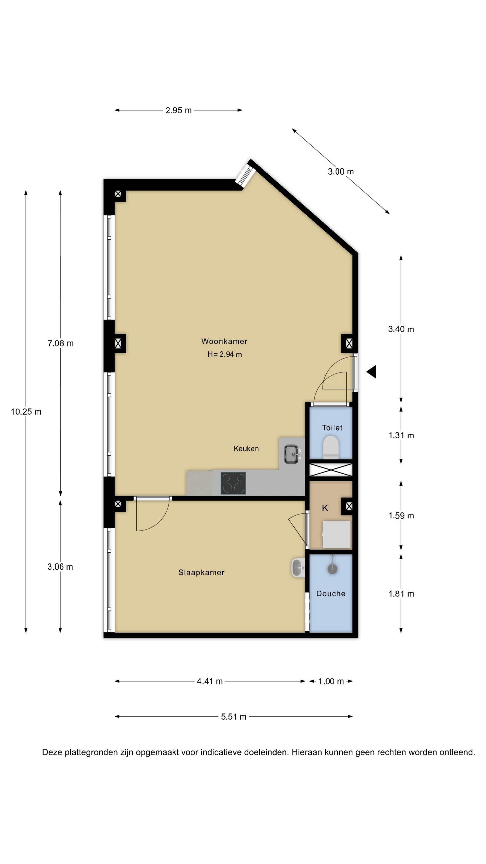
Stap uw deur uit en sta direct in het bruisende hart van Nieuwegein. Deze goed ingedeelde 2-kamerwoning op de 1e-verdieping ca. 56m2 aan de Rietgors biedt u een combinatie van comfort, gemak en een levendige omgeving. m

MODERN WONEN MET ALLES BINNEN HANDBEREIK
Het gebouw, staat op eigen grond, is getransformeerd omstreeks 2018 en is voor de veiligheid voorzien van videofoon, zodat u ziet wie er voor de deur staat. De woning is voorzien van nette vloer- en wandafwerking, heeft een moderne douche en keuken (voorzien van kookplaat, koelkast met vriesvak en vaatwasser) en heeft een definitief energielabel A.

VOORZIENINGEN IN HET COMPLEX
U bereikt uw woning eenvoudig met de lift. Voor extra ontspanning is er een collectief dakterras van circa 22m2 op de 2e verdieping (aan de Geelgors), bereikbaar voor de Rietgors-woningen via een loopbrug. Voor bewoners van de Geelgors: bewaar uw fiets veilig in de collectieve fietsenstalling.

LEVENDIGE EN GROENE OMGEVING
Met het City Plaza direct tegenover de entree geniet u van winkels, horeca en dagelijkse voorzieningen binnen enkele minuten. Ontspanning vindt u in Park Oudegein en het IJsselbos, beide op korte afstand. Theater De Kom en de bibliotheek liggen letterlijk voor de deur.

OPTIMALE BEREIKBAARHEID
De bushalte lijn 31 bevindt zich voor de deur, tramhalte Merwestein is op loopafstand en de U-tram ligt aan de overzijde bij City Plaza. Hierdoor bereikt u Utrecht Centrum in korte tijd.

KOM KIJKEN EN ERVAAR HET ZELF
Plan direct een bezichtiging en ontdek hoe deze woning u een comfortabele en centrale woonplek in Nieuwegein biedt.

GLOBALE INDELING:
Ontdek met de plattegronden de indeling en ervaar de mogelijkheden. Laat je inspireren door de sfeervolle foto’s en wandel virtueel door de woning. Krijg een levensechte indruk. Klik, kijk en ontdek hoe deze plek jouw nieuwe thuis kan worden!

ALGEMEEN:
Oppervlakte woning ca. 56m2
Inhoud woning ca. 199m3
Oplevering in overleg
Bouwjaar omstreeks 1984, transformatiejaar omstreeks 2018
Eigen grond
Verwarming en warm water: stadsverwarming
Het complex is voorzien van lift
Collectief dakterras (ca. 22m2) op de 2e verdieping aan de Geelgors voor de woningen aan de Rietgors te bereiken via een loopbrug
Definitief energielabel A
Actieve VvE, maandelijkse bijdrage thans € 207,60 per 2025
Voorschot stookkosten en koud water circa € 88,74 per maand per 2025
Voorschot elektra circa €65.31 per maand per 2025
Projectnotaris van toepassing


Ondanks dat deze aanmelding met de nodige zorgvuldigheid is samengesteld, is alle verstrekte informatie nadrukkelijk onder voorbehoud, uitsluitend indicatief, bedoeld als voorbeeld en daardoor niet bindend voor het eindresultaat. Aan deze woninginformatie kunnen geen rechten of verplichtingen worden ontleend, onzerzijds wordt geen enkele aansprakelijkheid aanvaard voor enige onvolledigheid, onjuistheid of anderszins, dan wel de gevolgen daarvan.

Lees meer

Kenmerken

Overdracht

Prijs per m2
€ 5.357
Aangeboden sinds
23 september 2025
Status
Verkocht onder voorbehoud
Aanvaarding
Direct

Bouw

Soort appartement
Portiekflat, corridorflat
Soort bouw
Bestaande bouw
Bouwjaar
1981
Soort dak
Plat dak
Staat van onderhouden binnen
Uitstekend
Staat van onderhouden buiten
Goed

Oppervlakte en inhoud

Indeling

Aantal kamers
2
Aantal slaapkamers
1
Aantal woonlagen
1
Voorzieningen
Ventilatie, kabel-tv, lift

Buitenruimte

Balkon
Nee
Schuur/berging
Nee

Maandlasten berekenen

De maandlasten voor je woning bestaan uit meer dan alleen de hypotheeklasten. Hieronder vind je een overzicht van de bijkomende kosten en lasten. Zo weet je precies wat je huis per maand gaat kosten. En met de handige vergelijkers kun je ook nog eens snel de beste deals sluiten!

  • Kaart
  • Streetview