Verkocht

Mozartstraat 149 2324 XT Leiden

70m2
Wonen
4
Kamers
0m2
Perceel
1961
Bouwjaar
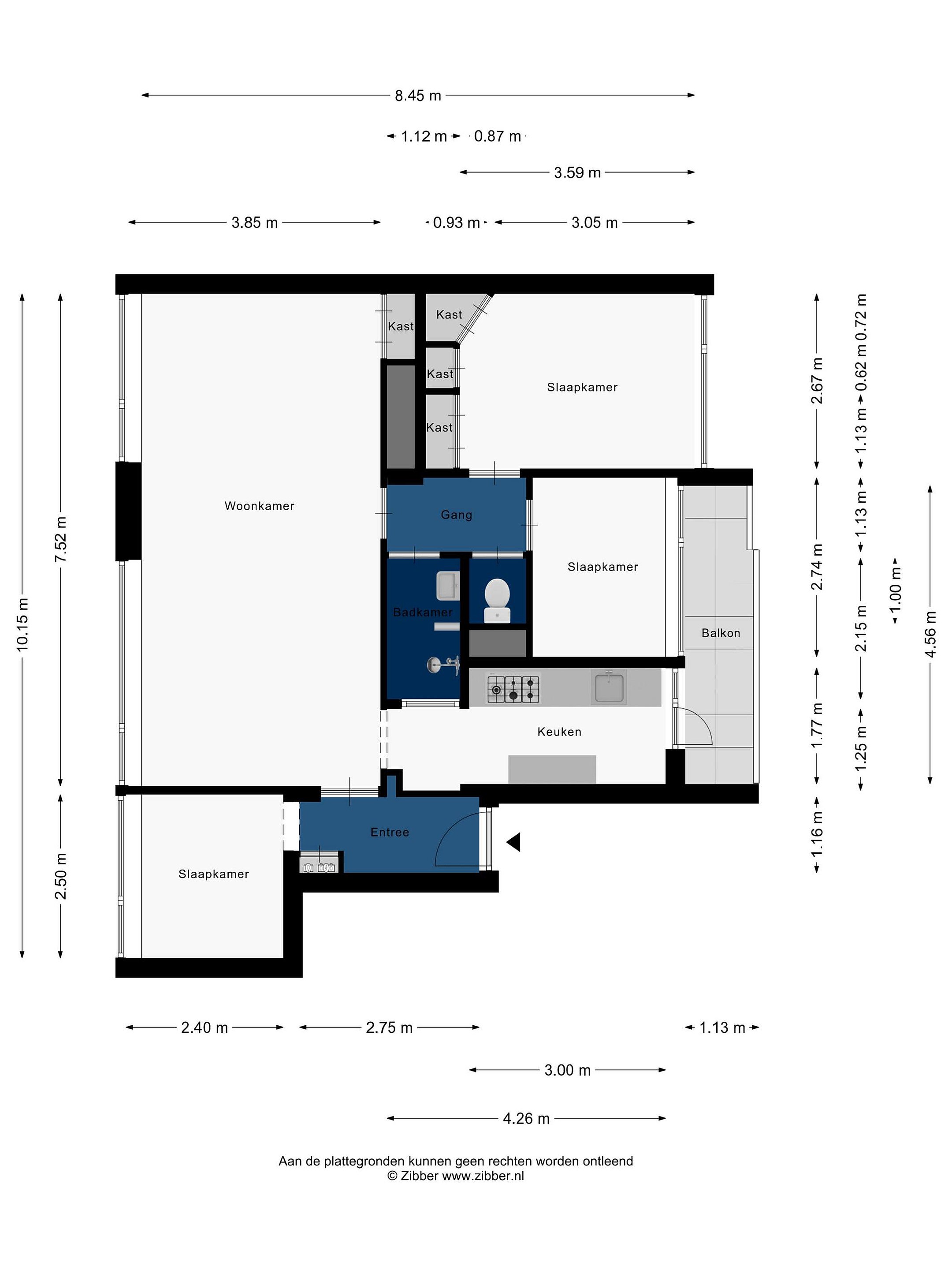
In de Componistenwijk vindt u dit per direct te betrekken 4-kamerappartement gelegen op de 1e woonlaag van het op een centrale locatie gelegen appartementencomplex in Leiden. Lichte woonkamer, afgesloten keuken, badkamer met douche, drie slaapkamers en een balkon met fijn groen uitzicht op de gemeenschappelijke binnentuin. Nieuwsgierig geworden? Dit zijn enkele kenmerken van deze ideale starterswoning gelegen in een groene rustige woonomgeving welke uitermate geschikt is voor starters, maar ook voor gezinnen met kinderen. De ruime berging vindt u in de onderbouw. De woning is gelegen nabij winkelcentra De Luifelbaan en Wagnerplein, diverse sport- en recreatievoorzieningen, Bio Science Park, LUMC, universiteit, scholen, openbaar vervoer en uitvalswegen (A4/N11 en A44/N206). Met de komst van de RijnlandRoute is de bereikbaarheid nog beter geworden. NS Leiden Centraal, NS De Vink en het bruisende centrum van Leiden bevinden zich op fietsafstand.
Begane grond
Centraal entree met brievenbussen, bellentableau en trappenhuis. Eigen berging in het souterrain.

Via het trappenhuis (géén lift aanwezig) bereikt u de 1e verdieping:

Entree woning, gang met meterkast, intercom en toegang tot een slaapkamer aan de achterzijde van de woning. Door de grote raampartij geniet u van een opvallend lichte woonkamer met leuk (groen) uitzicht. De vaste kast zorgt voor extra bergruimte. De keuken bevindt zich aan de voorzijde van de woning en beschikt o.a. over een 5-pitskookplaat, combi oven, vaatwasser en de opstelplaats voor de cv-ketel (2017 / huur: € 27,- per maand). Het balkon is gelegen op het oosten (ochtend-/middagzon). Het groene uitzicht op de gemeenschappelijke binnentuin maakt dit balkon extra aantrekkelijk. Via de tussenhal bereikt u de toiletruimte en de badkamer met wastafel, douche, designradiator en een tegelvloer met vloerverwarming. Aan de voorzijde van de woning bevindt zich een slaapkamer met vaste kast inclusief wasmachineaansluiting. De 3e slaapkamer bevindt zich ook aan de voorzijde van de woning en maakt het geheel compleet.

De woning is voorzien van kunststof kozijnen en dubbele beglazing. Betaald parkeren/parkeervergunning.

Het betreft hier een actieve VvE, servicekosten: € 210,- per maand.

Meetrapport NEN 2580 beschikbaar.

Oplevering: per direct / in overleg.

Bouwjaar: 1961
Gebruiksoppervlakte wonen: 69,70 m2
Bruto inhoud woning: 230,26 m3

Ten aanzien van eventuele foutieve vermeldingen aanvaardt Werk Makelaardij B.V. geen enkele aansprakelijkheid

Lees meer

Verkoopgeschiedenis

Aangeboden sinds
5 maart 2026
Verkoopdatum
24 april 2026
Looptijd
2 maanden

Kenmerken

Overdracht

Prijs per m2
€ 5.000
Aangeboden sinds
5 maart 2026
Status
Verkocht
Aanvaarding
Direct

Bouw

Soort appartement
Portiekflat, appartement
Soort bouw
Bestaande bouw
Bouwjaar
1961
Staat van onderhouden binnen
Goed
Staat van onderhouden buiten
Goed

Oppervlakte en inhoud

Inhoud van de woning
230 m3
Oppervlakte externe bergruimte
11 m2
Oppervlakte gebouwgebonden buitenruimten
5 m2

Indeling

Aantal kamers
4
Aantal slaapkamers
3
Aantal woonlagen
1
Voorzieningen
Vve checklist, balkon, schuur/berging

Buitenruimte

Balkon
Ja
Schuur/berging
Ja

Maandlasten berekenen

De maandlasten voor je woning bestaan uit meer dan alleen de hypotheeklasten. Hieronder vind je een overzicht van de bijkomende kosten en lasten. Zo weet je precies wat je huis per maand gaat kosten. En met de handige vergelijkers kun je ook nog eens snel de beste deals sluiten!

  • Kaart
  • Streetview