Verkocht

Park de Kotten 61 7522 EC Enschede

85m2
Wonen
3
Kamers
0m2
Perceel
1964
Bouwjaar
Wonen op misschien wel het mooiste groene plekje in Park de Kotten!
Ben jij op zoek naar een licht, ruim hoekappartement op een heerlijke locatie in Enschede en op korte afstand van zowel het centrum als de Universiteit Twente? In Park de Kotten 61 woon je rustig, tussen het groen, met alles bij de hand.
Stap binnen in dit appartement en het eerste wat je opvalt, is het licht. Heel veel licht! Dankzij het extra zijraam geniet je van een doorzonwoonkamer waar het zonnetje altijd wel een plekje vindt.
Een deel van het balkon aan de voorzijde is slim bij de keuken getrokken. Dit betekent net wat meer ruimte en nog steeds die heerlijke buitenlucht binnen handbereik door de aangebrachte schuifpui.
Ook aan de achterzijde woonkamer is een balkon waar regelmatig de eekhoorntjes je komen begroeten.
Voor natuurliefhebbers is de ligging echt top. Met volop sportvelden, scholen op korte afstand én het prachtige Abraham Ledeboerpark. Even uitwaaien of hardlopen? Dat kan hier allemaal!
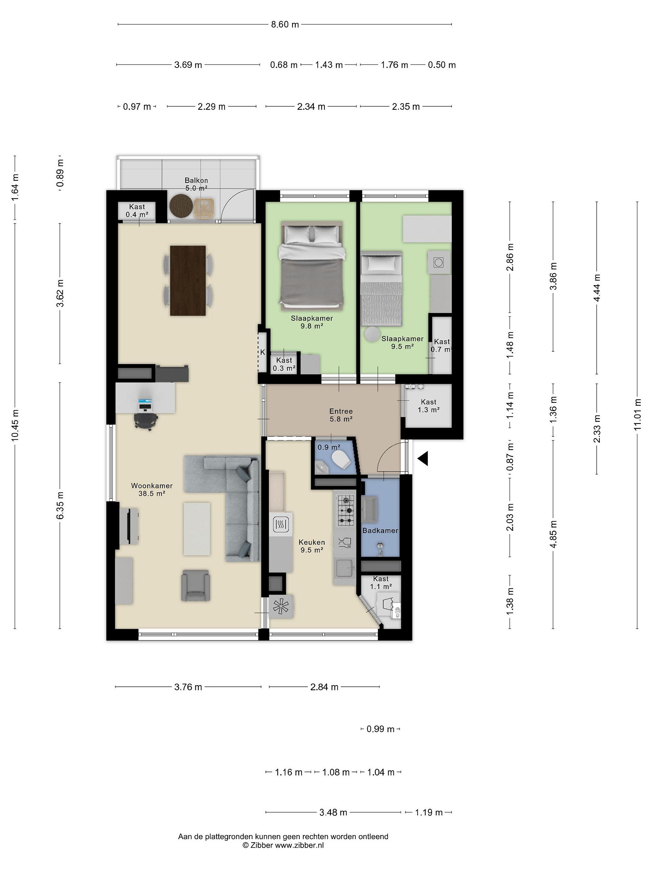
Dit appartement heeft twee slaapkamers. Ook de badkamer is praktisch ingericht. Verder heb je de beschikking over twee bergingen, dus geen gedoe met fietsen in de hal of spullen die rondslingeren.
Natuurlijk kun je, indien gewenst, ook de gezamenlijke fietsenstalling gebruiken.

De keuken biedt genoeg kastruimte en is direct verbonden met het balkon. Naast de keuken is een afgesloten ruimte, waarin de Cv installatie, de wasmachine-aansluiting en opbergruimte.
Goed nieuws: de Cv-ketel is recent vervangen. Daardoor kun je rekenen op een comfortabel en energiezuinig huis, zonder onverwachte kosten direct na je verhuizing. Het energielabel C geeft ook alvast een hoop rust wat betreft je maandlasten.
Bouwjaar 1964 betekent robuust en solide. Natuurlijk is het appartement door de jaren heen netjes onderhouden.
Kom gerust kijken en laat je overtuigen door het licht, het groen en de fijne sfeer van dit appartement.

Vereniging van Eigenaren:
De servicekosten bedragen € 190 per maand (inclusief bergingen). Hierbij inbegrepen onder andere de opstalverzekering, schoonmaakkosten, onderhoud groenvoorzieningen en reserveringen voor groot onderhoud.

De ouderdomsclausule is van toepassing.
Op appartementen welke gebouwd zijn vóór 1993 is de asbestclausule van toepassing;

In Enschede is een opkoopbescherming van kracht wat inhoud dat het appartement alleen verkocht mag worden aan particulieren voor zelfbewoning. Voor meer informatie raadpleeg de website van de Gemeente Enschede.


Begane grond
Indeling:
Souterrain: Eigen afgesloten dubbele berging.

Eerste verdieping
Tweede woonlaag, eerste verdieping:
Hal/entree waaraan de badkamer met inloopdouche en wastafel, de separate toiletruimte met toilet en fonteintje, 2 slaapkamers, keuken en toegang tot de woonkamer.
De doorzonwoonkamer heeft een balkon aan de achterzijde en veel lichtinval door het zijraam.

Details
- Hoek appartement met doorzonwoonkamer;
- Gebruiksoppervlakte wonen 85 m2;
- Inhoud 281 m3;
- 2 Bergingen;
- 2 slaapkamers;
- Badkamer met inloopdouche en wastafelmeubel;
- Keuken met gaskookplaat, oven en vaatwasser;
- Gedeelte balkon voorzijde bij keuken aangetrokken;
- Aparte afgesloten ruimte voor de Cv installatie en de wasmachine;
- Cv installatie recentelijk vernieuwd;
- Energielabel C;
- Achterzijde woonkamer biedt toegang tot het balkon;
- Zeer gunstige ligging ten opzichte van zowel het centrum als de Universiteit Twente;
- Servicekosten € 190,00 per maand.

In de koopakte zal een waarborgsom / bankgarantie van 10% van de koopprijs worden opgenomen.

De maten zijn indicatief. Groottes en oppervlaktes zijn berekend met behulp van een GeoSLAM scanner, uitgevoerd door een extern buro, gebaseerd op de NEN 2580. Bovenstaande objectinformatie en bijlagen zijn met de groots mogelijke zorgvuldigheid samengesteld. Toch bestaat er de mogelijkheid dat er fouten en /of onvolledigheden in voorkomen. Voor de juistheid hiervan kan zowel door verkopers als door Twentse Woningmakelaar geen aansprakelijkheid worden aanvaard en aan de vermelde gegevens geen rechten worden ontleend. Indien bepaalde informatie voor u van wezenlijk belang is dan adviseren wij u deze op juistheid te controleren.
Verkoper heeft te allen tijde het recht van gunning. De koop is pas definitief wanneer beide partijen de koopovereenkomst getekend hebben.

Keurmerk Eerlijk Bieden
Twentse Woningmakelaar beschikt over het keurmerk Eerlijk Bieden.
Eerlijk Bieden is het eerste keurmerk voor makelaars dat een eerlijk biedproces garandeert aan zowel de verkoper als de woningzoeker.
AVG OK-Vignet.
Wij voldoen aan specifieke gestelde voorwaarden welke getoetst is door een onafhankelijke instantie en gaan zorgvuldig met jouw persoonsgegevens om.



Lees meer

Verkoopgeschiedenis

Aangeboden sinds
5 maart 2026
Verkoopdatum
28 maart 2026
Looptijd
23 dagen

Kenmerken

Overdracht

Prijs per m2
€ 3.235
Aangeboden sinds
5 maart 2026
Status
Verkocht
Aanvaarding
In overleg

Bouw

Soort appartement
Portiekflat, appartement
Soort bouw
Bestaande bouw
Bouwjaar
1964
Soort dak
Plat dak
Staat van onderhouden binnen
Goed
Staat van onderhouden buiten
Goed

Oppervlakte en inhoud

Inhoud van de woning
281 m3
Oppervlakte externe bergruimte
12 m2
Oppervlakte gebouwgebonden buitenruimten
4 m2

Indeling

Aantal kamers
3
Aantal slaapkamers
2
Aantal woonlagen
1
Voorzieningen
Vve checklist, schuur/berging, ventilatie, glasvezel

Buitenruimte

Balkon
Nee
Schuur/berging
Ja

Maandlasten berekenen

De maandlasten voor je woning bestaan uit meer dan alleen de hypotheeklasten. Hieronder vind je een overzicht van de bijkomende kosten en lasten. Zo weet je precies wat je huis per maand gaat kosten. En met de handige vergelijkers kun je ook nog eens snel de beste deals sluiten!

  • Kaart
  • Streetview