Verkocht

Stadspolderring 161 3315 CJ Dordrecht

47m2
Wonen
2
Kamers
0m2
Perceel
1983
Bouwjaar
Wij bieden u deze nette woning aan, met energielabel A. Een 2 kamer woning met een berging in de gewilde wijk Stadspolders. Een ruim balkon met vrij uitzicht, parkeren voor de deur of achter het complex en de bus stopt voor de deur. Het complex is goed onderhouden, heeft een actieve VvE welke keurig beheerd wordt,
Een leuk appartement welke zeker een bezichtiging waard is.
Begane grond
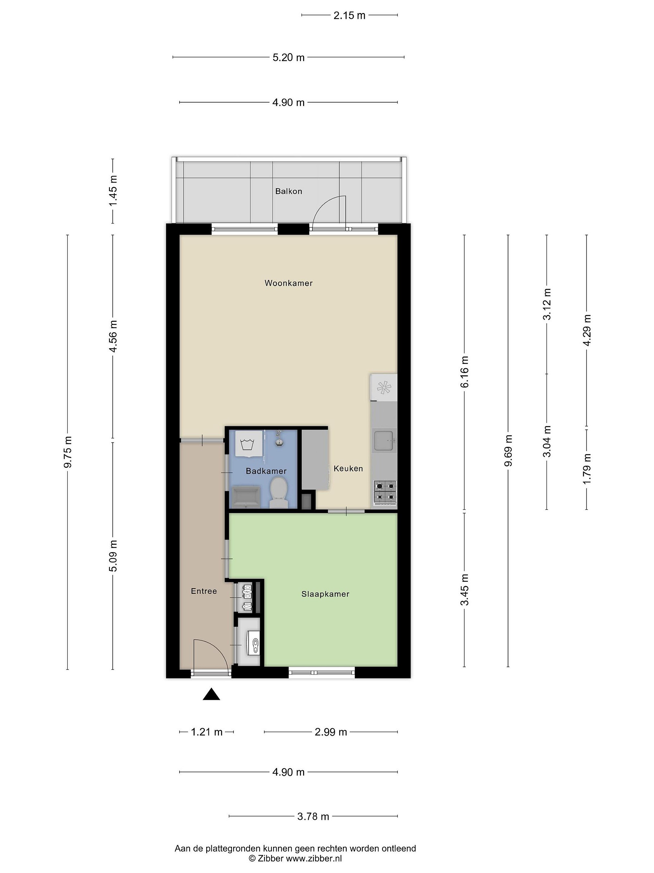
Beneden een bellentableau, een nette ontvangstruimte ruimte, op de begane grond. Hier bevindt zich ook de box welke tot het appartement behoord. Tevens is er een fietsenberging aanwezig.
Met de trap naar de eerste verdieping, waar het appartement zich bevindt.
Aangekomen bij het appartement, een ruime hal met daarin de kast met CV-opstelling en meterkast. De hal geeft toegang tot de slaapkamer aan de voorzijde van het appartement, de badkamer in het midden van het appartement ( voorzien van douche, wastafel en toilet ) en de woonkamer aan de achterzijde. De lichte woonkamer geeft toegang tot het ruime balkon welke over de gehele breedte van het appartement is. Vanuit de woonkamer loopt u tevens de keuken in, die ook weer toegang geeft aan de slaapkamer.
Het gehele appartement is voorzien van een laminaatvloer en wanden zijn keurig afgewerkt.
De ligging is geweldig. Winkelcentrum, horeca, scholen, NS Station, uitvalswegen en sport en recreatie. ook het Biesbosch is met enkele minuten te bereiken.
Kortom deze instapklare woning is klaar voor een nieuwe eigenaar.

Details
Energielabel A
Voorzien van houten kozijnen met dubbel glas
Een goede en actieve VvE
Goede ligging met bushalte voor de deur
Een leuk appartement met berging op de begane grond.
Interesse, meld u aan met de knop, vraag een bezichtiging aan, laat uw gegevens achter en onze adviseur Regio Rotterdam neemt contact met u op voor het inplannen van een afspraak.

Lees meer

Verkoopgeschiedenis

Aangeboden sinds
29 augustus 2025
Verkoopdatum
30 oktober 2025
Looptijd
2 maanden

Kenmerken

Overdracht

Prijs per m2
€ 5.053
Aangeboden sinds
29 augustus 2025
Status
Verkocht
Aanvaarding
In overleg

Bouw

Soort appartement
Portiekflat, appartement
Soort bouw
Bestaande bouw
Bouwjaar
1983
Soort dak
Plat dak
Staat van onderhouden binnen
Goed
Staat van onderhouden buiten
Goed

Oppervlakte en inhoud

Inhoud van de woning
156 m3
Oppervlakte externe bergruimte
4 m2
Oppervlakte gebouwgebonden buitenruimten
7 m2

Indeling

Aantal kamers
2
Aantal slaapkamers
1
Aantal woonlagen
1
Voorzieningen
Vve checklist, balkon, schuur/berging, ventilatie

Buitenruimte

Balkon
Ja
Schuur/berging
Ja

Maandlasten berekenen

De maandlasten voor je woning bestaan uit meer dan alleen de hypotheeklasten. Hieronder vind je een overzicht van de bijkomende kosten en lasten. Zo weet je precies wat je huis per maand gaat kosten. En met de handige vergelijkers kun je ook nog eens snel de beste deals sluiten!

  • Kaart
  • Streetview