Verkocht OV

Floridaweg 24P 2905 AE Capelle aan den IJssel

27m2
Wonen
1
Kamers
0m2
Perceel
1982
Bouwjaar
DEZE WONING IS VERKOCHT ONDER VOORBEHOUD!!

STUDIO OP UITSTEKENDE LOCATIE – DIRECT BESCHIKBAAR, ENERGIELABEL A, GASLOOS, NABIJ METRO EN WINKELCENTRUM
COMPACT EN COMFORTABEL WONEN

Deze efficiënte studio van ca. 27m2 op de 3e-verdieping ligt in The Sparkle, een stijlvol transformatieproject naast metrostation en winkelcentrum De Terp in Capelle aan den IJssel. U stapt zo het winkelcentrum binnen of pakt de metro naar het centrum van Capelle aan den IJssel (1 halte verder), Kralingse Zoom (Universiteit en Hoge school) of het bruisende centrum van Rotterdam – snel, direct en zonder overstappen.

MODERN EN DUURZAAM
De woning is volledig gasloos en beschikt over energielabel A. U woont dus niet alleen comfortabel, maar ook toekomstgericht. De moderne afwerking stamt uit de transformatie in 2018 van dit solide gebouw uit 1982.

VEILIGE EN VERZORGENDE ENTREE
Via de representatieve centrale entree op de begane grond betreedt u het complex. De ruimte is afgesloten en voorzien van twee liften, wat zowel veiligheid als gemak biedt.

UITZICHT EN ONTSPANNING OP HOOG NIVEAU
Op de 5e verdieping bevindt zich een groot collectief dakterras. Ideaal voor ontspanning, een moment in de zon of een goed gesprek met uw buren. Hier woont u met privacy én verbinding.

PARKEREN EN BEREIKBAARHEID
Er is een mogelijkheid tot aankoop van een parkeerplaats op het met slagboom afgesloten parkeerterrein (indien beschikbaar). De ligging naast de metro en nabij uitvalswegen maakt dit een uitmuntende locatie voor de mobiele stedeling.

NATUUR EN STAD DICHTBIJ
Voor een wandeling of sportieve afwisseling wandelt u naar Park Hitland, met daarachter de golfbaan. Een zeldzame combinatie van natuur en stedelijke voorzieningen binnen handbereik.

INTERESSE? KOM KIJKEN EN ERVAAR HET ZELF
Maak vandaag nog een afspraak voor een bezichtiging. Uw nieuwe start begint hier – comfortabel, bereikbaar en slim wonen in een studio die meer biedt dan vier muren.

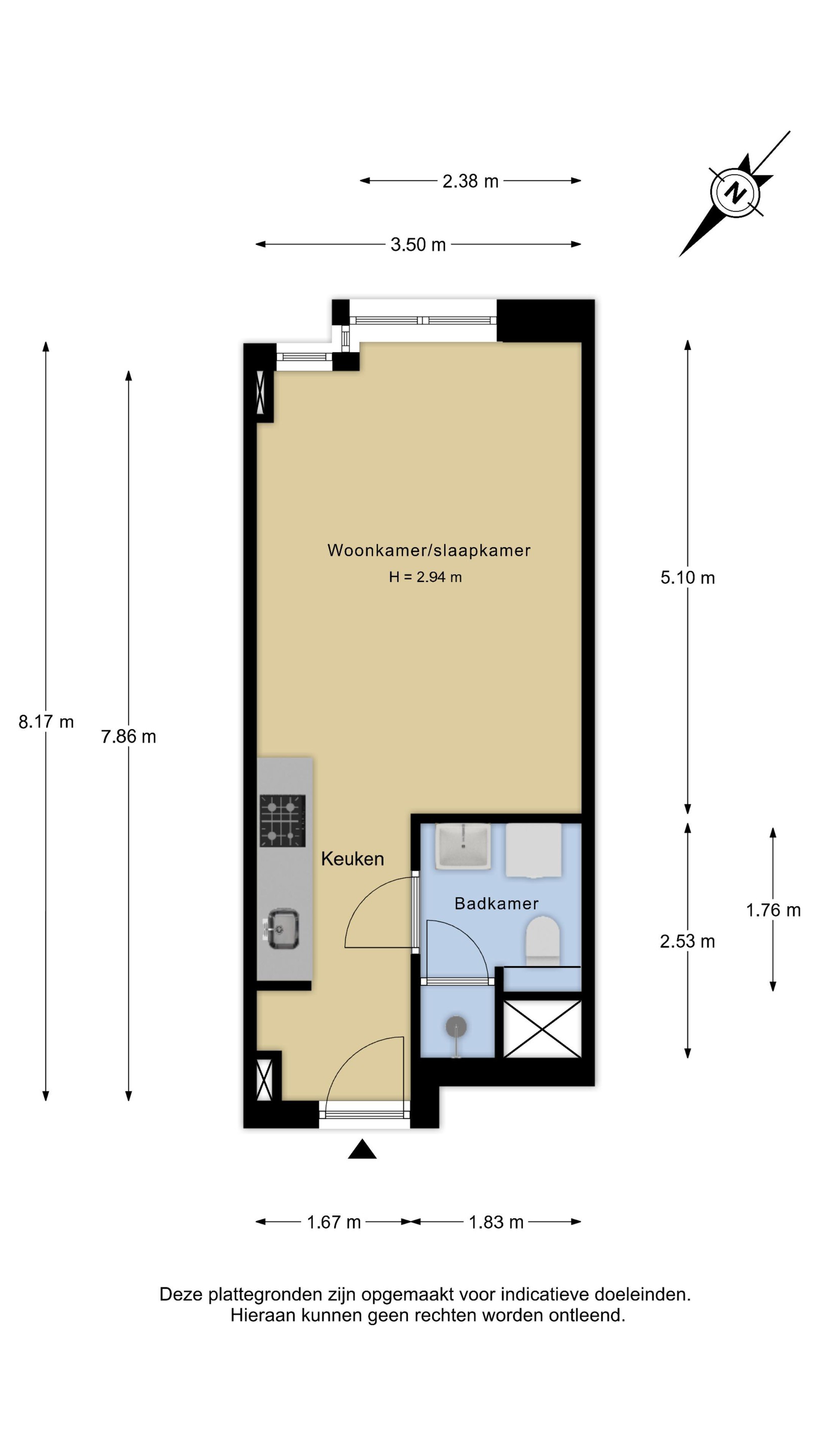
GLOBALE INDELING:
Ontdek met de plattegronden de indeling en ervaar de mogelijkheden. Laat je inspireren door de sfeervolle foto’s en wandel virtueel door de woning. Krijg een levensechte indruk. Klik, kijk en ontdek hoe deze plek jouw nieuwe thuis kan worden!

ALGEMEEN:
Oppervlakte woning ca. 27m2
Inhoud woning ca. 107m3
Oplevering in overleg, kan snel
Projectnotaris van toepassing
Bouwjaar omstreeks 1982, transformatie omstreeks 2018
Eigen grond
Verwarming en warm water: airco en boiler
Op de begane grond worden 104 bergingen gerealiseerd, waarvan één beschikbaar is voor dit appartement op basis van een gebruikersovereenkomst
Definitief energielabel A
Actieve VvE, maandelijkse bijdrage thans € 155,62 per 2026

Ondanks dat deze aanmelding met de nodige zorgvuldigheid is samengesteld, is alle verstrekte informatie nadrukkelijk onder voorbehoud, uitsluitend indicatief, bedoeld als voorbeeld en daardoor niet bindend voor het eindresultaat. Aan deze woninginformatie kunnen geen rechten of verplichtingen worden ontleend, onzerzijds wordt geen enkele aansprakelijkheid aanvaard voor enige onvolledigheid, onjuistheid of anderszins, dan wel de gevolgen daarvan.
Lees meer

Kenmerken

Overdracht

Prijs per m2
€ 7.315
Aangeboden sinds
26 maart 2026
Status
Verkocht onder voorbehoud
Aanvaarding
Direct

Bouw

Soort appartement
Portiekflat, appartement
Soort bouw
Bestaande bouw
Bouwjaar
1982
Soort dak
Plat dak
Staat van onderhouden binnen
Uitstekend
Staat van onderhouden buiten
Goed

Oppervlakte en inhoud

Indeling

Aantal kamers
1
Aantal slaapkamers
0
Aantal woonlagen
1
Voorzieningen
Ventilatie, kabel-tv, lift, airconditioning

Buitenruimte

Balkon
Nee
Schuur/berging
Nee

Maandlasten berekenen

De maandlasten voor je woning bestaan uit meer dan alleen de hypotheeklasten. Hieronder vind je een overzicht van de bijkomende kosten en lasten. Zo weet je precies wat je huis per maand gaat kosten. En met de handige vergelijkers kun je ook nog eens snel de beste deals sluiten!

  • Kaart
  • Streetview