Barbusselaan 111 1102 TS Amsterdam

70m2
Wonen
3
Kamers
0m2
Perceel
1984
Bouwjaar
For English, scroll down...

Bijzonder fijn en ruim driekamer hoek-appartement met VOLLEDIG AFGEKOCHTE ERFPACHT, gelegen in Venserpolder. Prima openbaar vervoer met twee metrostations zeer nabij (Strandvliet en Venserpolder) en NS-treinstation Amsterdam Bijlmer ArenA op loopafstand.

Voorts nabij vele voorzieningen en winkels zoals winkelcentrum Amsterdamse Poort, wijk winkelcentrum Venserpolder, Arena Boulevard, Johan Cruijff ArenA, Woonmall Villa ArenA en Ziggo Dome. Basisschool op 400 meter loopafstand. De omgeving van Venserpolder kenmerkt zich door het groene karakter. Ieder appartementencomplex heeft zijn eigen groene binnentuin. Daarnaast zijn er langs de straten diverse grasstroken en singels gelegen, waardoor het een ruime, bijzonder aangename en veilige woonomgeving is. In de binnentuin van dit complex zijn enige speelgelegenheden aanwezig, waardoor het ook voor de kleinste Amsterdammers ideaal is.

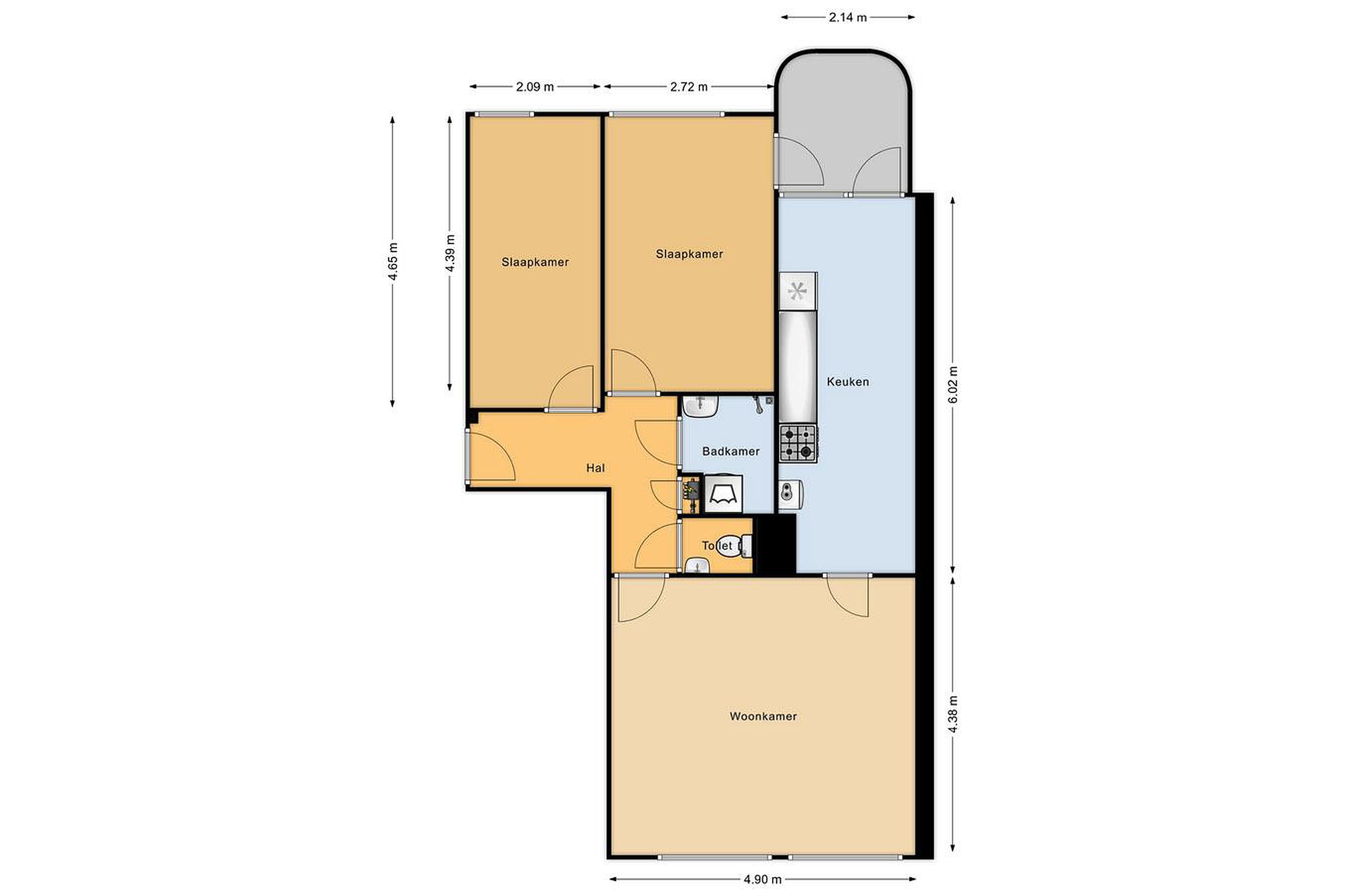
Indeling:
Een keurig trappenhuis brengt je naar de tweede verdieping, waar de entree van de woning direct binnendoor te bereiken is. Een centraal halletje biedt toegang tot de slaapkamers, de badkamer, het apart gelegen toilet en de woonkamer. De slaapkamers zijn rustig aan de achterzijde van het complex gelegen en hebben uitzicht op de binnentuin van het complex. Aan de straatzijde is de woonkamer gelegen met een leuk zich op de straat. Centraal is de badkamer gelegen met douche en wastafel. Extra fijn is, dat het toilet apart naast de badkamer is gelegen.

De woonkamer heeft goede afmetingen en is bijna vierkant, waardoor je zeer flexibele mogelijkheden hebt qua indeling. De keuken is nu los van de woonkamer gelegen. De tussenwand is echter eventueel te verwijderen, zodat de keuken ook meer bij de woonkamer kan worden betrokken, indien gewenst.

Vanuit de keuken is ook het balkon (4,5 m2) te bereiken met zicht op de binnentuin.

De woning kent twee slaapkamers. De grootste slaapkamer heeft een oppervlak van bijna 12m2 en biedt hiermee ruim voldoende ruimte voor een groot bed en uitgebreide garderobekasten. Daarnaast heeft deze kamer toegang tot het balkon. De tweede kamer is iets kleiner van formaat, maar met een oppervlak van 10m2 prima geschikt als kinderkamer of werkkamer.

Op de begane grond is nog een prima box / berging gelegen van 6,4 m2. Ideaal voor fietsen en om overige zaken op te bergen.

Bijzonderheden:
+ Eeuwigdurend afgekochte erfpacht dus geheel geen erfpacht betalingen meer.
+ Energielabel C, volledig geïsoleerd en v.v. kunststof kozijnen met dubbele beglazing
+ HR combi CV-ketel
+ Zeer solide VvE, professioneel beheerd met prima liquiditeit
+ Woonoppervlak 68 m2 (NeN-gemeten) op de tweede verdieping, balkon van 4,5 m2 plus een eigen berging van 6,4 m2 op de begane grond
+ VvE-bijdrage €141,34 per maand.
+ De woning is nooit door de eigenaar zelf bewoond geweest. In de koopovereenkomst zal zodoende de niet zelfbewoningsclausule worden opgenomen, naast de standaard asbestclausule en ouderdomsclausule.

________________________________________
English
________________________________________

A very nice and spacious three-room corner apartment with a FULLY PURCHASED LEASEHOLD, located in Venserpolder. Excellent public transport with two metro stations nearby (Strandvliet and Venserpolder) and the Amsterdam Bijlmer ArenA train station within walking distance.

Furthermore, many amenities and shops are nearby, such as the Amsterdamse Poort shopping center, Venserpolder neighborhood shopping center, Arena Boulevard, Johan Cruijff ArenA, Woonmall Villa ArenA, and the Ziggo Dome. A primary school is a 400-meter walk away. The Venserpolder area is characterized by its green character. Each apartment complex has its own green courtyard. In addition, various grassy areas and canals line the streets, creating a spacious, exceptionally pleasant, and safe living environment. The courtyard of this complex also features several play areas, making it ideal for even the youngest Amsterdam residents.

Layout:
A neat staircase leads to the second floor, where the entrance to the apartment is directly accessible from the inside. A central hallway provides access to the bedrooms, the bathroom, the separate toilet, and the living room. The bedrooms are quietly situated at the rear of the complex and overlook the communal courtyard. The living room faces the street, offering a pleasant view. The bathroom, complete with a shower and sink, is centrally located. A convenient feature is the separate toilet next to the bathroom.

The living room is well-sized and almost square, offering flexible layout options. The kitchen is currently separate from the living room. The dividing wall is lightweight and can be removed, allowing the kitchen to be integrated more fully into the living room, if desired.

The kitchen also provides access to the balcony (4.5 m2), which overlooks the courtyard.

The house has two bedrooms. The master bedroom measures almost 12 m2 and offers ample space for a large bed and extensive wardrobes. This room also provides access to the balcony. The second bedroom is slightly smaller, but at 10 m2, it is ideal as a children's room or study.

On the ground floor, there is a spacious storage room/box of 6.4 m2. Ideal for bicycles and other storage.

Details:
+ Perpetual, fully purchased leasehold, so no more lease payments.
+ Energy label C, fully insulated and equipped with uPVC window frames and double glazing.
+ High-efficiency combi boiler.
+ Very solid homeowners' association (VvE), professionally managed with excellent liquidity.
+ Living area 68 m2 (NeN-measured) on the second floor, 4.5 m2 balcony, plus a private 6.4 m2 storage unit on the ground floor.
+ Homeowners' association fee €141.34 per month.
+ The property has never been owner-occupied. Therefore, the non-occupancy clause will be included in the purchase agreement, in addition to the standard asbestos clause and age clause.
Lees meer

Kenmerken

Overdracht

Prijs per m2
€ 4.643
Aangeboden sinds
9 februari 2026
Status
Beschikbaar
Aanvaarding
In overleg

Bouw

Soort appartement
Portiekflat, appartement
Soort bouw
Bestaande bouw
Bouwjaar
1984
Staat van onderhouden binnen
Goed
Staat van onderhouden buiten
Goed

Oppervlakte en inhoud

Inhoud van de woning
175 m3
Oppervlakte externe bergruimte
6 m2
Oppervlakte gebouwgebonden buitenruimten
4 m2

Indeling

Aantal kamers
3
Aantal slaapkamers
2
Aantal woonlagen
1
Voorzieningen
Vve checklist, balkon, schuur/berging, kabel-tv, glasvezel

Buitenruimte

Balkon
Ja
Schuur/berging
Ja

Maandlasten berekenen

De maandlasten voor je woning bestaan uit meer dan alleen de hypotheeklasten. Hieronder vind je een overzicht van de bijkomende kosten en lasten. Zo weet je precies wat je huis per maand gaat kosten. En met de handige vergelijkers kun je ook nog eens snel de beste deals sluiten!

  • Kaart
  • Streetview