Onder optie

Skriesstrjitte 9271 EA De Westereen

80m2
Wonen
3
Kamers
0m2
Perceel
2026
Bouwjaar
Alles wat u zoekt in een woning vindt u in deze 13 nieuw te bouwen appartementen in het centrum van De Westereen (Nederlands: Zwaagwesteinde), verdeeld over drie bouwlagen. U woont hier rustig en hebt alle voorzieningen dichtbij. De appartementen zijn gebouwd voor de toekomst: ze zijn energiezuinig, gasloos, hebben een warmtepompinstallatie en vloerverwarming. Ze beschikken over twee slaapkamers, een balkon of (dak)terras en zijn licht en ruim. U kunt kiezen uit zes verschillende types, allemaal met een woonoppervlak van ca. 80 m2. Zeven appartementen hebben een berging en zes beschikken over een garage. Bergingen en garages bevinden zich achter de appartementen. Het complex heeft een warme uitstraling door de gebruikte kleuren en wordt gekenmerkt door een degelijke bouw met kwalitatief uitstekende materialen. Kortom, met deze toekomstbestendige woning is uw droomhuis binnen handbereik!

Het appartementencomplex is een project van De Woudengroep B.V., het ontwerp is van Studio DWP en het complex wordt gerealiseerd door Aannemingsbedrijf Kuin bv.

Ligging
De Westereen ligt in noordoost-Friesland, tussen Drachten (25 km) en Dokkum (15 km). Het dorp telt ruim 5.000 inwoners en beschikt over basisonderwijs, huisartsenpraktijk, apotheek en de nodige winkelvoorzieningen, waaronder meerdere supermarkten. In Dokkum en Drachten vindt u een ruim voorzieningenaanbod op het gebied van winkels, horeca, onderwijs, sport en cultuur. De Westereen ligt in het gebied van de Friese Wouden, een gebied dat zich kenmerkt door elzensingels, houtwallen en pingo’s (meertjes, overblijfselen van de laatste ijstijd). Er zijn fiets- en wandelroutes volop door deze mooie regio en in de natuurgebieden in de nabije omgeving. Aan de rand van het dorp ligt ook Sanjes Safari, een populair speel- en dierenpark voor de wijde omgeving. Verder heeft het dorp een jachthaven en een passantenhaventje. Ze liggen aan de vaarroute Lits-Lauwersmeer, die Drachten met Dokkum en het Lauwersmeer verbindt. De Westereen heeft een treinstation aan de spoorverbinding Leeuwarden-Groningen. Met de auto bent u in een kwartier in Dokkum en in 25 minuten in Drachten.
Begane grond
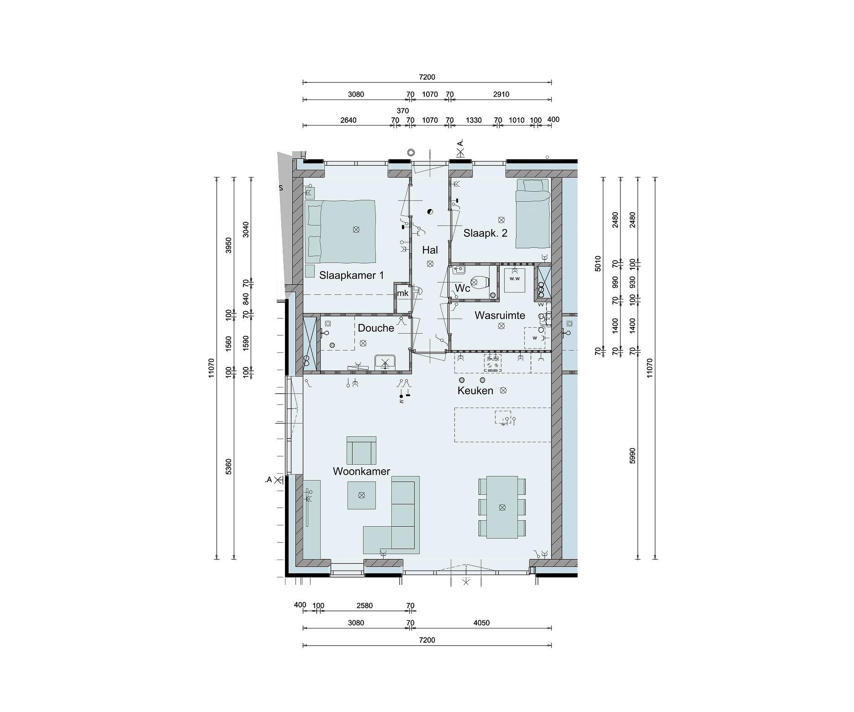
In de entree van het complex bevinden zich de postkasten, de lift en het trappenhuis. Van type B” is één appartement beschikbaar. Het ligt op de tweede verdieping en beschikt over een dakterras, een balkon, een garage. U bereikt deze woning via trap of lift en een galerij. De woonkamer biedt plaats aan een zithoek en een eethoek. Omdat dit appartement tevens een hoekwoning is, is er naast de deur die toegang geeft tot het grote dakterras, een groot raam. De open keuken is gericht naar de kamer en heeft een baropstelling. Het appartement heeft twee slaapkamers. Ze liggen tegenover elkaar. De badkamer is voorzien van douche en wastafel. Het toilet vindt u in de hal. In de wasruimte bevinden zich aansluitingen voor een witgoedopstelling.

Details
- De appartementen hebben een energieprestatie gelijk of beter dan de norm ‘Bijna Energie Neutrale Gebouwen (BENG), waardoor ze zeer duurzaam zijn;
- Het complex wordt uitgevoerd in beigegeel genuanceerde baksteen, met onderhoudsarme gevelbekleding van vezelcementplanken in kleikleur met achterisolatie;
- Voor de balustrades van de (betonnen) balkons zijn beigegrijze stalen lamellen gebruikt;
- De buitenkozijnen en draaiende delen zijn uitgevoerd in beigegrijze kunststof;
- De binnenkozijnen zijn van hardhout en de voordeuren zijn voorzien van een deurspion;
- Op de dakterrassen liggen betonnen drainagetegels, de balkonbalustrade is gemetseld en heeft relingen van beigegrijs verzinkt staal;
- De appartementen worden standaard opgeleverd zonder keuken en inclusief sanitair en tegelwerk (toilet en fonteintje, badkamer met toilet, wastafel en douchemengkraan met toebehoren);
- De koopprijs is vrij op naam;
- Individuele woonwensen: tegen verrekenprijs zijn diverse opties mogelijk voor tegels, vensterbanken en sanitair. Tegen meerprijs is ook veiligheidsbeglazing mogelijk.

Lees meer

Kenmerken

Overdracht

Prijs per m2
€ 5.438
Aangeboden sinds
15 oktober 2025
Status
Beschikbaar
Aanvaarding
In overleg

Bouw

Soort appartement
Penthouse
Soort bouw
Nieuwbouw
Bouwjaar
2026
Soort dak
Plat dak
Staat van onderhouden binnen
Goed
Staat van onderhouden buiten
Goed

Oppervlakte en inhoud

Indeling

Aantal kamers
3
Aantal slaapkamers
2
Aantal woonlagen
1
Voorzieningen

Buitenruimte

Balkon
Nee
Schuur/berging
Nee

Maandlasten berekenen

De maandlasten voor je woning bestaan uit meer dan alleen de hypotheeklasten. Hieronder vind je een overzicht van de bijkomende kosten en lasten. Zo weet je precies wat je huis per maand gaat kosten. En met de handige vergelijkers kun je ook nog eens snel de beste deals sluiten!

  • Kaart
  • Streetview