Verkocht

Bonkelaar 14 2382 CE Zoeterwoude

135m2
Wonen
5
Kamers
0m2
Perceel
2021
Bouwjaar
Instapklare hoekmaisonette met fijne buitenruimte in groene, kindvriendelijke wijk VerdeVista

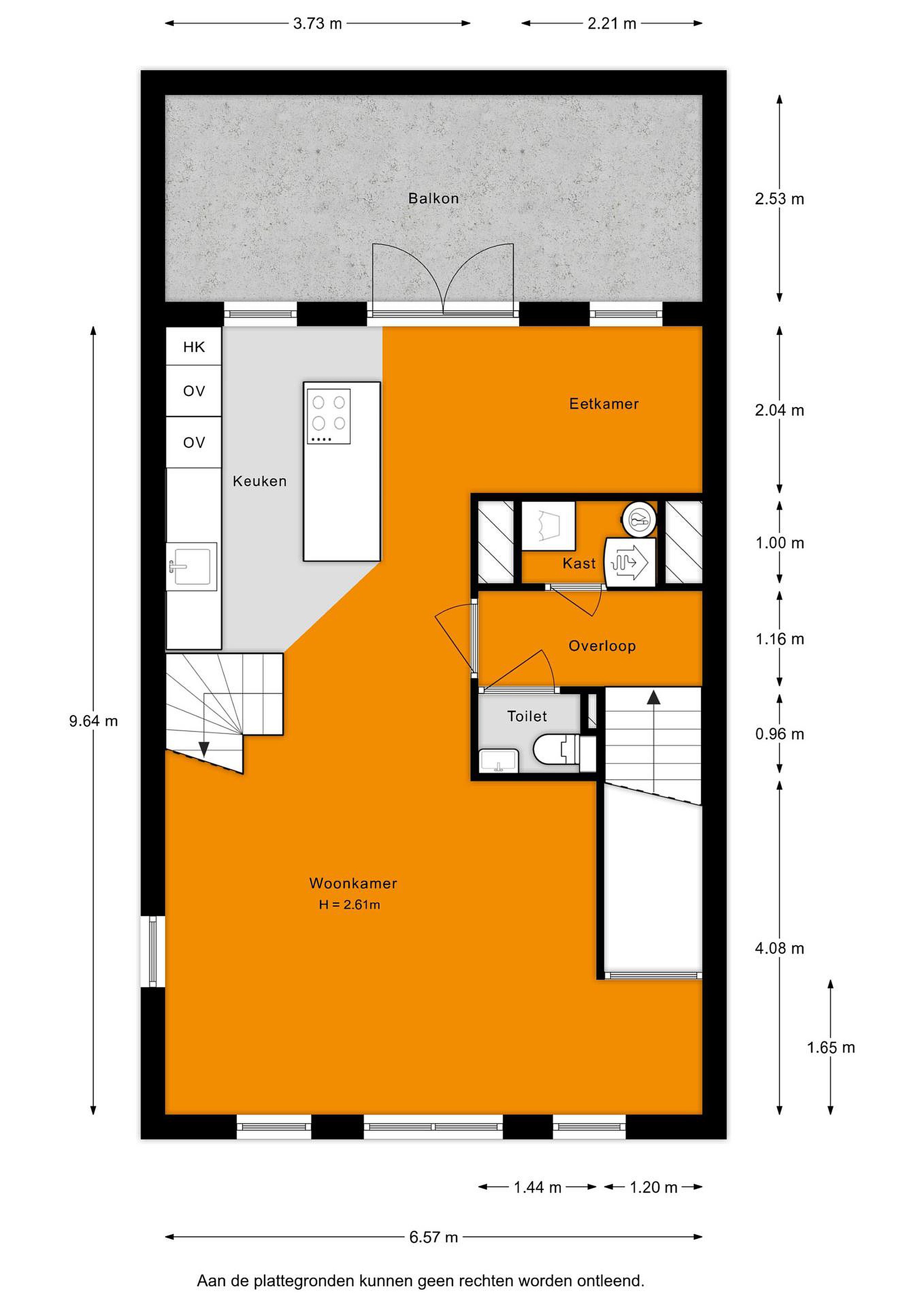
Wonen in VerdeVista in Zoeterwoude betekent ruimte, groen en gemak. Deze moderne hoekmaisonette uit 2021 met een woonoppervlakte van maar liefst 135 m2 beschikt over een fijn dakterras op het zuidwesten en geniet van veel lichtinval dankzij de gunstige ligging. De woning is energiezuinig en comfortabel, met HR++ beglazing, volledige isolatie en 16 zonnepanelen. Vloerverwarming, een warmtepomp en airconditioning zorgen het hele jaar door voor een aangenaam binnenklimaat. De maisonette is volledig instapklaar en afgewerkt met een luxe keuken en moderne badkamer. Daarnaast beschikt de maisonette over vier volwaardige slaapkamers, een zolder met vaste trap en aparte berging op de begane grond.

Bijzonderheden:
- Hoekmaisonette op eerste, tweede en derde verdieping
- Vier slaapkamers
- Ruime zolderverdieping met vaste trap
- Bouwjaar 2021
- Woonoppervlakte 135 m2
- Fijne buitenruimte op het zuidwesten
- Energielabel A
- Volledig geïsoleerd (muur-, dak- en vloerisolatie)
- Houten kozijnen met HR ++ Beglazing
- Warmtepomp, vloerverwarming en airconditioning (2024)
- 16 zonnepanelen
- Aparte berging op de begane grond
- Kleinschalige VvE (bijdrage €26,22 p/m)

Bonkelaar 14 ligt in een jonge en kindvriendelijke wijk met speeltuinen, een basisschool en sportverenigingen op korte afstand. Voor dagelijkse boodschappen kun je terecht bij de supermarkt in de wijk. Ook de Oude Rijn ligt dichtbij, ideaal voor wandelen, varen of ontspannen in het groen. De bereikbaarheid is uitstekend: binnen enkele minuten zit je op de A4 of N11 en het centrum van Leiden is in circa 15 minuten fietsen bereikbaar. Rustig wonen in een groene omgeving, terwijl de stad altijd dichtbij is.

Kortom: een ruime instapklare maisonette op een fijne locatie die je gezien móét hebben. Maak snel online een afspraak voor een bezichtiging via de volgende link: https://app.housap.com/booking/firm/92a97a66-1429-4649-a8e8-2a11562a5c9a
Lees meer

Verkoopgeschiedenis

Aangeboden sinds
16 januari 2026
Verkoopdatum
10 maart 2026
Looptijd
2 maanden

Kenmerken

Overdracht

Prijs per m2
€ 4.786
Aangeboden sinds
16 januari 2026
Status
Verkocht
Aanvaarding
In overleg

Bouw

Soort appartement
Maisonette, appartement
Soort bouw
Bestaande bouw
Bouwjaar
2021
Soort dak
Zadeldak
Staat van onderhouden binnen
Uitstekend
Staat van onderhouden buiten
Uitstekend

Oppervlakte en inhoud

Inhoud van de woning
551 m3
Oppervlakte externe bergruimte
5 m2
Oppervlakte gebouwgebonden buitenruimten
16 m2

Indeling

Aantal kamers
5
Aantal slaapkamers
4
Aantal woonlagen
4
Voorzieningen
Vve checklist, balkon, schuur/berging, ventilatie, rolluiken, buitenzonwering, airconditioning

Buitenruimte

Balkon
Ja
Schuur/berging
Ja

Maandlasten berekenen

De maandlasten voor je woning bestaan uit meer dan alleen de hypotheeklasten. Hieronder vind je een overzicht van de bijkomende kosten en lasten. Zo weet je precies wat je huis per maand gaat kosten. En met de handige vergelijkers kun je ook nog eens snel de beste deals sluiten!

  • Kaart
  • Streetview