Willem Kloosstraat 20 2741 GH Waddinxveen

90m2
Wonen
4
Kamers
0m2
Perceel
2012
Bouwjaar
Modern wonen in het Noordpark: Instapklare maisonnette met twee dakterrassen!

In de kleinschalige en geliefde woonwijk Noordpark in Waddinxveen bieden wij deze moderne, uitstekend afgewerkte maisonnette te koop aan. Met een woonoppervlakte van 90 m2, een hoog afwerkingsniveau en maar liefst twee buitenruimtes op het zonnige westen, is dit een woning waar je direct in kunt trekken.

De highlights:
- Licht & Ruimte: Een royale woonkamer met grote raampartijen en een prachtig, imposant trappenhuis.
- Buitenleven: Geniet van de middag- en avondzon op het dakterras van 16,7 m2 grenzend aan de woonkamer, of op het tweede terras bij de hoofdslaapkamer.
- Duurzaamheid: Gebouwd in 2012, volledig geïsoleerd en voorzien van een WTW-installatie.
- Locatie: Een rustige straat aan de rand van Waddinxveen, met winkels, scholen en het OV op loopafstand.
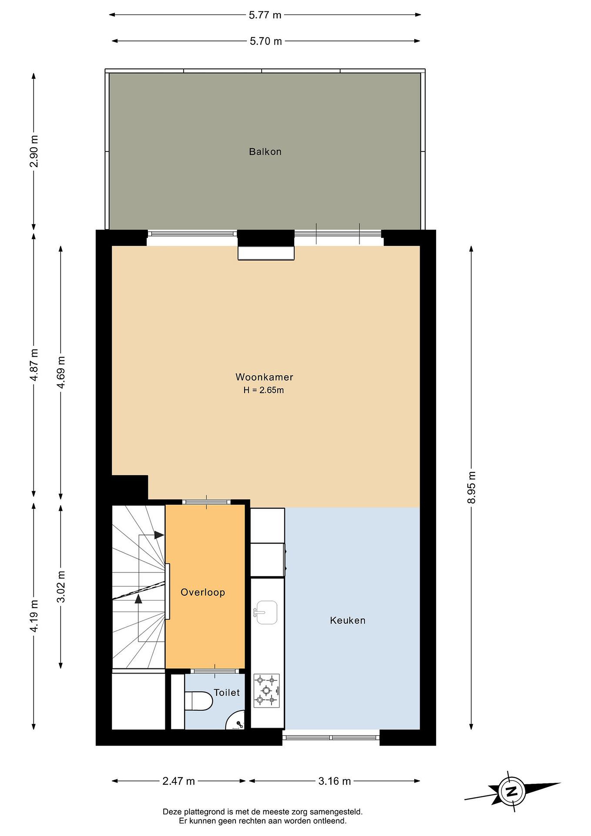
Begane grond
Via je eigen voordeur en het fraaie trappenhuis bereik je de eerste woonlaag.

Eerste verdieping
De lichte woonkamer valt direct op door de grote raampartijen en de nette laminaatvloer die door het hele appartement ligt. Via de openslaande deuren stap je zo het riante dakterras op: de ideale plek voor een loungeset.

Aan de voorzijde vind je de moderne, lichte keuken die van alle gemakken is voorzien, inclusief gaskookplaat, combimagnetron, vaatwasser en koelkast.

Tweede verdieping
De overloop geeft toegang tot twee goed bemeten slaapkamers. De hoofdslaapkamer (ca. 16 m2) ligt aan de achterzijde en heeft een eigen, tweede dakterras. De tweede slaapkamer (ca. 10,5 m2) bevindt zich aan de voorzijde. De moderne badkamer is strak betegeld en uitgerust met een royale inloopdouche en wastafelmeubel. Ook vind je hier de aansluitingen voor je wasapparatuur.

De technische ruimte biedt extra opbergruimte en biedt plaats aan de Intergas cv-ketel en de WTW-unit.

Details
Praktische informatie
- Berging: Eigen afgesloten berging van ca. 5,5 m2 op de begane grond.
- VvE: Gezonde en actieve vereniging met een bijdrage van € 75,- per maand.
- Oplevering: In overleg met de verkoper, maar kan desgewenst snel plaatsvinden.

Disclaimer
Deze vrijblijvende objectinformatie is met de meeste zorg samengesteld, maar voor de juistheid daarvan kunnen wij geen aansprakelijkheid aanvaarden. Ook kan aan de vermelde gegevens geen enkel recht worden ontleend. Alle informatie is enkel en alleen bedoeld voor de presentatie van het object en niet meer dan een uitnodiging tot het doen van een bod. Eventueel bijgevoegde plattegronden zijn slechts indicatief.

Lees meer

Kenmerken

Overdracht

Prijs per m2
€ 4.722
Aangeboden sinds
20 april 2026
Status
Beschikbaar
Aanvaarding
In overleg

Bouw

Soort appartement
Maisonette, appartement
Soort bouw
Bestaande bouw
Bouwjaar
2012
Soort dak
Plat dak
Staat van onderhouden binnen
Goed
Staat van onderhouden buiten
Goed

Oppervlakte en inhoud

Inhoud van de woning
338 m3
Oppervlakte externe bergruimte
4 m2
Oppervlakte gebouwgebonden buitenruimten
24 m2

Indeling

Aantal kamers
4
Aantal slaapkamers
2
Aantal woonlagen
3
Voorzieningen
Balkon, schuur/berging, ventilatie, kabel-tv, glasvezel

Buitenruimte

Balkon
Ja
Schuur/berging
Ja

Maandlasten berekenen

De maandlasten voor je woning bestaan uit meer dan alleen de hypotheeklasten. Hieronder vind je een overzicht van de bijkomende kosten en lasten. Zo weet je precies wat je huis per maand gaat kosten. En met de handige vergelijkers kun je ook nog eens snel de beste deals sluiten!

  • Kaart
  • Streetview