Verkocht

Willem de Rijkelaan 24 2741 VP Waddinxveen

103m2
Wonen
4
Kamers
0m2
Perceel
1961
Bouwjaar
Deze ruime en goed onderhouden 4-kamer maisonnette in Waddinxveen met een woonoppervlak van 103m2, biedt het beste van twee werelden: een centrale ligging met de rust van een woonhuis. Wonen met het comfort van een huis Vergeet het typische appartementengevoel! Deze maisonnette, verdeeld over twee verdiepingen, geeft je de ruimte en privacy van een woonhuis.

Beneden vind je twee slaapkamers en een zonnige achtertuin op het westen, grenzend aan het gemeenschappelijke groen van de VVE. Boven beschik je over een royale woonkamer, een moderne keuken, extra slaapkamer, een badkamer en twee balkons – één op het oosten en één op het westen.

Alles binnen handbereik
De woning is gelegen in de rustige woonwijk Oranjewijk Noord, waar je alle dagelijkse voorzieningen op loopafstand vindt bij de winkelcentra op de Luifelbaan en Koningin Wilhelminasingel. Openbaar vervoer, scholen, sportfaciliteiten en zorgvoorzieningen zijn allemaal in de directe omgeving. Bovendien ben je snel op weg naar steden als Gouda, Zoetermeer, Utrecht en Rotterdam.



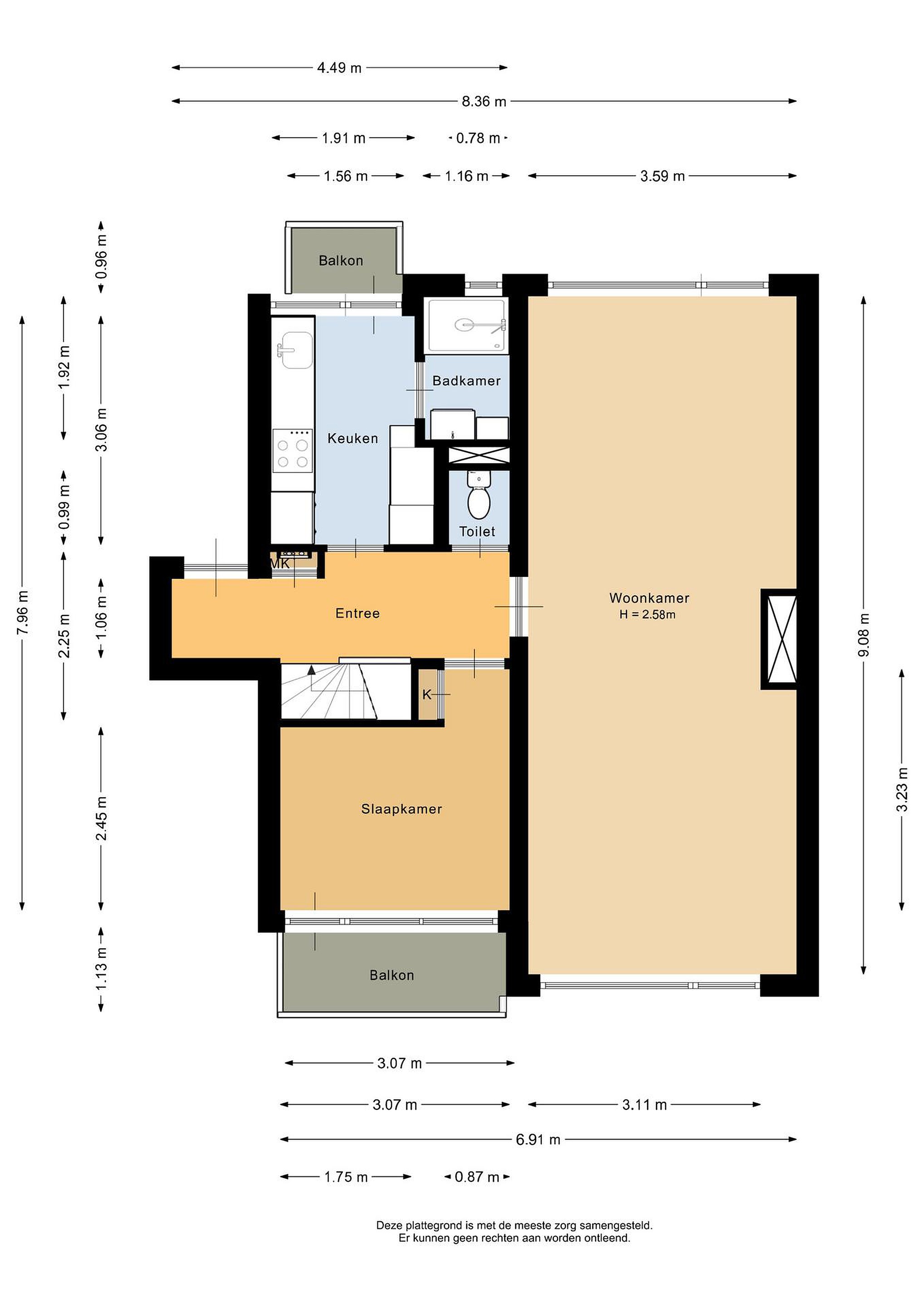
Begane grond
Begane grond:
Entree/hal met vaste kast, twee slaapkamers (waarvan één met toegang tot de gemeenschappelijke tuin). In de inpandige berging kunt u uw fietsen en extra spullen kwijt. Hier is ook de cv installatie en de wasmachine opstel plaatst.

Eerste verdieping:
De hal met meterkast en toiletruimte geeft toegang tot de woon- eetkamer, badkamer, aparte keuken en de derde slaapkamer. De doorzonwoonkamer met ruimte voor een eethoek is prettig licht dankzij de grote raampartijen aan beide zijden van de woning. Via beide raampartijen heeft u vrij zicht op bomen. De geheel betegelde badkamer is uitgerust met een inloopdouche en een wastafelmeubel. De nette keuken is voorzien van een inductie kookplaat, afzuigkap, combi magnetron, vaatwasser en koelkast. Een openslaande deur geeft toegang tot het balkon aan de achterzijde van de woning. De derde slaapkamer beschikt over een inbouwkast en een openslaande deur naar het balkon aan de voorzijde van de woning.

De woning heeft twee balkons, een zonneterras en toegang tot de gemeenschappelijke tuin. Het balkon aan de voorzijde van de woning ligt op het oosten. Het balkon en zonneterras aan de achterzijde van de woning liggen op het westen.

Details
- Bouwjaar: ca. 1961
- Woonoppervlakte: ca. 103 m2
- Zonnige tuin op het westen
- Twee balkons (oost en west)
- 3 slaapkamers (van oorsprong 4 slaapkamers)
- Maandelijkse VvE-bijdrage: Circa € 185,--
- Centrale ligging in rustige wijk en gratis parkeren.
- Alle voorzieningen op loopafstand

Kortom: een ideale woning voor wie op zoek is naar ruimte, comfort en een centrale ligging in een rustige omgeving!

Aanvaarding: in overleg, op korte termijn mogelijk en gewenst.



Deze vrijblijvende objectinformatie is met de meeste zorg samengesteld, maar voor de juistheid daarvan kunnen wij geen aansprakelijkheid aanvaarden. Ook kan aan de vermelde gegevens geen enkel recht worden ontleend. Alle informatie is enkel en alleen bedoeld voor de presentatie van het object en niet meer dan een uitnodiging tot het doen van een bod. Eventueel bijgevoegde plattegronden zijn slechts indicatief.

Lees meer

Verkoopgeschiedenis

Aangeboden sinds
31 juli 2025
Verkoopdatum
24 september 2025
Looptijd
2 maanden

Kenmerken

Overdracht

Prijs per m2
€ 3.228
Aangeboden sinds
31 juli 2025
Status
Verkocht
Aanvaarding
In overleg

Bouw

Soort appartement
Maisonette, appartement
Soort bouw
Bestaande bouw
Bouwjaar
1961
Soort dak
Plat dak
Staat van onderhouden binnen
Goed
Staat van onderhouden buiten
Goed

Oppervlakte en inhoud

Inhoud van de woning
321 m3
Oppervlakte overige inpandige ruimten
5 m2

Indeling

Aantal kamers
4
Aantal slaapkamers
3
Aantal woonlagen
1
Voorzieningen
Vve checklist, tuin, balkon, schuur/berging, kabel-tv, glasvezel

Buitenruimte

Balkon
Ja
Schuur/berging
Ja

Maandlasten berekenen

De maandlasten voor je woning bestaan uit meer dan alleen de hypotheeklasten. Hieronder vind je een overzicht van de bijkomende kosten en lasten. Zo weet je precies wat je huis per maand gaat kosten. En met de handige vergelijkers kun je ook nog eens snel de beste deals sluiten!

  • Kaart
  • Streetview