Verkocht

Dorlandsweer 35 3363 JD Sliedrecht

78m2
Wonen
4
Kamers
0m2
Perceel
1981
Bouwjaar
Grijp nu je kans!

In de geliefde wijk Craijensteijn ligt deze royale en vrijwel instapklare 3-kamer maisonnette met dakterras van maar liefst ca. 29 m2. Dit is een unieke kans voor wie op zoek is naar een comfortabele woonplek met volop leefruimte.

Intern beschikt deze woning onder meer over een moderne en complete keuken (2020). Op de tweede woonlaag bevinden zich twee royale slaapkamers en de moderne badkamer met regendouche en afgestemd meubilair met wastafel. Via een vlizotrap is de zolderetage (nokhoogte ca. 2.50m) bereikbaar.

De buitenruimte is een waar verlengstuk van dit aanbod: of je nu op een zonnige dag wilt genieten van het weer of de barbecue wilt aansteken, hier kan het allemaal.

De centrale ligging is ideaal, met uitvalswegen, een
bushalte, het treinstation, scholen, winkels en het recreatiegebied "De Merwelanden" in de directe omgeving.

Kortom: hier wil je echt een kijkje nemen. Je bent van harte uitgenodigd voor een bezichtiging!
Begane grond
Trappenhuis, galerij met toegang tot de woning. De berging (ca. 5 m2) bevindt zich ook op de begane grond.

Eerste verdieping
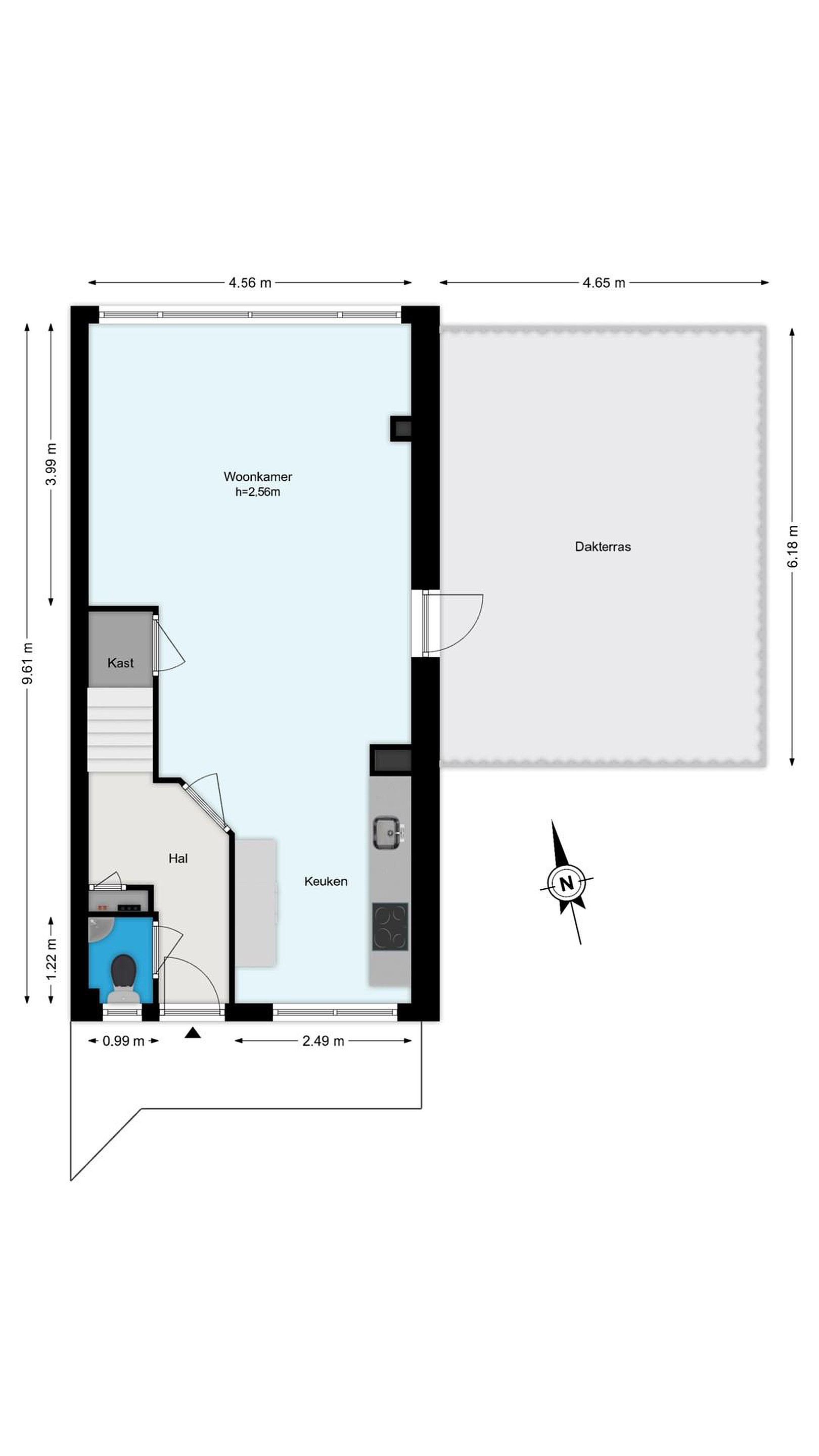
Entree in de hal met de deels betegelde toiletruimte met staand toilet en een fonteintje, de meterkast, de garderobe en de trapopgang naar 2de woonlaag. De ruime L-vormige woonkamer biedt een praktische trapkast en toegang tot het heerlijke dakterras. Door de brede raampartij geniet deze ruimte van volop daglicht. De aan de voorzijde gelegen open keuken is in 2020 geplaatst en recent voorzien van een nieuwe inductiekookplaat. Ze beschikt verder over een koel-/vriescombinatie, een oven, een vaatwasser en een design afzuigkap.

Tweede verdieping
De overloop staat in directe verbinding met de badkamer en de 2 slaapkamers. Vanuit hier is d.m.v. een vlizotrap de bovengelegen zolderetage te bereiken. De eerste slaapkamer ligt aan de voorzijde en is circa 4 x × 3,35 meter. De tweede slaapkamer ligt aan de achterzijde en is circa 3,35 × 3,35 meter. De modern uitgevoerde badkamer is uitgerust met een regendouche, een wastafelmeubel, een hangend meubel, de boiler (huur) en de witgoedaansluitingen.

Details
Parkeren en fietsenstalling
In de nabije omgeving is voldoende openbare parkeergelegenheid, verder beschikt dit aanbod over een eigen en afsluitbare berging (ca. 5 m2) op de begane grond.

Vereniging van Eigenaren
Er is een goedlopende en actieve VvE aanwezig. Actieve VvE, bijdrage € 360,61 p/m (incl. € 150,99 voorschot stookkosten).

Algemeen
– Verwarming geschiedt middels blokverwarming.
– Het appartement is grotendeels v.v. dubbele beglazing (tweede woonlaag HR++).
– De boiler in de badkamer is in gebruik op basis van een huurconstructie van Eneco.
– Het appartement is te bereiken via een trapopgang aan de zuidzijde van het complex, bij huisnummer 28.

Alle informatie over deze woning is beschikbaar op:
dorlandsweer35.nl

(bepaalde informatie op bovenstaande site is afgeschermd, neem hiervoor contact op met Makelaardij Stuij & Van Dijk: 0184-630650)

Lees meer

Verkoopgeschiedenis

Aangeboden sinds
6 februari 2026
Verkoopdatum
30 maart 2026
Looptijd
2 maanden

Kenmerken

Overdracht

Prijs per m2
€ 3.910
Aangeboden sinds
6 februari 2026
Status
Verkocht
Aanvaarding
Per datum

Bouw

Soort appartement
Maisonette, appartement
Soort bouw
Bestaande bouw
Bouwjaar
1981
Soort dak
Zadeldak
Staat van onderhouden binnen
Goed
Staat van onderhouden buiten
Goed

Oppervlakte en inhoud

Inhoud van de woning
280 m3
Oppervlakte externe bergruimte
5 m2
Oppervlakte gebouwgebonden buitenruimten
27 m2
Oppervlakte overige inpandige ruimten
7 m2

Indeling

Aantal kamers
4
Aantal slaapkamers
2
Aantal woonlagen
3
Voorzieningen
Tuin, schuur/berging

Buitenruimte

Balkon
Nee
Schuur/berging
Ja

Maandlasten berekenen

De maandlasten voor je woning bestaan uit meer dan alleen de hypotheeklasten. Hieronder vind je een overzicht van de bijkomende kosten en lasten. Zo weet je precies wat je huis per maand gaat kosten. En met de handige vergelijkers kun je ook nog eens snel de beste deals sluiten!

  • Kaart
  • Streetview