Cleveringahof 47 3052 PV Rotterdam

98m2
Wonen
4
Kamers
0m2
Perceel
1985
Bouwjaar
INSTAPKLARE 4-KAMER MAISONETTE MET BALKON, VRIJ UITZICHT OP GROEN EN WATER, ENERGIELABEL B

Aan de Cleveringahof 47 in Rotterdam Schiebroek treft u deze verzorgde 4-kamer maisonnette, verdeeld over de tweede en derde verdieping. De woning oogt keurig, biedt direct wooncomfort en combineert ruimte, licht en een rustige ligging.

INDELING EN WOONCOMFORT
De entree bevindt zich op de tweede verdieping. Hier ervaart u een prettige indeling met duidelijke leefzones. Grote raampartijen zorgen voor een aangename lichtinval en een open, rustige sfeer in de woning.

KEUKEN
De keuken presenteert zich netjes en functioneel. U beschikt over diverse inbouwapparatuur die het dagelijks gebruik overzichtelijk en comfortabel maakt. De opstelling biedt voldoende werk- en bergruimte.

SANITAIR
Het separate zwevende toilet oogt modern en verzorgd. De badkamer beschikt over een inloopdouche, wastafel en designradiator. De ruimte voelt praktisch en fris aan, passend bij het geheel van de woning.

SLAAPKAMERS
Op de tweede verdieping liggen twee slaapkamers. Eén slaapkamer biedt directe toegang tot het balkon. De derde slaapkamer bevindt zich op de derde verdieping en biedt extra privacy, ideaal als hoofdslaapkamer, werkruimte of logeerkamer.

BALKON MET VRIJ UITZICHT
Het balkon ligt aan de achterzijde en kijkt vrij uit over groen en water. Deze rustige buitenruimte nodigt uit tot ontspannen momenten, ver weg van stedelijke drukte.

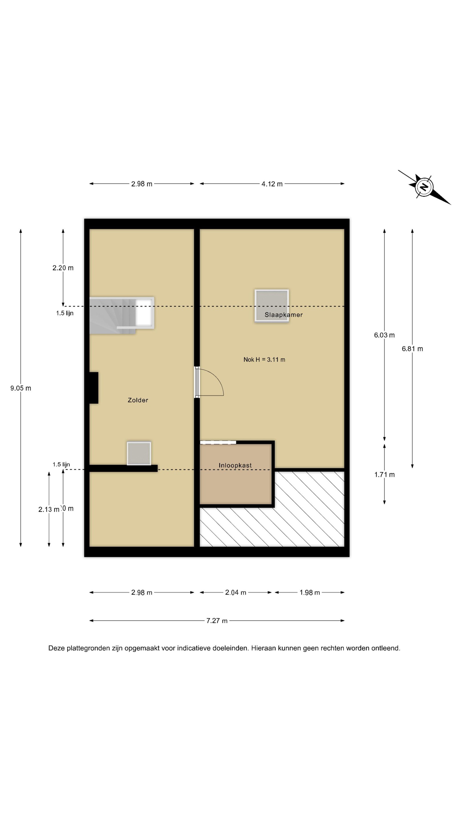
DERDE VERDIEPING
De derde verdieping verrast met een ruime hal en overloop. Deze extra ruimte leent zich goed voor een werkplek, kastopstelling of rustige leeshoek en versterkt het gevoel van ruimte en vrijheid.

ENERGIEZUINIG WONEN
De woning beschikt over energielabel B. Dit draagt bij aan een comfortabel binnenklimaat en lagere energielasten, passend bij de wensen van deze tijd.

OMGEVING
Schiebroek staat bekend om zijn groene karakter, rustige straten en goede bereikbaarheid. U woont hier nabij winkels, scholen, openbaar vervoer en uitvalswegen, met het centrum van Rotterdam binnen handbereik.

UITNODIGING
Zoekt u een instapklare maisonnette met ruimte, rust en uitzicht? Neem contact op voor een bezichtiging en ervaar zelf de sfeer en het comfort van deze woning.

Globale Indeling
Ontdek met de plattegronden de indeling en ervaar de mogelijkheden. Laat je inspireren door de sfeervolle foto’s en wandel virtueel door de woning. Krijg een levensechte indruk. Klik, kijk en ontdek hoe deze plek jouw nieuwe thuis kan worden!

Algemeen:
Oppervlakte woning ca. 98m2
Oppervlakte buitenruimte ca. 4m2
Oppervlakte berging ca. 6m2
Inhoud woning ca. 331m3
Oplevering in overleg, kan snel
Bouwjaar omstreeks 1985
Erfpachtduur tot 31-03-2083, canon afgekocht tot 31-03-2083
Verwarming en warm water d.m.v. Cv-ketel
Definitief energielabel B
Actieve VvE, maandelijkse bijdrage € 268,68 voor de woning en € 2,53 voor de berging
Projectnotaris van toepassing

Ondanks dat deze aanmelding met de nodige zorgvuldigheid is samengesteld, is alle verstrekte informatie nadrukkelijk onder voorbehoud, uitsluitend indicatief, bedoeld als voorbeeld en daardoor niet bindend voor het eindresultaat. Aan deze woninginformatie kunnen geen rechten of verplichtingen worden ontleend, onzerzijds wordt geen enkele aansprakelijkheid aanvaard voor enige onvolledigheid, onjuistheid of anderszins, dan wel de gevolgen daarvan.
Lees meer

Kenmerken

Overdracht

Prijs per m2
€ 3.571
Aangeboden sinds
26 januari 2026
Status
Beschikbaar
Aanvaarding
Direct

Bouw

Soort appartement
Maisonette, appartement
Soort bouw
Bestaande bouw
Bouwjaar
1985
Soort dak
Zadeldak
Staat van onderhouden binnen
Uitstekend
Staat van onderhouden buiten
Uitstekend

Oppervlakte en inhoud

Inhoud van de woning
331 m3
Oppervlakte externe bergruimte
5 m2
Oppervlakte gebouwgebonden buitenruimten
4 m2

Indeling

Aantal kamers
4
Aantal slaapkamers
3
Aantal woonlagen
2
Voorzieningen
Balkon, schuur/berging, ventilatie, kabel-tv

Buitenruimte

Balkon
Ja
Schuur/berging
Ja

Maandlasten berekenen

De maandlasten voor je woning bestaan uit meer dan alleen de hypotheeklasten. Hieronder vind je een overzicht van de bijkomende kosten en lasten. Zo weet je precies wat je huis per maand gaat kosten. En met de handige vergelijkers kun je ook nog eens snel de beste deals sluiten!

  • Kaart
  • Streetview