Verkocht

Westkil 4 3356 MA Papendrecht

103m2
Wonen
4
Kamers
0m2
Perceel
1997
Bouwjaar
Aan de Westkil in Papendrecht staat dit zeer nette appartementencomplex waar u op nr. 4 deze zonnige en ruime maisonnette woning vindt met eigen tuin! De keurig verzorgde woning van 103 m2 is in 1997 gebouwd en beschikt op de begane grond over een ruime hal met toilet, een grote woonkamer, een moderne keuken en een eigen tuin met berging. Op de 1e verdieping vindt u 3 ruime slaapkamers, een grote badkamer en een separaat toilet. Het appartementencomplex ligt afgescheiden van de weg door een trottoir, fietspad en groenstrook met waterpartij. De wijk is ruim aangelegd met veel aandacht voor groen, speelplaatsen voor de kinderen en voldoende parkeergelegenheid vindt u achter het complex. De vele voorzieningen van Papendrecht zoals basisscholen, kinderopvang, verenigingen, sportclubs, winkels, horeca en openbaar vervoer liggen allen op loop- en fietsafstand.
Op de begane grond van dit kleinschalige complex komt u binnen in de nette centrale hal waar u het bellentableau vindt, de brievenbussen, het trappenhuis en de toegang naar de appartementen.
De woning ligt op de begane grond waar u binnen stapt in de ruime en lichte hal waar u een garderobekast vindt, een nette toiletruimte, een vaste kast waar tevens de cv-opstelling hangt, de trapopgang naar de 1e verdieping en de entree naar de living. De hal is voorzien van nette wanden en plafonds en een moderne laminaat welke doorloopt naar de living.
De woonkamer is heerlijk licht door de grote ramen op het Zuiden waar u uitkijkt op de tuin van het complex en het fietspad en de groenstrook. De ruime living is afgewerkt met nette wanden en plafonds en dezelfde laminaat als in de hal. Er is ruimplaats voor een al uw meubels en extra bergruimte vindt u in de grote trapkast. Via een open doorgang komt u in de keuken welke in 2019 volledig is vernieuwd. Deze is geplaatst in een wandopstelling en is uitgevoerd in een moderne stijl. De keuken is voorzien van een royaal werkblad, diverse moderne apparatuur en veel bergruimte in de diverse laden en kasten. In de keuken vindt u ook de achterdeur waar u zo de fijne achtertuin in stapt voor een kop koffie op het terras.
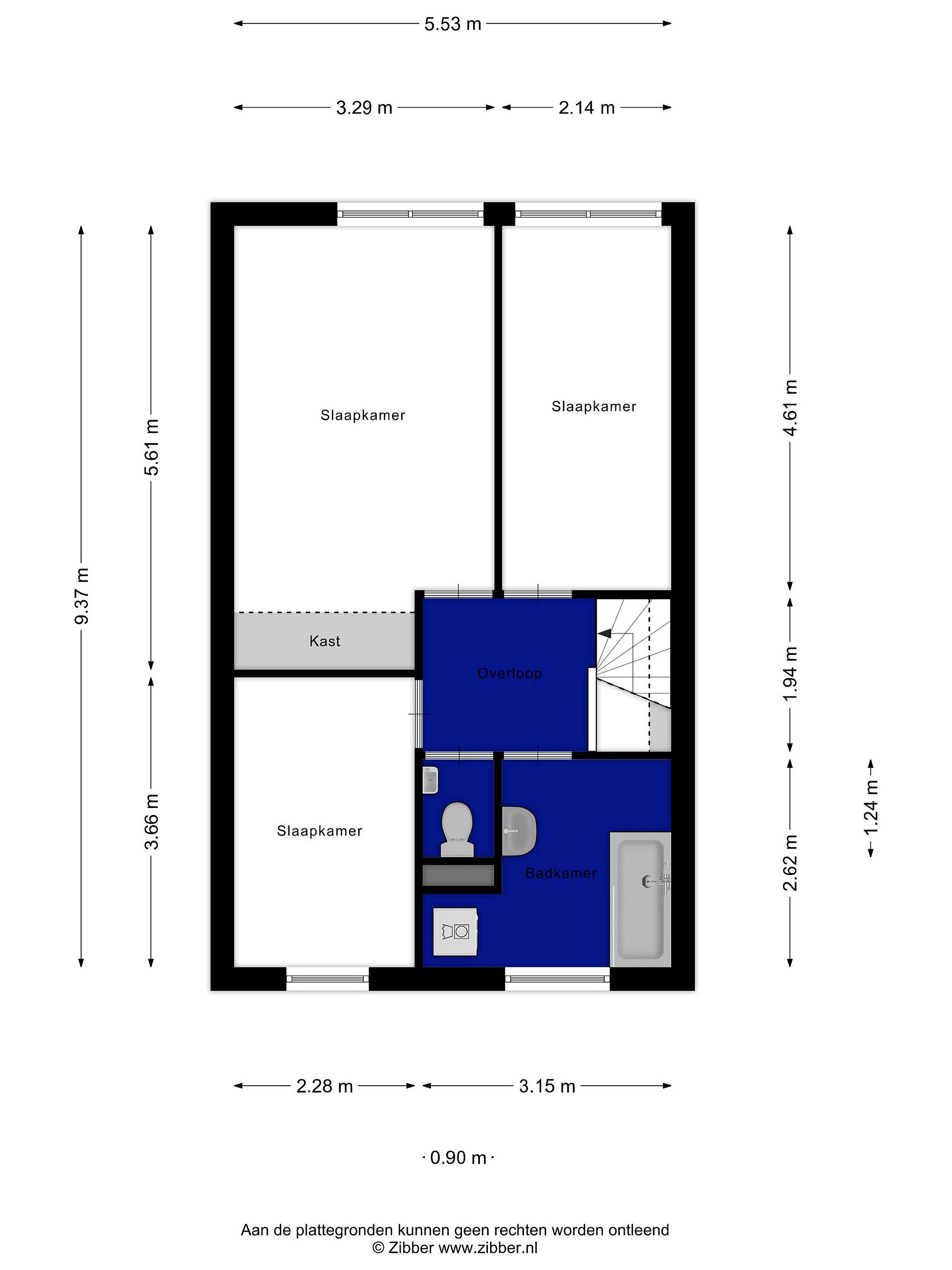
Via de trapopgang vanuit de hal komt u op de nette overloop op de 1e verdieping waar u aangrenzend 3 ruime slaapkamers, de badkamer en een separaat toilet vindt. De slaapkamers zijn ruim en licht door de grote ramen en voorzien van nette wanden en plafonds en een nette laminaat over de gehele verdieping. De grote badkamer is volledig betegeld en voorzien van een groot ligbad met douchescherm, een wastafel, een radiator en tevens vindt u hier de aansluitingen voor de wasmachine en droger. Naast de badkamer is er een nette separate toiletruimte met een fonteintje.
De besloten achtertuin is te bereiken vanuit de keuken of via de ruime stenen berging, voorzien van electra, welke te bereiken is via de achterkant van het complex. De achtertuin is voorzien van bestrating, een plantenborder en een haagafscheiding welke zorgt voor veel privacy. De tuin aan de voorzijde van het complex is tevens netjes aangelegd en wordt deels verzorgd vanuit de VVE.
We heten u van harte welkom in deze ruime zonnige maisonnette woning in dit zeer nette appartementencomplex in de populaire wijk Oostpolder! Papendrecht is een gemoedelijke moderne woonplaats met zeer veel voorzieningen zoals diverse scholen, kinderopvang, medische faciliteiten, verenigingen en sportclubs, een zwembad, een theater, een bibliotheek en dat alles gelegen tussen de groene polders en het glinsterende water van de rivier De Merwede. Door de gunstige ligging nabij diverse uitvalswegen en de goede verbindingen met het openbaar vervoer bent u ook snel in grotere plaatsen als bijvoorbeeld Dordrecht, Rotterdam, Breda en Utrecht. We zien u snel!

Lees meer

Verkoopgeschiedenis

Aangeboden sinds
22 december 2025
Verkoopdatum
31 maart 2026
Looptijd
3 maanden

Kenmerken

Overdracht

Prijs per m2
€ 3.637
Aangeboden sinds
22 december 2025
Status
Verkocht
Aanvaarding
In overleg

Bouw

Soort appartement
Maisonette, appartement
Soort bouw
Bestaande bouw
Bouwjaar
1997
Soort dak
Plat dak
Staat van onderhouden binnen
Goed
Staat van onderhouden buiten
Goed

Oppervlakte en inhoud

Inhoud van de woning
340 m3
Oppervlakte externe bergruimte
60 m2

Indeling

Aantal kamers
4
Aantal slaapkamers
3
Aantal woonlagen
2
Voorzieningen
Vve checklist, tuin, schuur/berging, rolluiken

Buitenruimte

Balkon
Nee
Schuur/berging
Ja

Maandlasten berekenen

De maandlasten voor je woning bestaan uit meer dan alleen de hypotheeklasten. Hieronder vind je een overzicht van de bijkomende kosten en lasten. Zo weet je precies wat je huis per maand gaat kosten. En met de handige vergelijkers kun je ook nog eens snel de beste deals sluiten!

  • Kaart
  • Streetview