Verkocht OV

Heerderweg 55E 6224 LG Maastricht

48m2
Wonen
3
Kamers
0m2
Perceel
1976
Bouwjaar
DEZE WONING WORDT AANGEBODEN DOOR POOTERS MAKELAARDIJ
Sfeervol, licht en zeer goed gelegen appartement/maisonnette voorzien van dakterras met panoramisch uitzicht!!

Het appartement is gelegen op de vierde en vijfde verdieping in een rustig en kleinschalig appartementencomplex met lift en berging, gelegen aan de Heerderweg 55-E in de Maastrichtse woonwijk Wyckerpoort, om de hoek bij de Groene Loper. De woning beschikt over een knusse woonkamer met open keuken, 1(2) slaapkamer(s), badkamer en een fantastisch dakterras.

Let op: anders dan de gebruiksoppervlakte wonen (ca. 48m2) suggereert is het een mooi ruimtelijk appartement. Dit komt onder andere vanwege de schuine wanden aan de straatzijde. De bruto vloeroppervlakte is namelijk ca. 71m2.

INDELING:

Souterrain:
In het souterrain bevindt zich een gemeenschappelijke fietsenberging, met rechtstreeks toegang naar buiten.

Begane Grond:
Representatieve ontvangsthal met brievenbussen unit, bellentableau met video-intercom en toegang tot de lift en het trappenhuis.

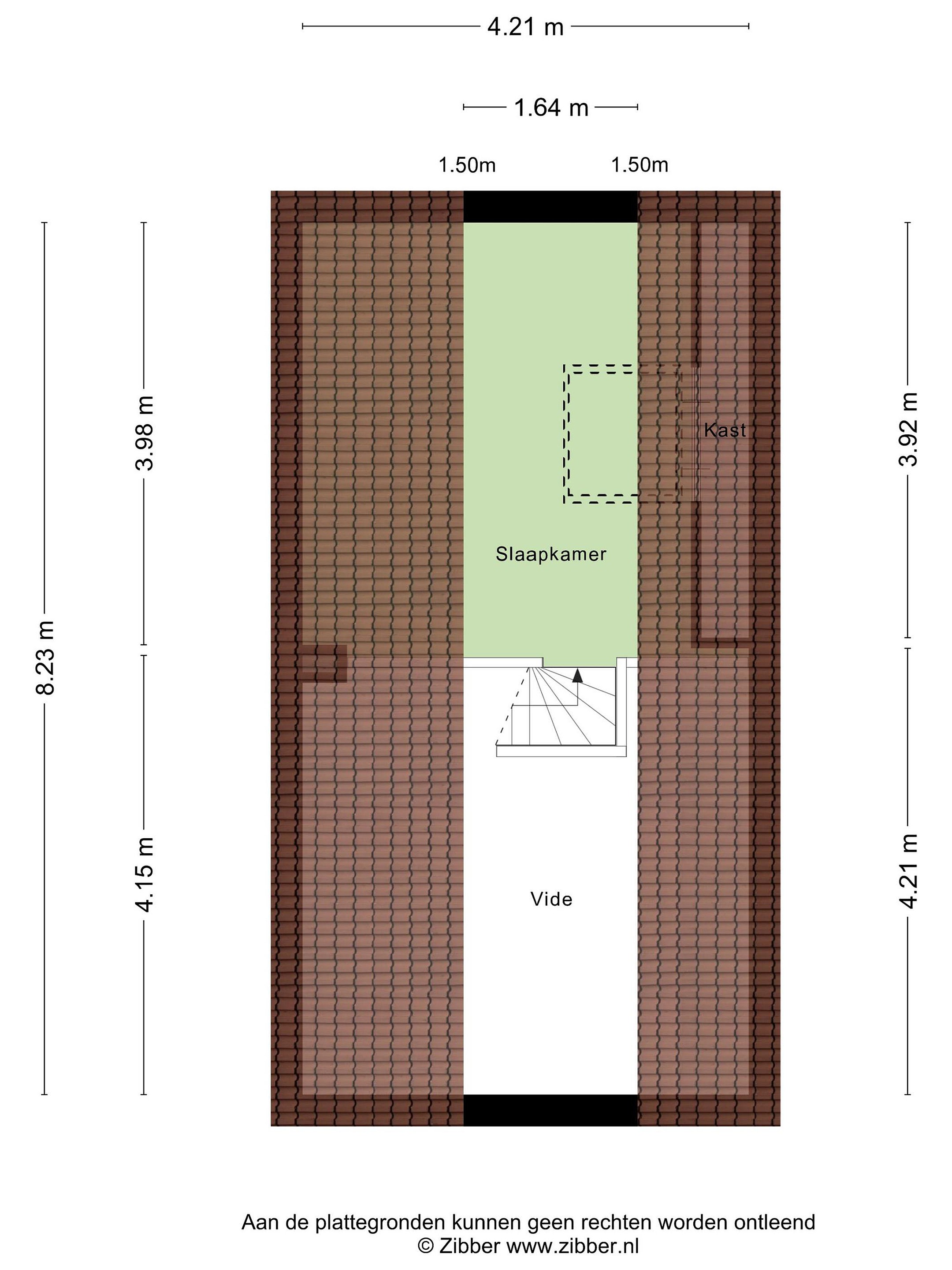
Vierde Verdieping:
Corridor met toegang tot het appartement en de iets verderop gelegen privéberging (ca. 6m2), voorzien van licht.

Appartement:
Entree/hal (ca. 2,5m2) met toegang tot de badkamer en de leefruimte. De badkamer (ca 4m2) is geheel betegeld en voorzien van een inloopdouche, vaste wastafel met onderkast, een staand closet en de aansluitingen voor het witgoed. Sfeervolle en lichte leefruimte (ca. 32m2) voorzien van een laminaat vloer, met toegang tot het dakterras. De leefruimte kan gemakkelijk opgesplitst worden in een woonkamer/keuken (ca. 24m2) en een studeer/slaapkamer (ca. 8m2). De keuken beschikt over een keukenblok in rechte opstelling met boven- en onderkasten en de volgende apparatuur: 4-pits inductiekookplaat, afzuigkap, koelkast en een spoelbak (De keuken is aan vervanging toe). De studeer/slaapkamer beschikt over een inbouwkast met een tweede witgoedaansluiting. Tevens is hier de opstelling van de boiler (merk: Bosch Combi, eigendom & bouwjaar 2023) voor de warmwatervoorziening gerealiseerd. Vanuit de studeer/slaapkamer is er toegang tot het dakterras (ca. 6m2), alwaar men in een oase van rust kunt genieten van een panoramisch uitzicht over de directe omgeving.

Vijfde Verdieping:
In de woonkamer/keuken bevindt zich een trap naar de entresol/slaapkamer (ca. 6,5m2), welke voorzien is van een laminaatvloer en een Velux dakraam met isolerende beglazing en een screen voor verduistering.

Extra bijzonderheden:
- Sfeervol appartement op de vierde en vijfde verdieping;
- Het pand is gelegen binnen de bebouwde kom en binnen het beschermd stadsgezicht van Maastricht;
- Gebruiksoppervlakte wonen bedraagt ca. 48m2; Let op: anders dan de gebruiksoppervlakte wonen (ca. 48m2) suggereert is het een mooi ruimtelijk appartement. Dit komt onder andere vanwege de schuine wanden aan de straatzijde. De bruto vloeroppervlakte is namelijk ca. 71m2.
- 1(2) slaapkamer(s) + nette badkamer aanwezig;
- Energielabel C, geldig tot 29-11-2032;
- Complex is voorzien van blokverwarming;
- Betaald parkeren en parkeervergunningen in de straat en de directe omgeving;
- Voorzien van houten en kunststof kozijnen met isolerende beglazing;
- Dakterras met panoramisch uitzicht;
- Boiler (merk: Bosch Combi, eigendom & bouwjaar 2023) voor de warmwatervoorziening;
- VvE bijdrage per maand: € 268,72 (o.a. opstal,- glas, - en brandverzekering, onderhoudsreserve, bankkosten, overige kosten);
- Voorschot stookkosten ca. € 30, - per maand;
- In de Gemeente Maastricht geldt vanaf 1 oktober 2022 een Huisvestingsverordening;
- Alle vermelde afmetingen zijn indicatief en kunnen afwijken van de werkelijkheid.

Omgeving:
Dit appartement is gelegen op de 4e en 5e verdieping in een appartementencomplex aan de Heerderweg 55-E in de Maastrichtse woonwijk ''Wyckerpoort''. In Wyckerpoort gaan wonen, werken, uitgaan, cultuur en winkelen hand in hand. Het appartement ligt vlak bij de Groene Loper en op korte (fiets)afstand van het MECC, MUMC en Universiteit Maastricht. Een optimale bereikbaarheid en de vele voorzieningen maken het stadsdeel tot een plezierige leefomgeving. Het is dan ook een prachtig stuk Maastricht dat nergens zijn gelijke vindt.

Ter bescherming van de belangen van zowel koper als verkoper, wordt uitdrukkelijk gesteld dat een koopovereenkomst met betrekking tot deze onroerende zaak eerst dan tot stand komt nadat koper en verkoper de koopovereenkomst hebben getekend ("schriftelijkheidsvereiste"). De termijn die wordt opgenomen voor eventuele (overeengekomen) ontbindende voorwaarden (bv. Financiering) is in de regel 4 tot 6 weken na het sluiten van de mondelinge wilsovereenkomst.

De waarborgsom/bankgarantie is 10% van de koopsom. De koper dient deze 2 weken ná het vervallen van de ontbindende voorwaarden bij de desbetreffende notaris te deponeren.

Koper is te allen tijde gerechtigd voor eigen rekening een bouwkundige keuring te (laten) verrichten dan wel andere adviseurs te raadplegen teneinde een goed inzicht te verkrijgen over de staat van onderhoud.

Bovenstaande vrijblijvende informatie is door Pooters Makelaardij met de nodige zorgvuldigheid samengesteld. Echter aanvaardt Pooters Makelaardij geen enkele aansprakelijkheid voor enige onvolledigheid, onjuistheid of anderszins, dan wel de gevolgen daarvan. Oppervlakten en maten zijn indicatief.
Lees meer

Kenmerken

Overdracht

Prijs per m2
€ 4.771
Aangeboden sinds
15 oktober 2025
Status
Verkocht onder voorbehoud
Aanvaarding
In overleg

Bouw

Soort appartement
Maisonette, appartement
Soort bouw
Bestaande bouw
Bouwjaar
1976
Soort dak
Zadeldak
Staat van onderhouden binnen
Redelijk
Staat van onderhouden buiten
Redelijk

Oppervlakte en inhoud

Inhoud van de woning
159 m3
Oppervlakte externe bergruimte
6 m2
Oppervlakte gebouwgebonden buitenruimten
6 m2

Indeling

Aantal kamers
3
Aantal slaapkamers
2
Aantal woonlagen
2
Voorzieningen
Vve checklist, schuur/berging, kabel-tv, lift

Buitenruimte

Balkon
Nee
Schuur/berging
Ja

Maandlasten berekenen

De maandlasten voor je woning bestaan uit meer dan alleen de hypotheeklasten. Hieronder vind je een overzicht van de bijkomende kosten en lasten. Zo weet je precies wat je huis per maand gaat kosten. En met de handige vergelijkers kun je ook nog eens snel de beste deals sluiten!

  • Kaart
  • Streetview