Verkocht OV

Smidse 26B 5386 DB Geffen

80m2
Wonen
3
Kamers
0m2
Perceel
2007
Bouwjaar
Ruime, moderne maisonnette met zonnig terras, berging en parkeerplaats in hartje Geffen.

Op een prachtig punt in het centrum van Geffen is deze instapklare maisonnette gesitueerd. In 2020 is de woning volledig verbouwd en hij verkeert nog in absolute nieuwstaat.
De woning combineert modern wooncomfort met een verrassend ruime indeling en een heerlijk terras met zowel zon als beschutting.
Met een eigen berging en parkeerplaats in de parkeerkelder woon je hier comfortabel en zorgeloos.

Begane grond
Onderverdieping:
Eigen parkeerplaats en praktische berging in de parkeerkelder.

Begane grond:
Verzorgde en lichte hoofentree met lift en trapopgang.

Eerste verdieping:
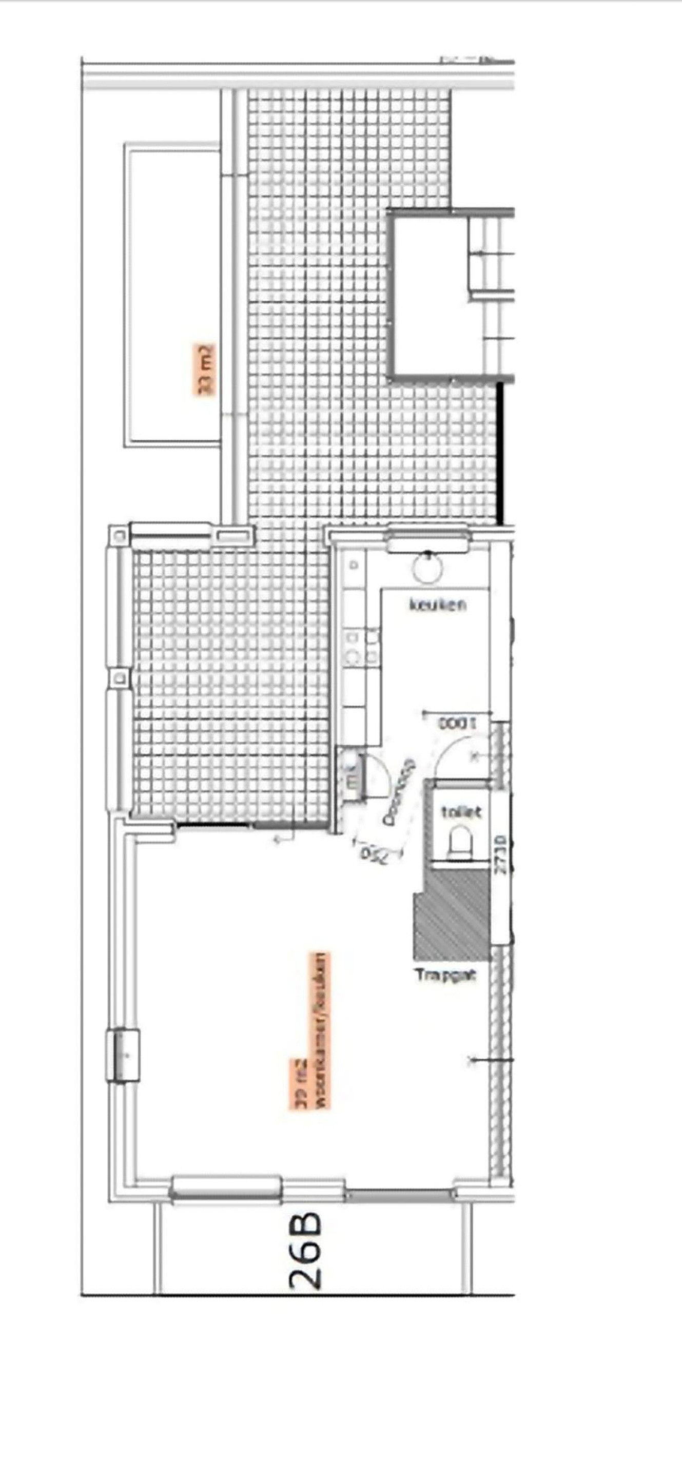
Entree tot het appartement. Hier vind je de ruime en lichte woonkamer met open keuken en grote raampartijen. De houten trap vormt een mooi detail en leidt naar de tweede verdieping.
Op deze etage bevindt zich ook het gastentoilet en een royaal, zonnig buitenterras met meerdere zitplekken. Een deel van het terras is overdekt en zelfs verwarmd, waardoor je er ook op koelere avonden heerlijk kunt zitten.

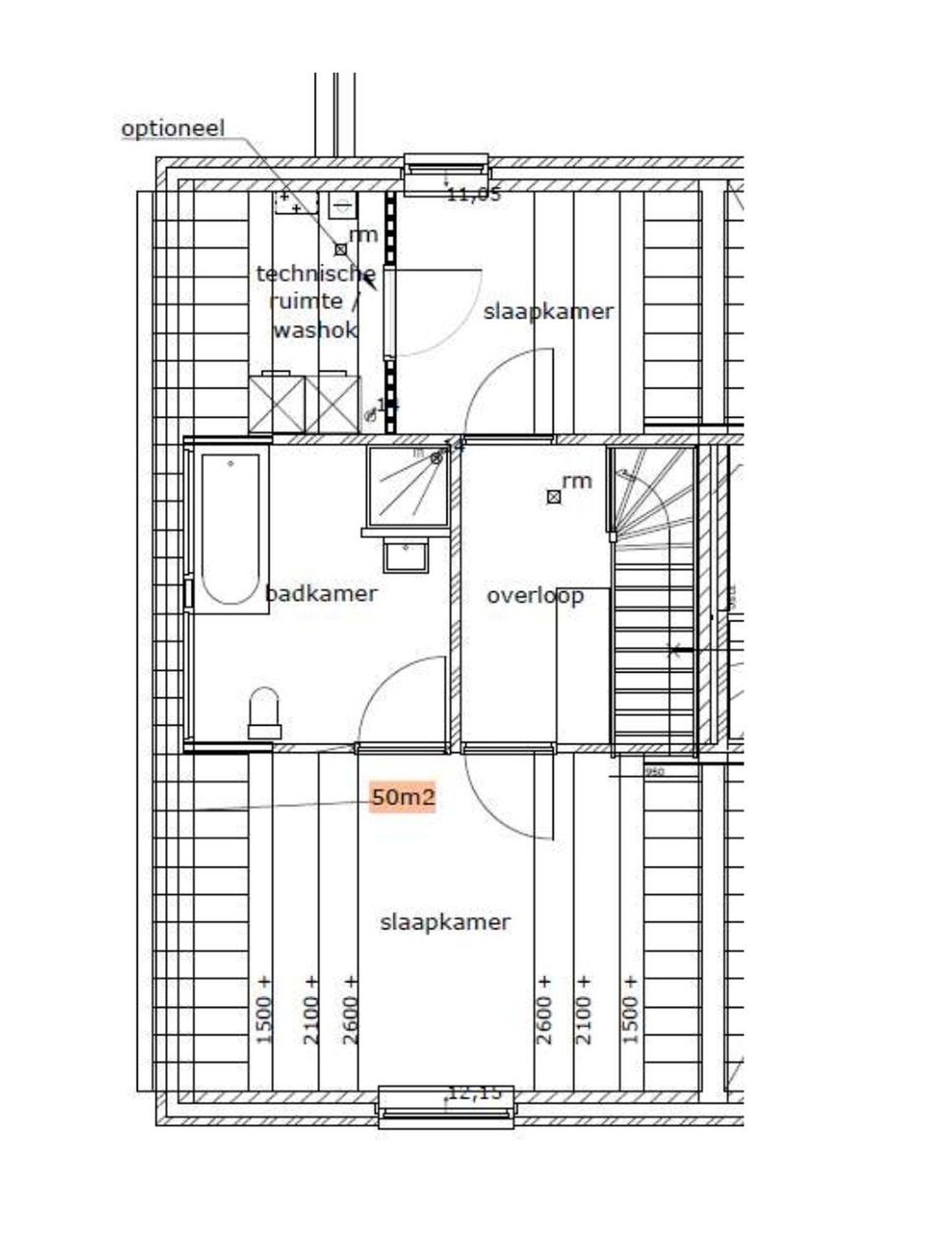
Tweede verdieping:
Royale overloop, twee ruime slaapkamers (voorzien van airco) en een royale badkamer met ligbad, douche, wastafel en tweede toilet.




Details
- Modern afgewerkt en instapklaar, in 2020 volledige nieuw opgeleverd;
- Ruime indeling, geschikt voor alleenstaanden, stellen en gezinnen;
- Groot terras met zon en verwarmd overdekt zitgedeelte;
- Eigen parkeerplaats en berging in de parkeerkelder;
- Toplocatie in Geffen, met uitzicht over de gezellige Dorpsstraat;

Een ideale woning voor wie ruim en modern wil wonen met alle voorzieningen binnen handbereik.

Lees meer

Kenmerken

Overdracht

Prijs per m2
€ 4.938
Aangeboden sinds
18 september 2025
Status
Verkocht onder voorbehoud
Aanvaarding
In overleg

Bouw

Soort appartement
Maisonette, appartement
Soort bouw
Bestaande bouw
Bouwjaar
2007
Soort dak
Zadeldak
Staat van onderhouden binnen
Goed
Staat van onderhouden buiten
Goed

Oppervlakte en inhoud

Inhoud van de woning
230 m3
Oppervlakte externe bergruimte
6 m2

Indeling

Aantal kamers
3
Aantal slaapkamers
2
Aantal woonlagen
3
Voorzieningen
Vve checklist, ventilatie, kabel-tv, glasvezel, lift, schuifpui

Buitenruimte

Balkon
Nee
Schuur/berging
Nee

Maandlasten berekenen

De maandlasten voor je woning bestaan uit meer dan alleen de hypotheeklasten. Hieronder vind je een overzicht van de bijkomende kosten en lasten. Zo weet je precies wat je huis per maand gaat kosten. En met de handige vergelijkers kun je ook nog eens snel de beste deals sluiten!

  • Kaart
  • Streetview