Verkocht OV

Keerkring 127 2904 HC Capelle aan den IJssel

103m2
Wonen
3
Kamers
0m2
Perceel
1980
Bouwjaar
Ben je op zoek naar een heerlijk appartement met 2 terrassen, een eigen parkeerplaats en een geweldig uitzicht.

Kom dan kijken bij deze maisonnette met een woonoppervlak van 103m2 op eigen grond.

Het uitstekend verzorgde complex is voorzien van een lift en beschikt over een actieve VVE. De woning beschikt over energielabel B door o.a. de kozijnen welke volledig voorzien zijn van dubbel glas.

Het appartement heeft nu 2 slaapkamers maar is heel eenvoudig weer tot de 3 oorspronkelijke slaapkamers terug te brengen.

Op beide verdiepingen is een heerlijk zonnig terras te vinden met een vrij, weids uitzicht.
Extra voordeel van dit appartement is de beschikking over een eigen berging in de onderbouw en een prive parkeerplaats in de ondergelegen parkeergarage.

Nieuwsgierig? Kom snel een kijkje nemen bij dit geweldige appartement op de Keerkring 127. Voor je het weet ben je de trotse eigenaar van jouw eigen stekkie met een van de mooiste uitzichten van Capelle.


Begane grond
Begane grond:
Afgesloten centrale hal met lift en trappenhuis. Eigen berging. De prive parkeerplaats is gelegen in de parkeergarage.

Eerste verdieping
6e verdieping:
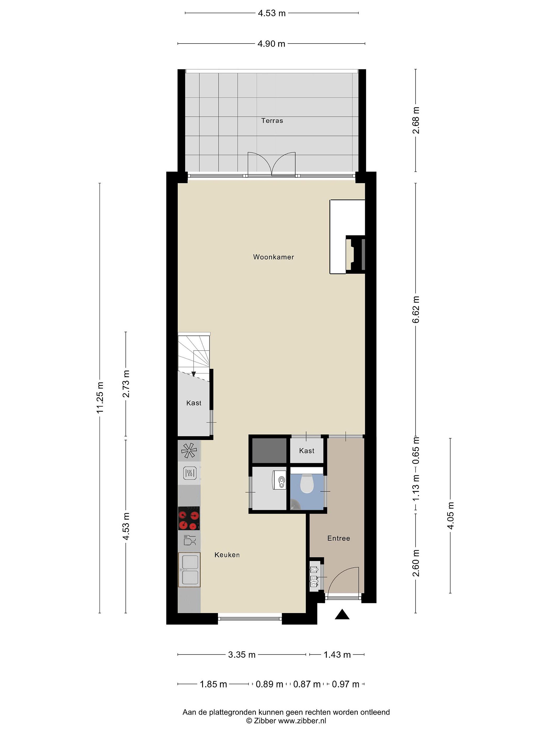
Galerij, entree, hal met toilet, woonkamer met gasopen haard en inbouwkast, ruime halfopen woonkeuken met inpandige berging. Via openslaande deuren is er toegang tot het eerste terras met veel privacy.

Tweede verdieping
7e verdieping:
Overloop met bergkast ( met wasmachine aansluiting) en toegang tot de badkamer welke is voorzien van een 2e toilet, douchecabine, designradiator en wastafelmeubel .
Slaapkamer aan de voorzijde met inbouwkasten, slaapkamer aan de achterzijde met inbouwkasten en toegang tot het tweede terras.

Details
- Verwarming en warm water middels CV
- Eigen grond
- Bouwjaar 1980
- Kunststof kozijnen met dubbel glas
- Eigen prive parkeerplaats
- Eigen prive berging in de onderbouw
- Actieve VVE met een maandelijkse bijdrage van € 340 voor de woning, berging en parkeerplaats
- Oplevering in overleg, kan snel

Lees meer

Kenmerken

Overdracht

Prijs per m2
€ 3.630
Aangeboden sinds
11 september 2025
Status
Verkocht onder voorbehoud
Aanvaarding
In overleg

Bouw

Soort appartement
Maisonette, appartement
Soort bouw
Bestaande bouw
Bouwjaar
1980
Soort dak
Plat dak
Staat van onderhouden binnen
Goed
Staat van onderhouden buiten
Goed

Oppervlakte en inhoud

Inhoud van de woning
300 m3
Oppervlakte externe bergruimte
13 m2
Oppervlakte gebouwgebonden buitenruimten
18 m2

Indeling

Aantal kamers
3
Aantal slaapkamers
2
Aantal woonlagen
2
Voorzieningen
Vve checklist

Buitenruimte

Balkon
Nee
Schuur/berging
Nee

Maandlasten berekenen

De maandlasten voor je woning bestaan uit meer dan alleen de hypotheeklasten. Hieronder vind je een overzicht van de bijkomende kosten en lasten. Zo weet je precies wat je huis per maand gaat kosten. En met de handige vergelijkers kun je ook nog eens snel de beste deals sluiten!

  • Kaart
  • Streetview