Graaf Florislaan 12 1181 EB Amstelveen

71m2
Wonen
3
Kamers
71m2
Perceel
1962
Bouwjaar
Op een TOPLOCATIE, vlakbij de grens met Amsterdam. Een modern drie-kamer-appartement (type maisonnette) met een gerenoveerde keuken, toilet en badkamer (2025), een grote woonkamer, twee slaapkamers en maar liefst twee heerlijke balkons op het Zuiden. U heeft geen boven- of onderburen, kortom heerlijk rustig wonen en privacy. Het NEN-woonoppervlak is professioneel ingemeten en bedraagt circa 71 m2. Het energielabel is C. De servicekosten zijn € 149,- per maand. (For English see below.)

De woning is gelegen op de eerste en tweede etage van een kleinschalig complex in de gewilde wijk Randwijck, in het noorden van Amstelveen en nabij de grens met Amsterdam. Parkeren kan voor het gebouw via een bewonersvergunning (40,- Euro per jaar). Om de hoek, is een halte voor een bus naar de Zuid-As, het centrum van Amsterdam of het centrum van Amstelveen. De bijbehorende berging is gelegen aan de achterzijde van het gebouw. Daarnaast is er nog extra een gemeenschappelijke en afsluitbare fietsenstalling voor alle bewoners.

INDELING
Eerste etage, entree in de hal met meterkast, NIEUW toilet met fonteintje en de toegang tot de woonkamer met open keuken. De ruime woonkamer (groot circa 22m2) biedt toegang tot een op het zuiden gelegen balkon. De aan de voorzijde van de woning gelegen open keuken is voorzien van o.a. een mooi Boretti gasfornuis en een vaatwasser. Onder de trap naar de (slaap)verdieping bevindt zich een bergkast.

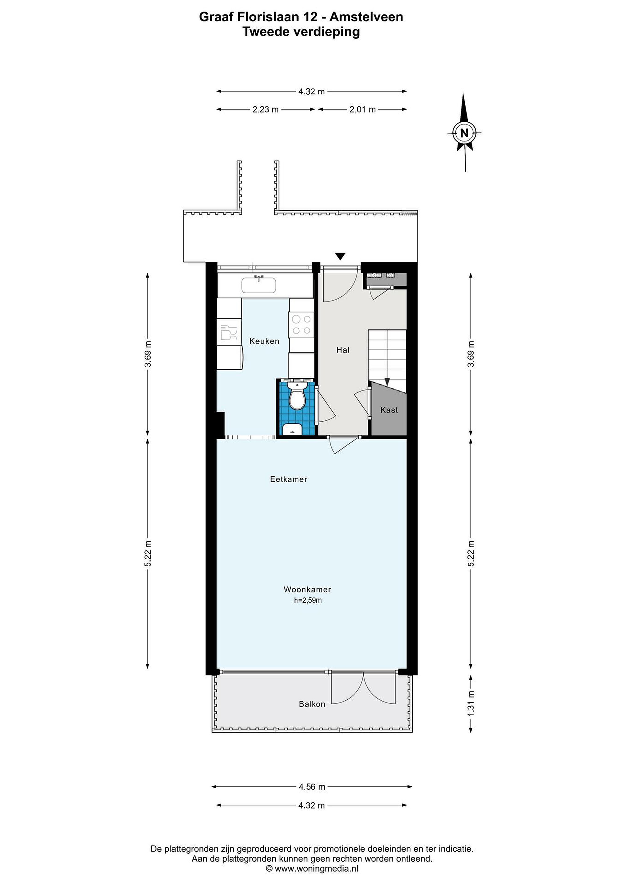
Tweede etage, overloop, grote slaapkamer gelegen aan de achterzijde met toegang tot het tweede balkon. In het midden gesitueerd een ruime NIEUWE badkamer voorzien van een tweede toilet, mooie inloopdouche, wastafelmeubel en opstelling wasmachine en droger. De badkamer is modern, strak betegeld en keurig afgewerkt. Aan de voorzijde bevindt zich nog een tweede bescheiden slaapkamer dan wel werkkamer.

Het gehele appartement is grotendeels keurig gestuct, geschilderd en voorzien van een laminaat vloer.

LOCATIE
De woning bevindt zich in de mooie en gewilde buurt Randwijck. Door de centrale ligging van het appartement ten opzichte van de Amsterdamse Zuidas en Amsterdam Zuid is de reistijd woon-/werkverkeer voor deze locaties minimaal te noemen.
Op loopafstand zijn 3 goede basisscholen aanwezig en een Internationale School. Buurtwinkels (o.a. Albert Heijn, Jumbo) bevinden zich op enkele minuten lopen. Winkelcentrum Gelderlandplein (Buitenveldert) en winkelcentrum Stadshart (Amstelveen) bevinden zich op 5 minuten fietsafstand.
Op enkele minuten fietsen ligt 'Het Amsterdamse Bos', de Amstel, en de parken Dr. Jac. P. Thijssepark en de Braak voor een fijne wandeling het hele jaar door. Meerder sportvoorzieningen bevinden zich in de nabije omgeving, tennisparken, hockeyclubs, maneges, golfclubs, voor zowel kinderen als volwassenen.
De bereikbaarheid is uitstekend, zowel met eigen als openbaar vervoer (bus, sneltram en trein). Diverse snelwegen zijn snel bereikbaar zoals de A9, A2 en A10, A4. Amstelveen is een prettige stad om te wonen en is recent beloond met de " de nummer 2 stad van Nederland ".

MEETRAPPORT
Woonoppervlakte ca. 71 m2
Twee balkons van ieder ca. 6 m2
Eigen berging ca. 4,2 m2

BIJZONDERHEDEN:
Ruim en licht appartement;
Twee woonlagen;
Grote living, twee slaapkamers, moderne fijne keuken;
Nieuwe badkamer, nieuw gastentoilet;
Riante eigen berging op de begane grond;
Verwarming middels eigen HR-c.v.-installatie (2016);
Actieve vereniging van eigenaren;
VvE-bijdrage is circa € 149,- per maand;
Eigen grond;
Kleinschalig fijn complex;
Uitstekende locatie in Amstelveen, op de rand van Amsterdam.

Belt u ons voor een afspraak voor een eigen bezichtiging en geniet van dit lichte en ruime appartement. U bent welkom.

In a PRIME LOCATION, near the Amsterdam border. A modern three-room apartment (maisonette style) with a renovated kitchen, toilet, and bathroom (2025), a large living room, two bedrooms, and no fewer than two lovely south-facing balconies. You won't have any upstairs or downstairs neighbors, in short, wonderfully peaceful and private living. The NEN-certified living space has been professionally measured and is approximately 71 m2. The energy label is C. The service costs are €149 per month. (For English, see below.)

The apartment is located on the first and second floors of a small complex in the desirable Randwijck neighborhood, in the north of Amstelveen and near the Amsterdam border. Parking is available in front of the building with a resident's permit (€40 per year). Around the corner, there is a bus stop to the Zuidas district, Amsterdam city center, or Amstelveen. The associated storage unit is located at the rear of the building. There is also a shared, lockable bicycle shed for all residents.

LAYOUT
First floor: Entrance hall with meter cupboard, NEW toilet with hand basin, and access to the living room with open-plan kitchen. The spacious living room (approximately 22m2) opens onto a south-facing balcony. The open-plan kitchen, located at the front of the house, is equipped with a beautiful Boretti gas stove and a dishwasher. A storage cupboard is located under the stairs to the (bedroom) floor.

Second floor: Landing, large bedroom located at the rear with access to the second balcony. Centrally located is a spacious NEW bathroom with a second toilet, a beautiful walk-in shower, a vanity, and a washing machine and dryer. The bathroom is modern, neatly tiled, and neatly finished. At the front of the house is a second, modest bedroom/study.

The entire apartment is largely neatly plastered, painted, and has laminate flooring.

LOCATION
The house is located in the beautiful and desirable Randwijck neighborhood. The apartment's central location, close to the Amsterdam Zuidas and Amsterdam Zuid districts, minimizes commuting time.

Three excellent primary schools and an international school are within walking distance. Local shops (including Albert Heijn and Jumbo) are just a few minutes' walk away. The Gelderlandplein shopping center (Buitenveldert) and Stadshart shopping center (Amstelveen) are a 5-minute bike ride away.

Just a few minutes by bike are the Amsterdamse Bos (Amsterdam Forest), the Amstel River, and the Dr. Jac. P. Thijssepark and De Braak parks, perfect for a pleasant walk year-round. Numerous sports facilities, including tennis courts, hockey clubs, riding stables, and golf clubs for both children and adults, are located nearby.
Accessibility is excellent, both by car and public transport (bus, light rail, and train). Several highways, including the A9, A2, A10, and A4, are easily accessible. Amstelveen is a pleasant city to live in and was recently awarded the title of "number 2 city in the Netherlands."

MEASUREMENT REPORT
Living area approx. 71 m2
Two balconies of approx. 6 m2 each
Private storage room approx. 4.2 m2

DETAILS:
Spacious and bright apartment;
Two floors;
Large living room, two bedrooms, modern, well-equipped kitchen;
New bathroom, new guest toilet;
Large private storage room on the ground floor;
Heating via private high-efficiency central heating system (2016);
Active homeowners' association;
Homeowners' association fee is approximately €149 per month;
Private land;
Small, pleasant complex;
Excellent location in Amstelveen, on the outskirts of Amsterdam.

Call us to schedule a private viewing and enjoy this bright and spacious apartment. You are welcome.
Lees meer

Kenmerken

Overdracht

Prijs per m2
€ 6.268
Aangeboden sinds
12 november 2025
Status
Beschikbaar
Aanvaarding
In overleg

Bouw

Soort appartement
Maisonette, appartement
Soort bouw
Bestaande bouw
Bouwjaar
1962
Soort dak
Plat dak
Staat van onderhouden binnen
Goed
Staat van onderhouden buiten
Goed

Oppervlakte en inhoud

Inhoud van de woning
210 m3
Oppervlakte externe bergruimte
4 m2
Oppervlakte gebouwgebonden buitenruimten
12 m2

Indeling

Aantal kamers
3
Aantal slaapkamers
2
Aantal woonlagen
2
Voorzieningen
Vve checklist, balkon, schuur/berging

Buitenruimte

Balkon
Ja
Schuur/berging
Ja

Maandlasten berekenen

De maandlasten voor je woning bestaan uit meer dan alleen de hypotheeklasten. Hieronder vind je een overzicht van de bijkomende kosten en lasten. Zo weet je precies wat je huis per maand gaat kosten. En met de handige vergelijkers kun je ook nog eens snel de beste deals sluiten!

  • Kaart
  • Streetview