Kadoelerbos 43 2715 RX Zoetermeer

92m2
Wonen
4
Kamers
0m2
Perceel
1972
Bouwjaar
WELKOM IN DIT GOED ONDERHOUDEN, VERRASSEND RUIME, LICHT EN MODERNE 4-KAMER APPARTEMENT OP DE VIERDE VERDIEPING MET 3 SLAAPKAMERS, EEN BALKON EN BERGING IN DE ONDERBOUW. GELEGEN MIDDEN IN DE KINDVRIENDELIJKE EN GROENE WIJK MEERZICHT, NABIJ RECREATIE (WESTERPARK), WINKELS (WINKELCENTRUM MEERZICHT), SCHOLEN, OPENBAAR VERVOER, TREINSTATION EN UITVALSWEGEN.
HET VERZORGDE COMPLEX MET AFGESLOTEN ENTREE HEEFT EEN ACTIEVE VVE MET EEN MEERJARENONDERHOUDSPLAN EN IS BEZIG MET EEN VERDUURZAMINGSPROJECT.
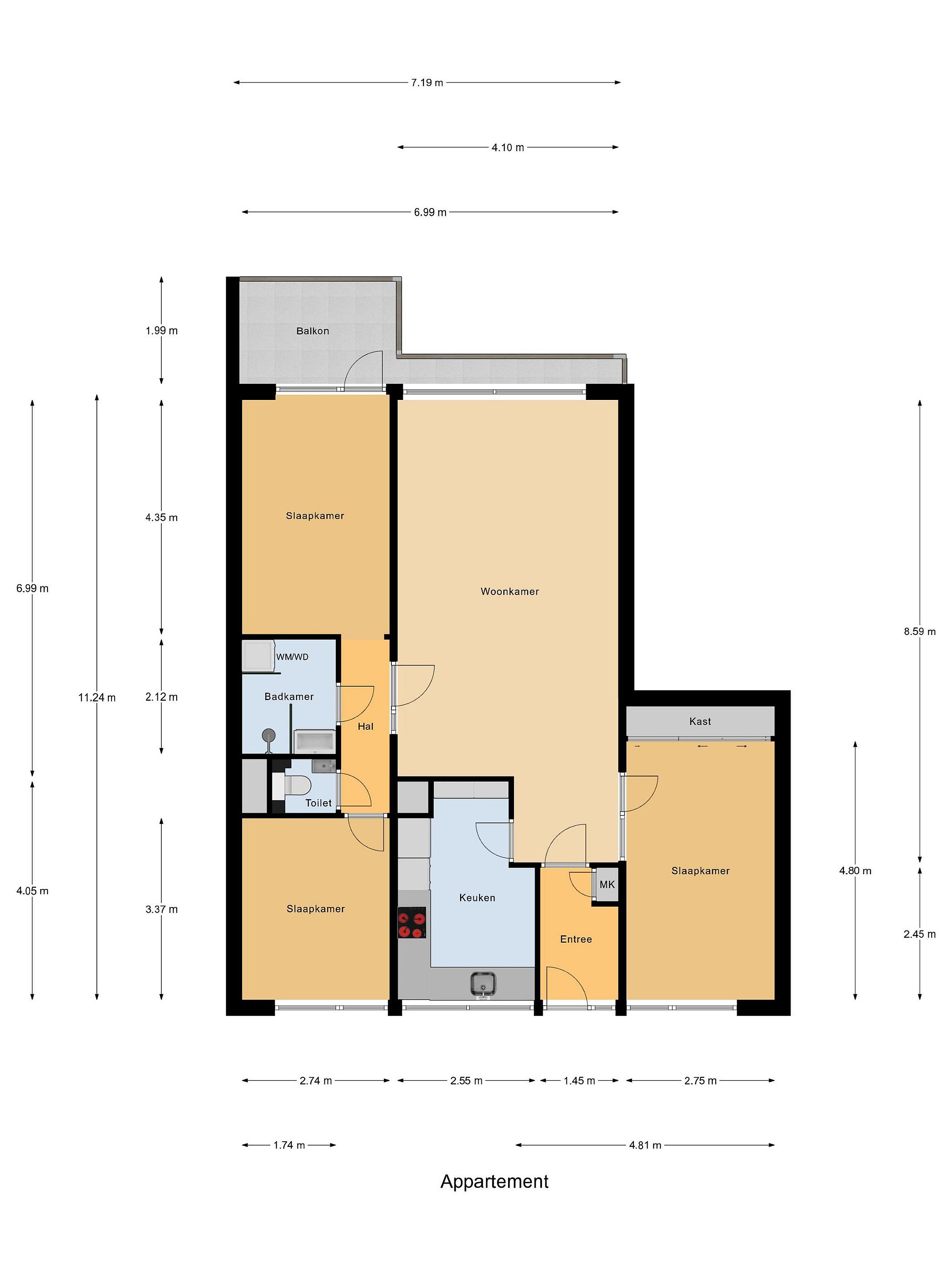
Begane grond
Via de centrale hal met intercom, brievenbussen, liften en trappenhuis bereikt u de woning via de galerij.

Achter de voordeur komt u in de hal (ca 2,5x1,5m) met garderobe en meterkast. De lichte woonkamer (ca 8,6x4,1m) is een heerlijke leefruimte met een mooi uitzicht en een nette laminaatvloer. Vanuit hier heeft u toegang tot: een ruime slaapkamer (ca 4,8x2,8m) aan de voorzijde voorzien van een praktische schuifkastenwand; de moderne Bruynzeel keuken (ca 4,1x2,6m) ligt eveneens aan de voorzijde en is compleet uitgerust met een 4-pits inductiekookplaat met afzuigkap, vaatwasser, combimagnetron, koelkast en vriezer – ideaal voor wie van koken houdt.

Via een tweede hal bereikt u het moderne toilet met fonteintje en de betegelde badkamer met inloopdouche, wastafelmeubel en aansluitingen voor wasmachine en droger. Aan de voorzijde een tweede slaapkamer (ca 3,4x2,7m) en aan de achterzijde ligt de derde slaapkamer (ca 4,4x2,7m) met directe toegang tot het balkon (ca 2x2,7m), waar u heerlijk kunt genieten van de buitenlucht en het uitzicht.

Op de begane grond in de onderbouw een eigen berging (ca 1,4x5m).

Kortom: een instapklaar appartement met drie slaapkamers, moderne voorzieningen en een fijne buitenruimte – perfect voor starters, doorstromers of gezinnen die comfortabel willen wonen op een centrale locatie.

Details
- Bouwjaar 1972
- Eigen grond
- Woonoppervlakte: 92 m2 (meetrapport aanwezig)
- Energielabel C (geldig tot 2035)
- Volledig voorzien van dubbele beglazing
- Keuken, badkamer en toilet zijn gerenoveerd
- Actieve VvE, bijdrage € 319,40 per maand
- Voorschot blokverwarming € 90,- per maand
- Meerjarig onderhoudsplan aanwezig + VVE is bezig met een verduurzamingsplan
- Gezien het bouwjaar wordt de Ouderdomsclausule opgenomen
- Aanvaarding per direct.

Lees meer

Kenmerken

Overdracht

Prijs per m2
€ 3.409
Aangeboden sinds
6 februari 2026
Status
Beschikbaar
Aanvaarding
Direct

Bouw

Soort appartement
Galerijflat, appartement
Soort bouw
Bestaande bouw
Bouwjaar
1972
Soort dak
Plat dak
Staat van onderhouden binnen
Goed
Staat van onderhouden buiten
Goed

Oppervlakte en inhoud

Inhoud van de woning
299 m3
Oppervlakte externe bergruimte
7 m2
Oppervlakte gebouwgebonden buitenruimten
8 m2

Indeling

Aantal kamers
4
Aantal slaapkamers
3
Aantal woonlagen
1
Voorzieningen
Vve checklist, schuur/berging

Buitenruimte

Balkon
Nee
Schuur/berging
Ja

Maandlasten berekenen

De maandlasten voor je woning bestaan uit meer dan alleen de hypotheeklasten. Hieronder vind je een overzicht van de bijkomende kosten en lasten. Zo weet je precies wat je huis per maand gaat kosten. En met de handige vergelijkers kun je ook nog eens snel de beste deals sluiten!

  • Kaart
  • Streetview