Dubbelspoor 71 2742 MX Waddinxveen

75m2
Wonen
3
Kamers
0m2
Perceel
2019
Bouwjaar
Stijlvol wonen aan het Dubbelspoor 71

Dit uitstekend onderhouden driekamerappartement uit 2019 combineert modern wooncomfort met een ideale ligging in de jonge, geliefde wijk Park Triangel. Het appartement maakt deel uit van een kleinschalig en modern complex van slechts drie woonlagen, wat zorgt voor een rustige en prettige woonomgeving. Gelegen op de eerste verdieping geniet u hier van een vrij uitzicht en een heerlijk balkon op het zuidoosten. Uw auto parkeert u op het besloten parkeerterrein aan de binnenzijde van het complex, terwijl de eigen berging op de begane grond extra praktische ruimte biedt.

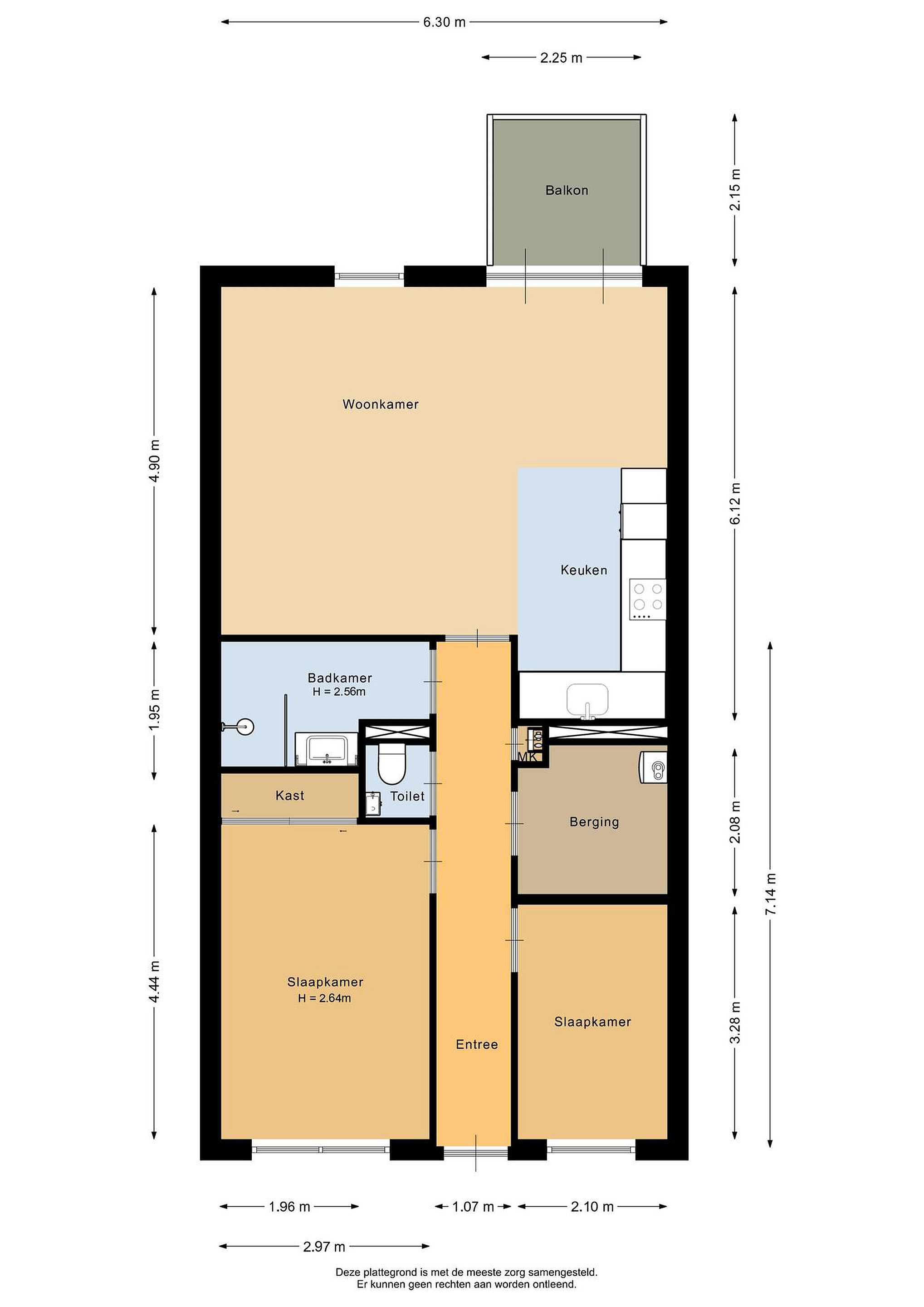
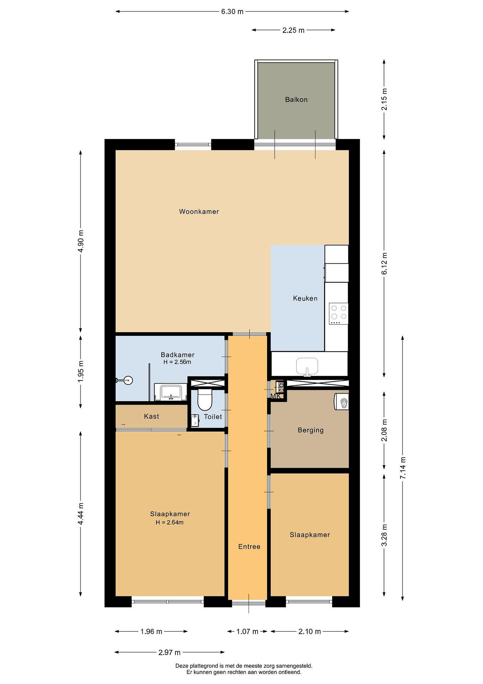
Het woonoppervlak van dit appartement is 75m2.
Begane grond
Bij binnenkomst in de ruime ontvangsthal valt direct de hoogwaardige afwerking op. Het gehele appartement is voorzien van een drempelloze plavuizenvloer met een houtnerfuitstraling, gecombineerd met strak gestuukte wanden. Comfort staat centraal dankzij de volledige vloerverwarming, die in de slaapkamers afzonderlijk regelbaar is. De standaard binnendeuren zijn vervangen door luxe exemplaren met stijlvol hang- en sluitwerk, wat het geheel een chique uitstraling geeft. De twee slaapkamers aan de voorzijde zijn heerlijk licht door de grote draaikiepramen, waarbij de hoofdslaapkamer bovendien is uitgerust met een kastenwand.

De badkamer en de separate toiletruimte zijn met oog voor design vernieuwd en stralen pure luxe uit. In de badkamer vindt u een modern wastafelmeubel, een ruime inloopdouche met een glazen scherm en een handdoekradiator, alles uitgevoerd in een eigentijds tegelwerk. Naast de sanitaire ruimtes bevindt zich een praktische inpandige berging met de aansluitingen voor de wasapparatuur en de opstelling van de efficiënte HR-ketel. Ook de meterkast is toekomstbestendig ingericht met tien groepen en drie aardlekschakelaars.

De woonkamer met open keuken vormt het hart van de woning. Door de grote openslaande deuren naar het balkon komt het daglicht naar binnen. De keuken is uitgevoerd in een lichte, greeploze hoekopstelling en is van alle gemakken voorzien, waaronder een inductiekookplaat, vaatwasser, combimagnetron en een praktische kokendwaterkraan. Dankzij de twee eigen zonnepanelen op het dak profiteert u bovendien van een prima energielabel.


Details
Wonen in Park Triangel betekent centraal wonen met alle voorzieningen om de hoek. Of het nu gaat om de huisarts, scholen of een middag sporten op het parkeiland; alles is te voet bereikbaar. Bovendien ben je via het nabijgelegen NS-station (Gouda – Alphen a/d Rijn) in een mum van tijd op je bestemming. Ook de uitvalswegen naar de A12 en A20 zijn zeer snel bereikbaar.

Het appartement wordt beheerd door een actieve en gezonde Vereniging van Eigenaren met een maandelijkse bijdrage van € 131,53. Veiligheid is gewaarborgd door de video-intercominstallatie in de centrale hal. De oplevering van dit instapklare appartement vindt plaats in goed overleg.


Deze vrijblijvende objectinformatie is met de grootste zorg samengesteld, maar voor de juistheid daarvan kan geen aansprakelijkheid worden aanvaard. Aan de vermelde gegevens kunnen geen rechten worden ontleend. Alle informatie is uitsluitend bedoeld voor de presentatie van het object en geldt als een uitnodiging tot het doen van een bod. Eventueel bijgevoegde plattegronden zijn slechts indicatief.

Lees meer

Kenmerken

Overdracht

Prijs per m2
€ 5.269
Aangeboden sinds
9 april 2026
Status
Beschikbaar
Aanvaarding
In overleg

Bouw

Soort appartement
Galerijflat, appartement
Soort bouw
Bestaande bouw
Bouwjaar
2019
Soort dak
Plat dak
Staat van onderhouden binnen
Goed
Staat van onderhouden buiten
Goed

Oppervlakte en inhoud

Inhoud van de woning
238 m3
Oppervlakte externe bergruimte
5 m2
Oppervlakte gebouwgebonden buitenruimten
5 m2

Indeling

Aantal kamers
3
Aantal slaapkamers
2
Aantal woonlagen
1
Voorzieningen
Vve checklist, balkon, schuur/berging, ventilatie, rolluiken, kabel-tv

Buitenruimte

Balkon
Ja
Schuur/berging
Ja

Maandlasten berekenen

De maandlasten voor je woning bestaan uit meer dan alleen de hypotheeklasten. Hieronder vind je een overzicht van de bijkomende kosten en lasten. Zo weet je precies wat je huis per maand gaat kosten. En met de handige vergelijkers kun je ook nog eens snel de beste deals sluiten!

  • Kaart
  • Streetview