Brederolaan 18 2741 BH Waddinxveen

87m2
Wonen
4
Kamers
0m2
Perceel
1966
Bouwjaar
LET OP: Vanwege de grote belangstelling is er op dit moment een tijdelijke stop voor het inplannen van bezichtigingen.
Laat gerust uw gegevens achter om als reservekandidaat te worden genoteerd.

LICHT, RUIM EN INSTAPKLAAR – MODERN APPARTEMENT MET 3 SLAAPKAMERS EN ZONNIG BALKON
Welkom aan de Brederolaan 18 in Waddinxveen!

Dit verzorgde en verrassend ruime appartement biedt alles wat je zoekt: een moderne keuken (2017), drie volwaardige slaapkamers, een zonnig balkon op het oosten en een eigentijdse afwerking. Dankzij de lichte woonkamer, lage stookkosten en centrale ligging boven de winkels is dit een ideale woning voor wie comfortabel en praktisch wil wonen – perfect voor starters én doorstromers die waarde hechten aan ruimte en gemak.
Begane grond
Het appartement bevindt zich op de eerste verdieping van een verzorgd complex boven de winkels. Bij binnenkomst tref je een gezamenlijke entree met brievenbussen, trapopgang en toegang tot de bergingen in de onderbouw. De algemene ruimten zijn netjes afgewerkt en voorzien van een tegelvloer en lichtkoepel, waardoor het geheel aangenaam licht oogt.

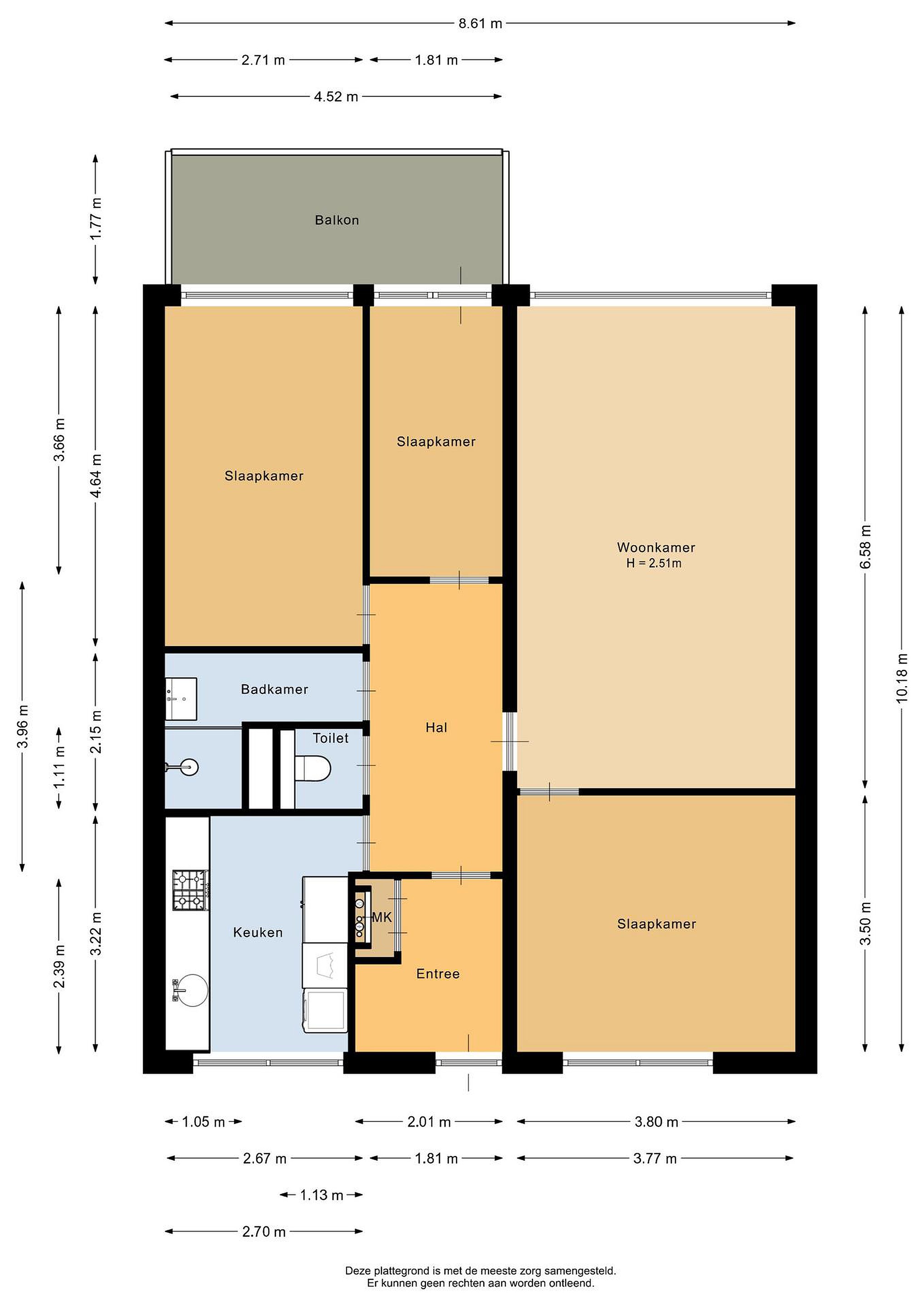
Vanuit de hal in het appartement zijn alle vertrekken bereikbaar. De ruime woonkamer aan de voorzijde heeft grote raampartijen die zorgen voor veel lichtinval en een prettig uitzicht over de straat. De lichte laminaatvloer loopt door in de gehele woning en geeft het appartement een moderne, rustige uitstraling.

De keuken (eind 2017) is aan de achterzijde gesitueerd en voorzien van een strak werkblad, witte fronten en een RVS-achterwand. Hier is ruimte voor een Amerikaanse koelkast, een groot 6-pits gasfornuis met oven, en de aansluitingen voor zowel wasmachine als droger. Dankzij de efficiënte indeling biedt de keuken veel werk- en opbergruimte, ideaal voor kookliefhebbers.

Het appartement beschikt over drie volwaardige slaapkamers, waarvan twee met toegang tot het balkon. De kamers zijn licht, netjes afgewerkt en goed in te delen als hoofdslaapkamer, werk- of logeerkamer. De badkamer is voorzien van een douche en wastafelmeubel, terwijl het toilet separaat is en beschikt over een zwevend closet.

Details
- Woonoppervlakte ca. 87 m2
- Bouwjaar 1966
- Moderne keuken (2017) met 6-pits fornuis, oven en aansluitingen voor wasmachine/droger
- Drie volwaardige slaapkamers
- Lichte woonkamer met laminaatvloer
- Zonnig balkon op het oosten
- Dubbel glas
- Blokverwarming met lage stookkosten (verbruik 2024: € 502)
- Actieve en goed functionerende VvE
- Bijdrage V.v.E appartement € 157,33 per maand
- Externe bergruimte (berging/schuur): ca. 8 m2
- Centrale ligging boven winkels
- Oplevering in overleg, indicatie januari 2026

Locatie – Brederolaan, Waddinxveen
De woning ligt op een gunstige locatie, direct boven een klein winkelcentrum met onder meer een supermarkt, bakker en eetgelegenheden. In de directe omgeving bevinden zich scholen, openbaar vervoer, sportfaciliteiten en recreatiegebieden zoals het Gouwebos. Ook het centrum van Waddinxveen en het NS-station zijn binnen enkele minuten bereikbaar, evenals de uitvalswegen richting Gouda, Rotterdam en Den Haag.

Een ruim, licht en instapklaar appartement met drie slaapkamers, een moderne keuken en zonnig balkon – een uitstekende kans voor wie centraal en comfortabel wil wonen in Waddinxveen. Neem gerust contact met ons op voor het plannen van een bezichtiging; we laten het appartement graag aan u zien.

Deze vrijblijvende objectinformatie is met de meeste zorg samengesteld, maar voor de juistheid daarvan kunnen wij geen aansprakelijkheid aanvaarden. Ook kan aan de vermelde gegevens geen enkel recht worden ontleend. Alle informatie is enkel en alleen bedoeld voor de presentatie van het object en niet meer dan een uitnodiging tot het doen van een bod. Eventueel bijgevoegde plattegronden zijn slechts indicatief.

Lees meer

Kenmerken

Overdracht

Prijs per m2
€ 3.207
Aangeboden sinds
6 oktober 2025
Status
Beschikbaar
Aanvaarding
In overleg

Bouw

Soort appartement
Galerijflat, appartement
Soort bouw
Bestaande bouw
Bouwjaar
1966
Soort dak
Plat dak
Staat van onderhouden binnen
Goed
Staat van onderhouden buiten
Goed

Oppervlakte en inhoud

Inhoud van de woning
270 m3
Oppervlakte externe bergruimte
7 m2
Oppervlakte gebouwgebonden buitenruimten
8 m2

Indeling

Aantal kamers
4
Aantal slaapkamers
3
Aantal woonlagen
1
Voorzieningen
Balkon, schuur/berging, ventilatie

Buitenruimte

Balkon
Ja
Schuur/berging
Ja

Maandlasten berekenen

De maandlasten voor je woning bestaan uit meer dan alleen de hypotheeklasten. Hieronder vind je een overzicht van de bijkomende kosten en lasten. Zo weet je precies wat je huis per maand gaat kosten. En met de handige vergelijkers kun je ook nog eens snel de beste deals sluiten!

  • Kaart
  • Streetview