Eisenhowerstraat 530 6135 BG Sittard

90m2
Wonen
4
Kamers
0m2
Perceel
1967
Bouwjaar
Ruim appartement met balkon en fraai uitzicht

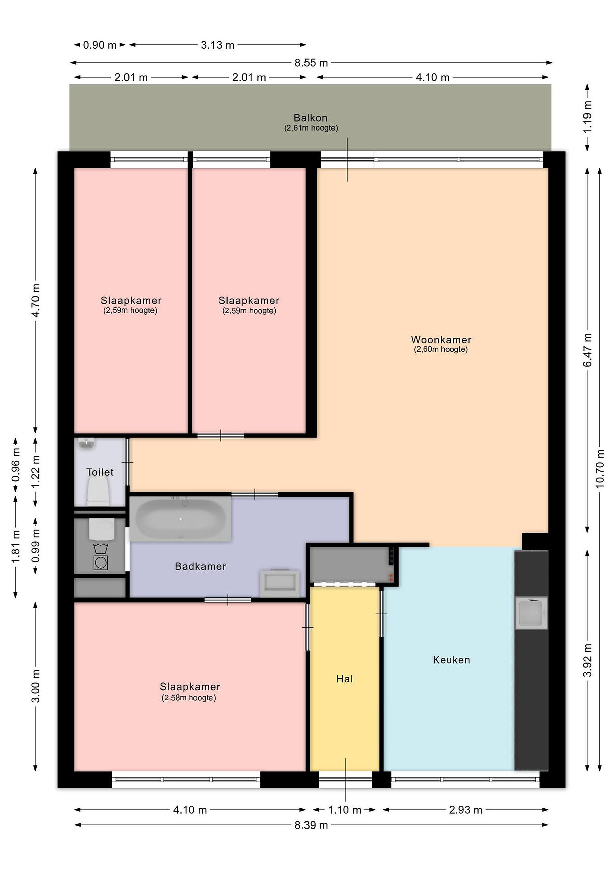
Op een centrale locatie in Sittard bevindt zich dit ruime appartement op de elfde verdieping van een verzorgd appartementencomplex aan de Eisenhowerstraat. De woning beschikt over een lichte woonkamer met balkon, een open keuken, drie slaapkamers en een badkamer met een ligbad. Dankzij de grote raampartijen en de ligging op hoogte geniet je hier van veel daglicht en een vrij uitzicht over de omgeving.

Het appartement ligt in een groene woonomgeving met diverse voorzieningen in de directe nabijheid. Winkels, supermarkten, openbaar vervoer en uitvalswegen richting onder andere Sittard-centrum, Geleen en de autosnelwegen zijn eenvoudig bereikbaar. In de omgeving zijn daarnaast diverse wandel- en groenvoorzieningen aanwezig, wat zorgt voor een prettige woonomgeving.
Begane grond
Via de gezamenlijke entree met brievenbussen en het trappenhuis, evenals de liftinstallatie, bereik je het appartement op de elfde verdieping.

Bij binnenkomst kom je in de ontvangsthal, afgewerkt met een laminaatvloer. Deze hal vormt het centrale punt van het appartement en biedt toegang tot de keuken en een slaapkamer.

De open keuken sluit aan op de woonkamer en is praktisch ingericht. De ruimte is voorzien van een laminaatvloer en beschikt over houten kozijnen met HR++ beglazing. De keuken is uitgerust met diverse inbouwapparatuur, waaronder een inductiekookplaat, afzuigkap, combi-oven, koelkast en een vaatwasser. Hierdoor is de keuken compleet en functioneel ingericht voor dagelijks gebruik.

De woonkamer is ruim van opzet en geniet van veel natuurlijk daglicht dankzij de grote raampartijen met houten kozijnen met HR++ beglazing. De ruimte is afgewerkt met een laminaatvloer en biedt voldoende plaats voor zowel een comfortabele zithoek als een eethoek. Vanuit de woonkamer is er directe toegang tot het balkon aan de voorzijde van het appartement. Hier kun je prettig buiten zitten en genieten van het vrije uitzicht over de omgeving.

Het appartement beschikt over drie slaapkamers. Alle kamers zijn voorzien van een laminaatvloer, houten kozijnen met HR++ beglazing en prettig daglicht. De slaapkamers zijn flexibel in te delen en kunnen naast slaapruimte bijvoorbeeld ook dienen als werkkamer of hobbyruimte.

De badkamer is afgewerkt met een tegelvloer en beschikt over een ligbad, een badkamermeubel met wastafel en spiegel en een radiator. Daarnaast bevinden zich hier de witgoedaansluitingen en de warmwaterboiler. De badkamer dient gerenoveerd te worden, waardoor er de mogelijkheid is om deze geheel naar eigen smaak en wensen te vernieuwen.

Het separate toilet is betegeld en voorzien van een zwevend toilet met fonteintje.

Details
Energielabel
Ruim appartement met praktische indeling
Gelegen op de elfde verdieping met veel daglicht en een prachtig uitzicht
Lichte woonkamer met toegang tot het balkon
Open keuken met diverse inbouwapparatuur
Voorzien van stadsverwarming
Lift aanwezig in het complex
Gelegen nabij winkels, openbaar vervoer en uitvalswegen
VvE bijdrage (€ 161,99 p.m.)

De informatie is met de nodige zorgvuldigheid door ons samengesteld. Er kunnen geen rechten worden ontleend aan deze advertentie en brochure en aanvaarden wij geen enkele aansprakelijkheid voor enige onvolledigheid, onjuistheid of anderszins, dan wel de gevolgen daarvan. Maatvoeringen en oppervlakten zijn indicatief.

Lees meer

Kenmerken

Overdracht

Prijs per m2
€ 1.944
Aangeboden sinds
20 maart 2026
Status
Beschikbaar
Aanvaarding
In overleg

Bouw

Soort appartement
Galerijflat, appartement
Soort bouw
Bestaande bouw
Bouwjaar
1967
Soort dak
Plat dak
Staat van onderhouden binnen
Goed
Staat van onderhouden buiten
Goed

Oppervlakte en inhoud

Inhoud van de woning
294 m3
Oppervlakte gebouwgebonden buitenruimten
10 m2
Oppervlakte overige inpandige ruimten
5 m2

Indeling

Aantal kamers
4
Aantal slaapkamers
3
Aantal woonlagen
1
Voorzieningen
Balkon, schuur/berging, lift

Buitenruimte

Balkon
Ja
Schuur/berging
Ja

Maandlasten berekenen

De maandlasten voor je woning bestaan uit meer dan alleen de hypotheeklasten. Hieronder vind je een overzicht van de bijkomende kosten en lasten. Zo weet je precies wat je huis per maand gaat kosten. En met de handige vergelijkers kun je ook nog eens snel de beste deals sluiten!

  • Kaart
  • Streetview