Verkocht OV

Chopinplein 134 3122 VM Schiedam

94m2
Wonen
5
Kamers
0m2
Perceel
1970
Bouwjaar
HEERLIJK GELIJKVLOERS WONEN MET PRACHTIG UITZICHT OP PARK GROENOORD
IDEALE LIGGING NABIJ WINKELCENTRUM, OV EN UITVALSWEGEN

Welkom in de Beneluxflat, Europaflat of Rijnmondflat, drie geliefde complexen aan het Chopinplein, Griegplein en Sibeliusplein in Schiedam. Dit 5-kamer appartement met balkon op de 6e verdieping biedt u het gemak van gelijkvloers wonen, een fantastisch groen uitzicht en een uitstekende locatie nabij alle voorzieningen. Bovendien staat uw woning op eigen grond!

COMFORTABEL EN VEILIG WONEN
De complexen beschikken over centrale, afgesloten entrees met liften, zodat u veilig en comfortabel thuis komt. Vanuit de woonkamer en het balkon geniet u dagelijks van het prachtige zicht op Park Groenoord. In de onderbouw is er een (fietsen)berging, en parkeren doet u eenvoudig voor de deur.

ALLE VOORZIENINGEN OP LOOPAFSTAND
Voor de dagelijkse boodschappen hoeft u nauwelijks de deur uit. Direct voor de Rijnmondflat ligt een supermarkt en een bushalte. Aan het Van Beethovenplein is nog een extra bushalte. Het winkelcentrum Hof van Spaland en de winkels aan de Laan van Bolnes zijn op loopafstand, waardoor alles binnen handbereik is.

CENTRALE LIGGING MET UITSTEKENDE BEREIKBAARHEID
De wijk Groenoord ligt ideaal tussen het historische centrum van Schiedam en natuur- en recreatiegebied Midden-Delfland. Dankzij de nabijheid van afslag Schiedam-Noord bent u via de A4 en A20 snel in Rotterdam, Delft, Den Haag of zelfs op het strand van Hoek van Holland. Ook met het openbaar vervoer reist u eenvoudig naar uw bestemming.

GENIET VAN DE SFEER VAN SCHIEDAM
Schiedam heeft een uniek karakter binnen de regio Rijnmond. De historische binnenstad barst van de charme met haar monumentale pakhuizen, branderijen en havens die de jeneverhistorie doen herleven. Hier vindt u een uitgebreid winkelaanbod, gezellige terrasjes en horeca. Daarnaast biedt Schiedam een NS-station, metroverbinding naar Rotterdam en Hoek van Holland en een bioscoop.

INTERESSE? NEEM CONTACT OP!
Wilt u comfortabel en centraal wonen met een groen uitzicht? Plan dan snel een bezichtiging en ontdek zelf de voordelen van deze appartementen!

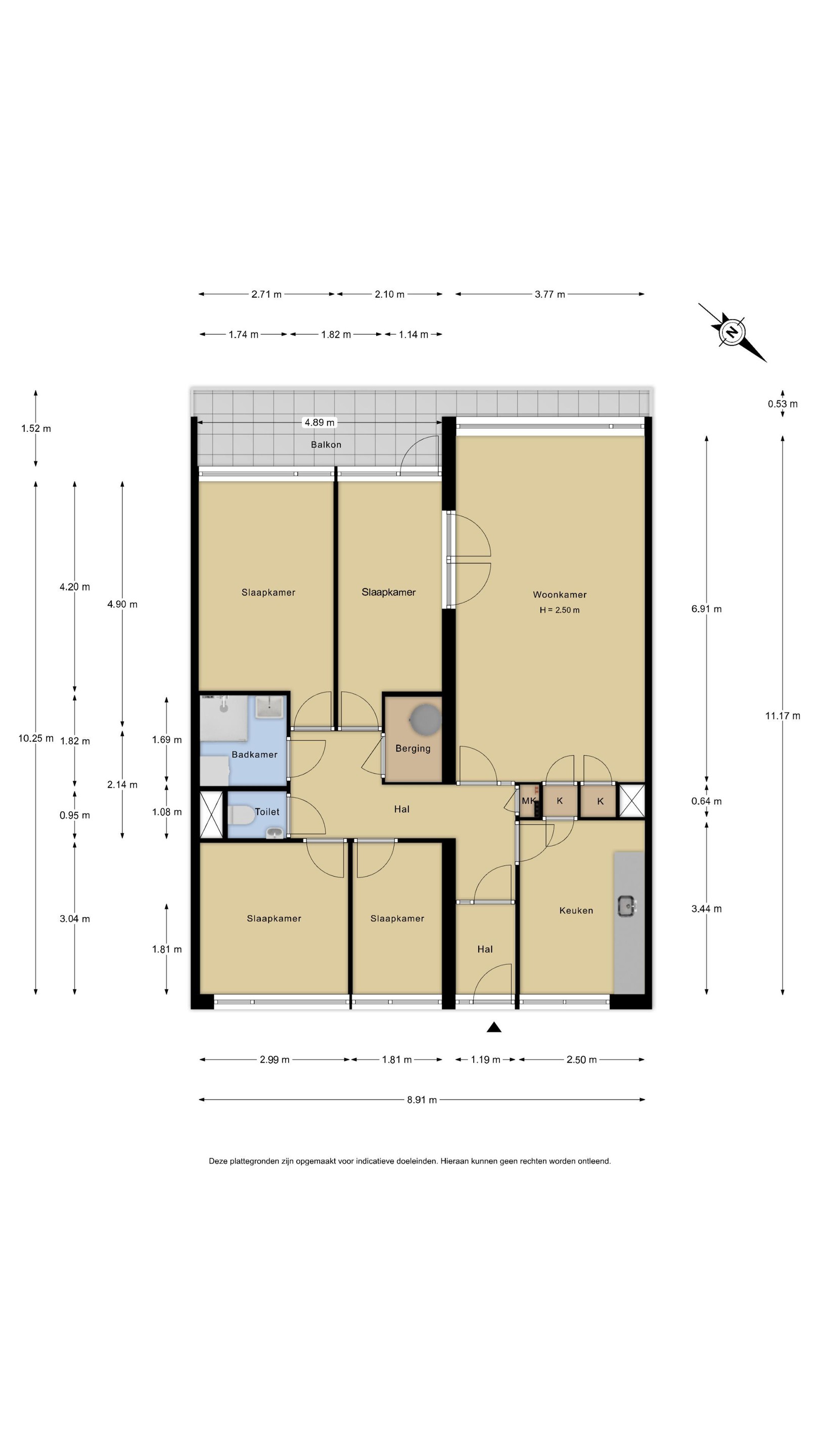
GLOBALE INDELING:
Ontdek met de plattegronden de indeling en ervaar de mogelijkheden. Laat je inspireren door de sfeervolle foto’s en wandel virtueel door de woning. Krijg een levensechte indruk. Klik, kijk en ontdek hoe deze plek jouw nieuwe thuis kan worden!

ALGEMEEN:
Oppervlakte woning ca. 94m2
Inhoud woning ca. 291m3
Oppervlakte buitenruimte ca. 10m2
Oppervlakte berging ca. 7m2
Oplevering in overleg, kan snel
Bouwjaar omstreeks 1970
Eigen grond
Verwarming d.m.v. blokverwarming en warm water d.m.v. boiler
VvE-bijdrage circa € 178,09 per maand per 2026
Voorschot stookkosten € 119,23 per maand per 2026
Definitief energielabel C
Projectnotaris van toepassing
Verkoop onder voorbehoud KYC controle
De VvE is aan het onderzoeken of het complex verduurzaamd kan worden, dit kan leiden tot een verhoging van de maandelijkse VVE bijdrage

Ondanks dat deze aanmelding met de nodige zorgvuldigheid is samengesteld, is alle verstrekte informatie nadrukkelijk onder voorbehoud, uitsluitend indicatief, bedoeld als voorbeeld en daardoor niet bindend voor het eindresultaat. Aan deze woninginformatie kunnen geen rechten of verplichtingen worden ontleend, onzerzijds wordt geen enkele aansprakelijkheid aanvaard voor enige onvolledigheid, onjuistheid of anderszins, dan wel de gevolgen daarvan.
Lees meer

Kenmerken

Overdracht

Prijs per m2
€ 2.926
Aangeboden sinds
17 maart 2026
Status
Verkocht onder voorbehoud
Aanvaarding
Direct

Bouw

Soort appartement
Galerijflat, appartement
Soort bouw
Bestaande bouw
Bouwjaar
1970
Soort dak
Plat dak
Staat van onderhouden binnen
Goed
Staat van onderhouden buiten
Goed

Oppervlakte en inhoud

Inhoud van de woning
291 m3
Oppervlakte externe bergruimte
7 m2
Oppervlakte gebouwgebonden buitenruimten
10 m2

Indeling

Aantal kamers
5
Aantal slaapkamers
4
Aantal woonlagen
1
Voorzieningen
Balkon, schuur/berging, ventilatie, kabel-tv, lift

Buitenruimte

Balkon
Ja
Schuur/berging
Ja

Maandlasten berekenen

De maandlasten voor je woning bestaan uit meer dan alleen de hypotheeklasten. Hieronder vind je een overzicht van de bijkomende kosten en lasten. Zo weet je precies wat je huis per maand gaat kosten. En met de handige vergelijkers kun je ook nog eens snel de beste deals sluiten!

  • Kaart
  • Streetview