Zwolsestraat 390 2587 VK 's-Gravenhage

110m2
Wonen
3
Kamers
0m2
Perceel
1993
Bouwjaar
Luxe en comfort op een bruisende locatie!

Ben je op zoek naar een comfortabel appartement dicht bij het strand én midden in het levendige Scheveningen? Zoek niet verder! Aan de Zwolsestraat 390 ligt dit uitstekend onderhouden appartement die alles biedt wat het hart begeert. Of het nu gaat om woongenot, gemak of een perfecte uitvalsbasis voor ontspanning aan de kust – hier kun je de balans vinden tussen rust en reuring.

Kortom een heerlijk appartement dat zeker een bezichtiging waard is!
Begane grond
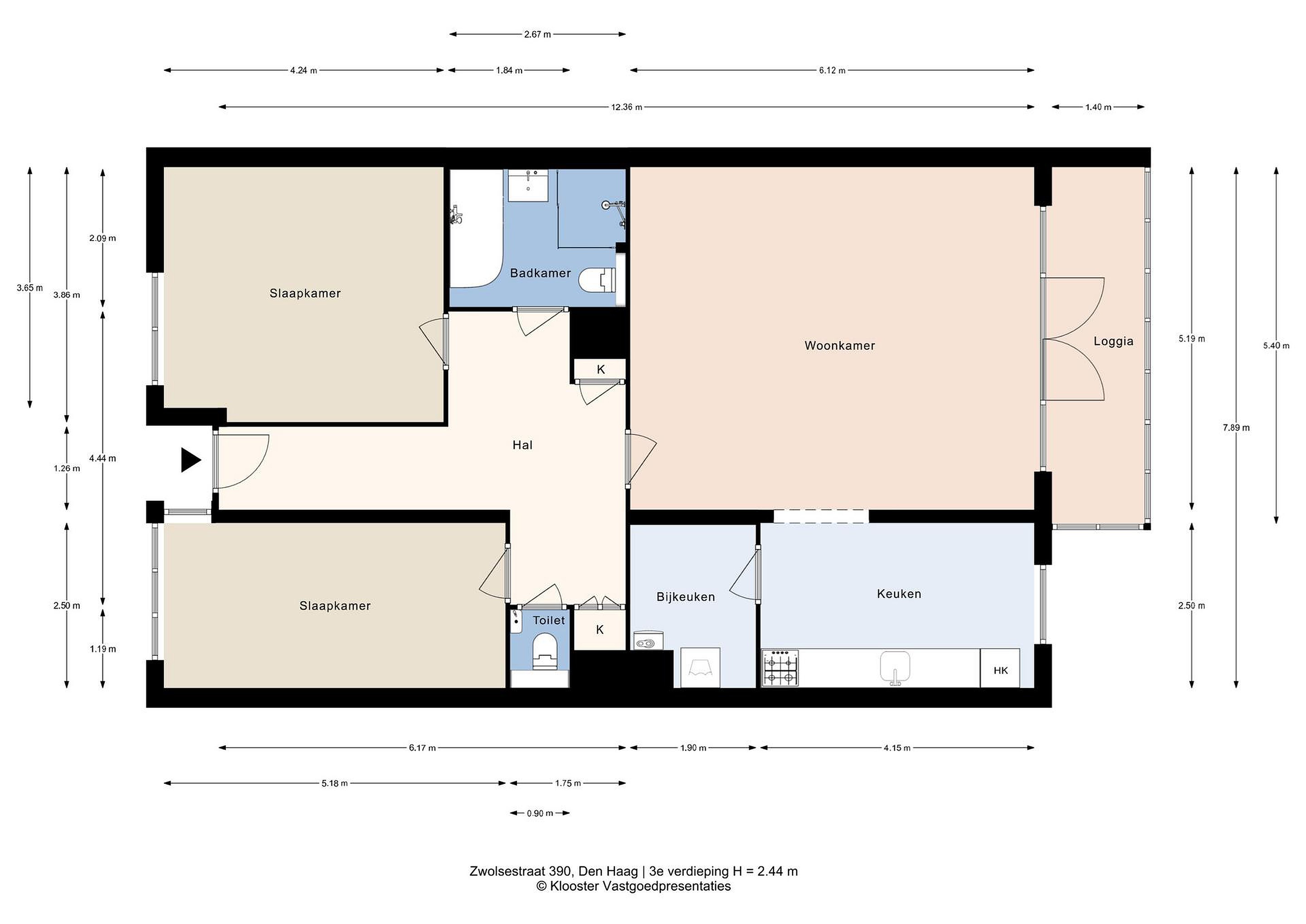
Entree woning, ruime hal v.v. toilet met fontein, meterkast en inbouwkast, vanuit de hal toegang tot de riante woonkamer. De woonkamer is licht en ruim opgezet en geeft toegang tot de loggia en keuken. De keuken is v.v. 4 pits gaskookplaat, oven, afzuigkap, vaatwasser en koel-/vriescombinatie. De loggia is zeer ruim en kan makkelijk betrokken worden bij de woonkamer. Hier vergroot u enorm de al zo ruime woonkamer. Aan de voorzijde treft u de eerste slaapkamer aan, welke ruim opgezet is. De badkamer is onlangs vernieuwd (2025) en v.v. ligbad, douche, wastafelmeubel, handdoekradiator en 2e toilet. De tweede slaapkamer is eveneens aan de voorzijde gelegen, heeft riante afmetingen en geeft vrij uitzicht de duinen in.

De woning beschikt over een eigen berging en parkeerplaats.

Kortom een heerlijk appartement op een fantastische locatie gelegen!

Details
- Type woning: appartement met parkeerplaats
- Bouwjaar 1993
- Woonoppervlak: ca. 111 m2
- De woning beschikt over energielabel C
- De canon en beheerkosten zijn eeuwigdurend afgekocht
- De V.v.E is actief, bijdrage € 298,- per maand (€ 228,- voor de woning, € 41,- garage, € 29,- berging), MJOP aanwezig, het dak is volledig vernieuwd en het schilderwerk buiten is uitgevoerd
- De woning is v.v. dubbel glas met houten kozijnen (op één kiepraam na)
- Verwarming en warm water middels cv-combi ketel (deze is verouderd)
- De badkamer en het toilet zijn vernieuwd in 2025
- 2022 vloeren vernieuwd en keuken gewrapt
- afzuigkap vernieuwd 2024
- Het appartement beschikt over een parkeerplaats (verplichte afname a € 30.000,- los van de koopsom) en aparte berging
- Oplevering in overleg (wens verkoper begin mei 2026)

Lees meer

Kenmerken

Overdracht

Prijs per m2
€ 4.264
Aangeboden sinds
26 januari 2026
Status
Beschikbaar
Aanvaarding
In overleg

Bouw

Soort appartement
Galerijflat, appartement
Soort bouw
Bestaande bouw
Bouwjaar
1993
Staat van onderhouden binnen
Goed
Staat van onderhouden buiten
Goed

Oppervlakte en inhoud

Inhoud van de woning
330 m3
Oppervlakte externe bergruimte
16 m2

Indeling

Aantal kamers
3
Aantal slaapkamers
2
Aantal woonlagen
1
Voorzieningen
Schuur/berging, lift

Buitenruimte

Balkon
Nee
Schuur/berging
Ja

Maandlasten berekenen

De maandlasten voor je woning bestaan uit meer dan alleen de hypotheeklasten. Hieronder vind je een overzicht van de bijkomende kosten en lasten. Zo weet je precies wat je huis per maand gaat kosten. En met de handige vergelijkers kun je ook nog eens snel de beste deals sluiten!

  • Kaart
  • Streetview