Verkocht OV

Oranjeboomstraat 56A 3071 BB Rotterdam

71m2
Wonen
3
Kamers
0m2
Perceel
1993
Bouwjaar
Rustig wonen en toch binnen een paar minuten in hartje Rotterdam?

Het kan met dit leuke 3-kamer APPARTEMENT met heerlijk balkon aan de Oranjeboomstraat! Praktisch naast de Nieuwe Maas met de iconische ‘Hef’ en iets verderop de Erasmusbrug, met vrijwel alle voorzieningen in de buurt.

Een licht en zonnig appartement, waar het na een lange (werk)dag heerlijk thuiskomen is. Wie gaat er van dit plekje genieten? 

Zie onderstaande hoofdkenmerken met nadere omschrijving en de uitgebreide fotoreportage. Zelf sfeer proeven in de woning? Bel met Kok Makelaars voor een bezichtiging!

Hoofdkenmerken:
- Ruime woonkamer met uitzicht
- Open keuken met basisinrichting
- Badkamer met douche
- 2 goed formaat slaapkamers
- Zonnig balkon op het zuidwesten
- Privé-berging in de onderbouw
- Woonoppervlakte ca. 71 m2

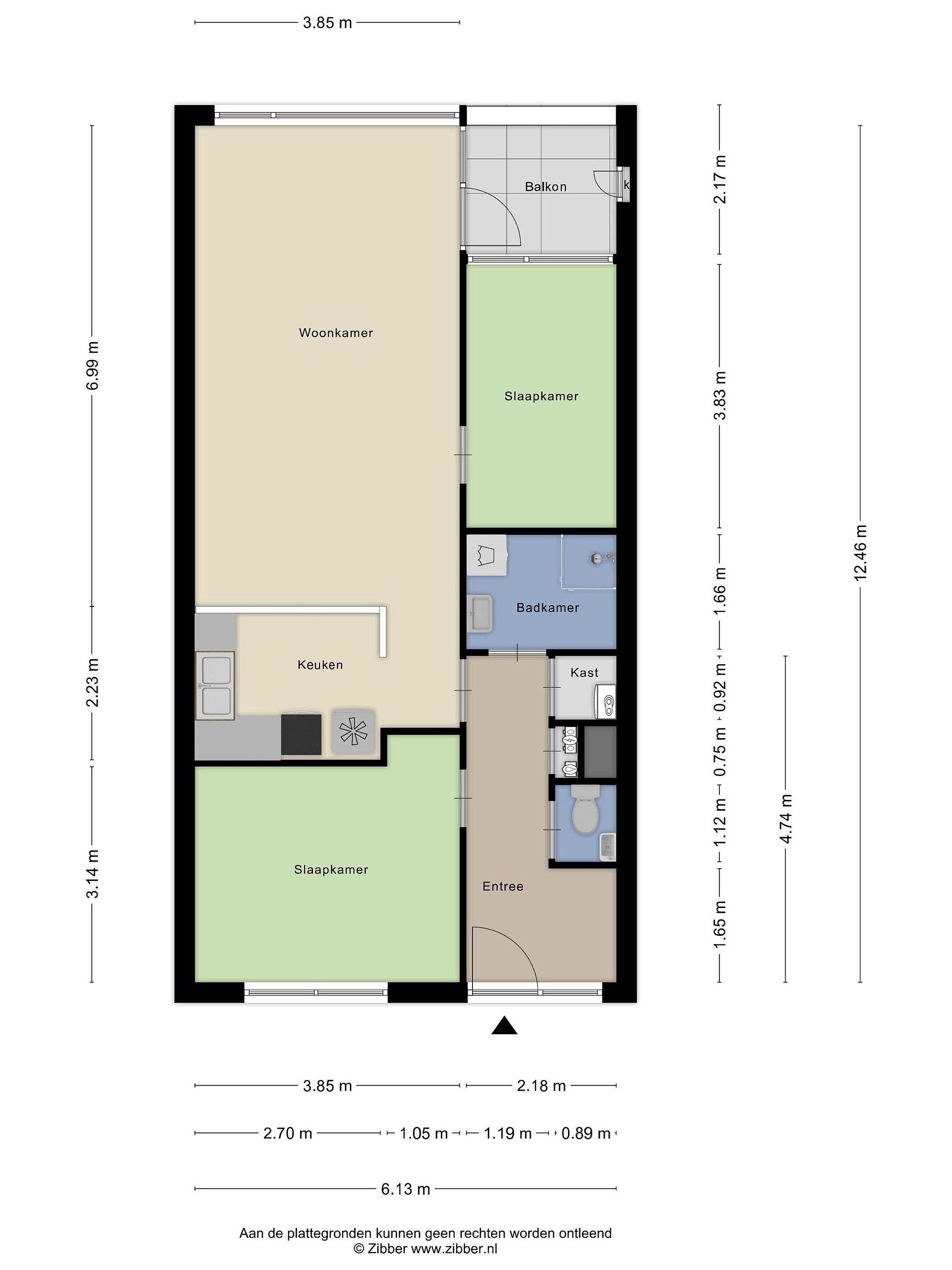
INDELING (voor de afmetingen, zie de plattegrondtekeningen)

Gelegen in de levendige wijk Feijenoord, waar het centrum van Rotterdam en toch het wonen in een gezellige buurt samenkomen! Op korte (loop)afstand zijn er veel voorzieningen: winkels, supermarkten, horecagelegenheden, openbaar vervoer, scholen, kinderdagopvang, gezondheidszorg, sportfaciliteiten, en nog veel meer.

Begane grond:
Gesloten entree met brievenbussen en bellentableau, met toegang tot het trappenhuis, liftinstallatie en bergingen.

Tweede verdieping:
Het appartement is grotendeels voorzien van laminaat vloerafwerking.

Entree/hal, met toegang tot de keuken/woonkamer, toilet, badkamer, slaapkamer 1, vaste kast met opstelling cv-ketel en de meterkast.

Woonkamer, een ruime woonkamer, met een leuk uitzicht over de Oranjeboomstraat. Vanuit de woonkamer is er toegang tot slaapkamer 2 en het balkon.

Keuken, een eenvoudige keuken met een keukenblok in L-vormige opstelling. De keuken is voorzien van een dubbele spoelbak, kookplaat, oven en koel-vriescombinatie.

Slaapkamer 1, een ruime slaapkamer, gelegen aan de achterzijde.
Slaapkamer 2, eveneens een slaapkamer van goed formaat, grenzend aan het balkon.

Badkamer, welke grotendeels is betegeld en voorzien van een douchecabine, wastafel met onderkastje en spiegel, badkamerradiator en een wasmachineaansluiting.

Toilet, gedeeltelijk betegeld, voorzien van een staand closet en een fonteintje.

Balkon, een heerlijk zonnig balkon op het zuidwesten, met ook hier een altijd levend uitzicht over de Oranjeboomstraat, met in de verte de Erasmusbrug!

Bijzonderheden:
- Cv-ketel Vaillant (2012)
- Houten kozijnen met dubbele beglazing
- Energielabel B
- Actieve VvE, bijdrage € 262,40 per maand
- Privé berging (ca. 5 m2) in de onderbouw
- Erfpachtgrond, eindigend op 3 februari 2092
- Canonverplichting afgekocht tot en met 6 november 2053
- Bouwjaar ca. 1993

Oplevering: in nader overleg met de verkoper, op korte termijn mogelijk.

Bij het samenstellen van deze verkoopinformatie en (plattegrond)tekeningen zijn we nauwkeurig te werk gegaan, aan onjuistheden en/of onvolkomenheden kunt u echter geen rechten ontlenen. Daarnaast aanvaardt de makelaar of zijn opdrachtgever geen aansprakelijkheid voor de in de verkoopinformatie en (plattegrond)tekeningen verstrekte informatie.
Lees meer

Kenmerken

Overdracht

Prijs per m2
€ 4.225
Aangeboden sinds
23 januari 2026
Status
Verkocht onder voorbehoud
Aanvaarding
In overleg

Bouw

Soort appartement
Galerijflat, appartement
Soort bouw
Bestaande bouw
Bouwjaar
1993
Soort dak
Plat dak
Staat van onderhouden binnen
Goed
Staat van onderhouden buiten
Goed

Oppervlakte en inhoud

Inhoud van de woning
235 m3
Oppervlakte externe bergruimte
5 m2
Oppervlakte gebouwgebonden buitenruimten
4 m2

Indeling

Aantal kamers
3
Aantal slaapkamers
2
Aantal woonlagen
1
Voorzieningen
Vve checklist, balkon, schuur/berging, lift

Buitenruimte

Balkon
Ja
Schuur/berging
Ja

Maandlasten berekenen

De maandlasten voor je woning bestaan uit meer dan alleen de hypotheeklasten. Hieronder vind je een overzicht van de bijkomende kosten en lasten. Zo weet je precies wat je huis per maand gaat kosten. En met de handige vergelijkers kun je ook nog eens snel de beste deals sluiten!

  • Kaart
  • Streetview