Nansenplaats 171 3069 CP Rotterdam

55m2
Wonen
2
Kamers
0m2
Perceel
1972
Bouwjaar
RUSTIG WONEN IN HET GROENE OMMOORD – GELIJKVLOERS – RUIM BALKON – EIGEN GROND - UITSTEKENDE BEREIKBAARHEID

GELIJKVLOERS EN DIRECT TE BETREKKEN COMFORT OP HOOG NIVEAU
Deze ruime, gelijkvloerse 2-kamerwoning van 55m2 met een royaal balkon van 8m2 op de 5-verdieping biedt u rust, comfort en gemak. Geniet van het uitzicht, leef in een verzorgd appartementencomplex en ervaar het gemak van een lift en een afgesloten entree.

GOED VERZORGD EN REPRESENTATIEF COMPLEX
De Galemaflat is een net en representatief wooncomplex met een afgesloten entree op de begane grond met videofooninstallatie zodat u vanuit de woning ziet wie er voor de deur staat. Bezoekers komen binnen via een verzorgde hal en nemen de lift naar boven. In de onderbouw beschikt u over een eigen (fietsen)berging. Uw fiets of extra spullen staan veilig opgeborgen.

PRAKTISCH EN RUIM WONEN
De woning is volledig gelijkvloers, wat het comfort vergroot. Dankzij de efficiënte indeling geniet u van ruimte, licht en een prettige woonervaring. Vanuit de woonkamer heeft u toegang tot het ruime balkon: een heerlijke plek met mooi uitzicht op de binnentuin om te ontspannen in de frisse buitenlucht.

IDEALE BUITENRUIMTE EN VOORZIENINGEN
Voor het complex ligt een ruim opgezet parkeerterrein, ideaal voor uzelf en uw bezoek. Aan de achterzijde bevindt zich de collectieve, groene binnentuin – een rustige plek voor een wandeling of een moment van rust. De wijk biedt volop ruimte, licht en groen.

GROEN, WATER EN RUIMTE – DE OMMOORDSE LEVENSSTIJL
Ommoord staat bekend om haar groene karakter en ontspannen sfeer. U wandelt zó het Ommoordseveld in, een groot wijkpark met veel groen. In de nabije omgeving ontdekt u de Rottemeren, de Zevenhuizerplas en het Kralingse Bos met de Kralingse Plas. Natuur ligt hier altijd binnen handbereik.

VOLLEDIG VOORZIEN EN UITSTEKEND BEREIKBAAR
Voor de dagelijkse boodschappen kunt u kiezen uit de buurtwinkelcentra Hesseplaats en Binnenhof. Voor een breder winkelaanbod bereikt u binnen enkele minuten het Alexandrium en het NS-station. Met vier metrostations (Hesseplaats, Binnenhof, Romeynshof, Graskruid) en diverse bushaltes in de buurt ligt de hele stad en de rest van Nederland aan uw voeten.

ONTDEK HET VERSCHIL
Ervaar hoe comfortabel, groen en bereikbaar wonen samengaan in deze aantrekkelijke woning in de Heremaflat. Bent u toe aan rust, ruimte en gemak in een levendige, goed bereikbare wijk? Neem dan contact op voor een bezichtiging – wij laten u deze fijne woning graag zien.

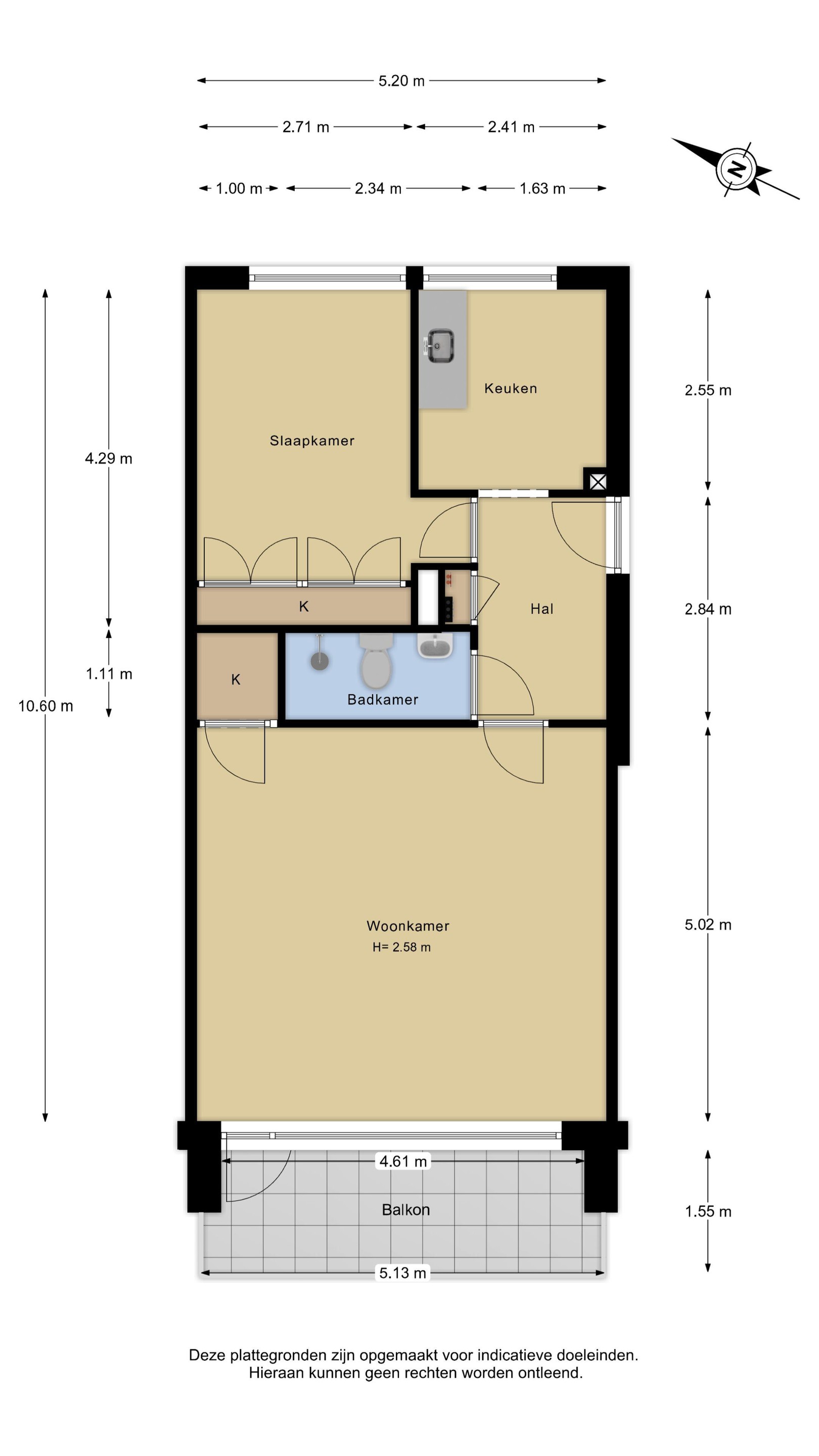
GLOBALE INDELING:
Ontdek met de plattegronden de indeling en ervaar de mogelijkheden. Laat je inspireren door de sfeervolle foto’s en wandel virtueel door de woning. Krijg een levensechte indruk. Klik, kijk en ontdek hoe deze plek jouw nieuwe thuis kan worden!

ALGEMEEN:
Oppervlakte woning ca. 55m2
Inhoud woning ca. 174m3
Oppervlakte buitenruimte ca. 8m2
Oppervlakte berging ca. 5,5m2
Oplevering in overleg, kan snel
Bouwjaar omstreeks 1972
Eigen grond
Verwarming en warm water: blokverwarming en boiler
Definitief energielabel C
Actieve VvE, maandelijkse bijdrage thans € 144,13 (woning) en € 15,17 (berging) per 2026
Voorschot stookkosten € 82,16 per maand per 2026
Projectnotaris van toepassing

Ondanks dat deze aanmelding met de nodige zorgvuldigheid is samengesteld, is alle verstrekte informatie nadrukkelijk onder voorbehoud, uitsluitend indicatief, bedoeld als voorbeeld en daardoor niet bindend voor het eindresultaat. Aan deze woninginformatie kunnen geen rechten of verplichtingen worden ontleend, onzerzijds wordt geen enkele aansprakelijkheid aanvaard voor enige onvolledigheid, onjuistheid of anderszins, dan wel de gevolgen daarvan.
Lees meer

Kenmerken

Overdracht

Prijs per m2
€ 4.455
Aangeboden sinds
27 februari 2026
Status
Beschikbaar
Aanvaarding
Direct

Bouw

Soort appartement
Galerijflat, appartement
Soort bouw
Bestaande bouw
Bouwjaar
1972
Soort dak
Plat dak
Staat van onderhouden binnen
Uitstekend
Staat van onderhouden buiten
Uitstekend

Oppervlakte en inhoud

Inhoud van de woning
174 m3
Oppervlakte externe bergruimte
6 m2
Oppervlakte gebouwgebonden buitenruimten
8 m2

Indeling

Aantal kamers
2
Aantal slaapkamers
1
Aantal woonlagen
1
Voorzieningen
Balkon, schuur/berging, kabel-tv, lift

Buitenruimte

Balkon
Ja
Schuur/berging
Ja

Maandlasten berekenen

De maandlasten voor je woning bestaan uit meer dan alleen de hypotheeklasten. Hieronder vind je een overzicht van de bijkomende kosten en lasten. Zo weet je precies wat je huis per maand gaat kosten. En met de handige vergelijkers kun je ook nog eens snel de beste deals sluiten!

  • Kaart
  • Streetview