Verkocht OV

Chopinlaan 2F1 1411 HN Naarden

68m2
Wonen
3
Kamers
0m2
Perceel
1968
Bouwjaar
Geen zin om de handen uit de mouwen te steken? Dit appartement op de Chopinlaan 2-F1 is ruim, licht en gemoderniseerd. De woning heeft 2 slaapkamers, een ruim en zonnig balkon (ZW), een nieuwe open keuken, glad gestucte wanden en plafonds en een fraaie vloer met hoge plinten. Ook heeft de woning een eigen berging in het souterrain en een hele fijne bijkomstigheid is dat deze woning gelegen is op de hoek van de bovenste woonlaag van het complex, zonder bovenburen maar met uitzicht over het groen.
Chopinlaan 2-F1 is gelegen in de rustige en groene wijk Ministerpark (Componistenkwartier) in Naarden. Het appartementencomplex “Beukenrode” heeft een parkachtige tuin met leuke zithoek. Deze is voor alle bewoners vrij toegankelijk en kan bijvoorbeeld gebruikt worden om verjaardagen te vieren.
Daarnaast biedt het complex een gezamenlijke inpandige fietsenberging, parkeermogelijkheden op eigen terrein, gebruik van extra logeerkamers in het gebouw tegen een kleine vergoeding van €25,- per dag en een gemeenschappelijke recreatiezaal en kleine fitnessruimte. De servicekosten bedragen €297,16 per maand. Het voorschot stookkosten is € 100,- per maand.
Begane grond
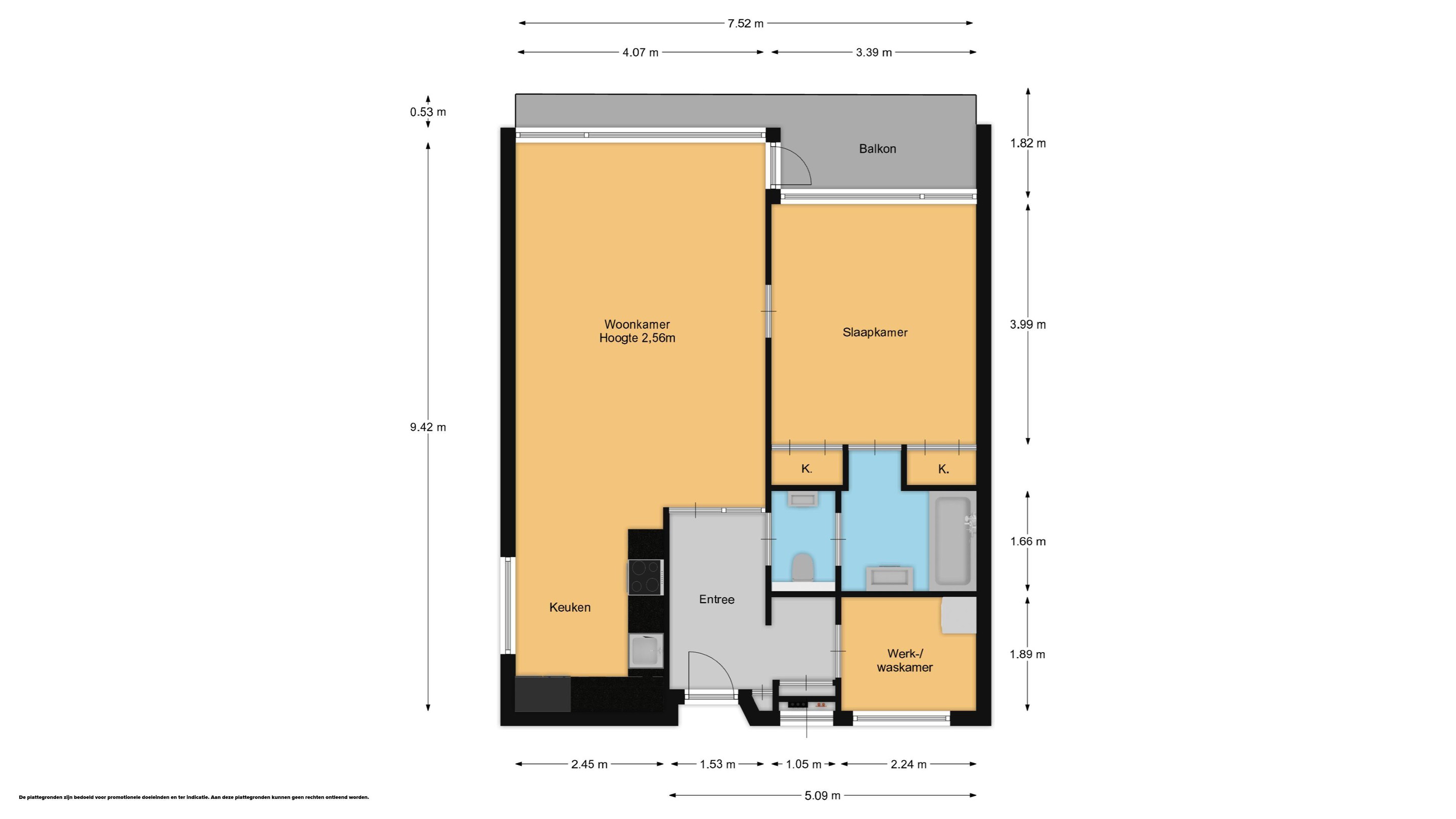
De entree is op de 6e verdieping (geen bovenburen) en aan het eind van de corridor, dus geen langslopende buren. Een ruime hal met garderobe biedt toegang tot de woonkamer, toilet en de werkkamer waar momenteel o.a. de wasmachine /droger netjes is weggewerkt. De zeer lichte woonkamer, met fraaie open keuken (2022), heeft een groot raam en daardoor een geweldig vrij uitzicht over de fraaie tuin en een deur naar het balkon. Op het balkon heeft u de beschikking over een elektrisch bedienbaar zonnescherm.
Op de vloer ligt een mooie laminaatvloer met hoge plinten welke drempelloos is doorgelegd naar de slaapkamer. De wanden en het plafond zijn in 2022 voorzien van nieuw, strak en glad stucwerk. De open keuken, in hoekopstelling, beschikt over een inductie kookplaat met afzuigkap, koel-vries combinatie, vaatwasser, oven, Quooker en voldoende kastruimte.. De grote slaapkamer, met uitzicht over het groen, is aan de achterzijde van het appartement gelegen en is ca.13,5 m2 groot en voorzien van twee praktische inbouwkasten. De badkamer, o.a. bereikbaar vanuit de slaapkamer, beschikt over een ligbad met douche, een wastafelmeubel met spiegel, handdoekradiator en is in neutrale kleurstelling betegeld. Het separate moderne toilet is zowel vanuit de hal en de badkamer te bereiken.

Bijzonderheden:

- Gemoderniseerd (2022) en instapklaar appartement met 2 slaapkamers, eigen berging, ruim balkon (ZW) en heerlijke open keuken;
- Woonoppervlakte van 68m2;
- Prachtig uitzicht, geen bovenburen en laatste appartement aan de corridor;
- Lift aanwezig, privé berging in de onderbouw, gemeenschappelijke tuin, gemeenschappelijke recreatieruimte, mogelijkheid tot huren van logé-ruimte, gezamenlijke fietsenberging; kleine fitnessruimte tegen lage abonnementskosten te gebruiken.
- Prima locatie met voorzieningen binnen handbereik;
- Ruime parkeergelegenheid op eigen terrein en gratis parkeren aan de openbare weg;
-.Energielabel D geldig tot 28-01-2032, gehele appartement voorzien van dubbel glas;
- Gezonde VVE, servicekosten € 297,16 per maand;
- Blokverwarming met elektronische registratie, voorschot stookkosten €100,- per maand.

Ligging:

Het Ministerpark is heerlijk. De omgeving kenmerkt zich door ruim opgezette straten, veel groen en een prettige woonomgeving. Op loop- en fietsafstand vindt u winkels, supermarkten en sportvoorzieningen zoals tennis, hockey, voetbal en rugby, terwijl natuurgebieden als de Bussummerheide en het Goois Natuurreservaat zich dichtbij bevinden. De bereikbaarheid is uitstekend: bushalte voor de deur, het station Naarden-Bussum in de buurt en met een snelle aansluiting op de A1 ben je in korte tijd in Amsterdam, Utrecht of Amersfoort. Daarnaast ligt de historische vestingstad Naarden met haar charmante straatjes, horeca en culturele voorzieningen op slechts enkele minuten afstand. Een ideale locatie voor wie comfortabel en centraal wil wonen in een rustige, groene omgeving.



Lees meer

Kenmerken

Overdracht

Prijs per m2
€ 4.706
Aangeboden sinds
16 februari 2026
Status
Verkocht onder voorbehoud
Aanvaarding
In overleg

Bouw

Soort appartement
Galerijflat, appartement
Soort bouw
Bestaande bouw
Bouwjaar
1968
Soort dak
Plat dak
Staat van onderhouden binnen
Goed
Staat van onderhouden buiten
Goed

Oppervlakte en inhoud

Inhoud van de woning
219 m3
Oppervlakte externe bergruimte
5 m2
Oppervlakte gebouwgebonden buitenruimten
7 m2

Indeling

Aantal kamers
3
Aantal slaapkamers
2
Aantal woonlagen
1
Voorzieningen
Vve checklist, balkon, schuur/berging, kabel-tv, buitenzonwering, lift

Buitenruimte

Balkon
Ja
Schuur/berging
Ja

Maandlasten berekenen

De maandlasten voor je woning bestaan uit meer dan alleen de hypotheeklasten. Hieronder vind je een overzicht van de bijkomende kosten en lasten. Zo weet je precies wat je huis per maand gaat kosten. En met de handige vergelijkers kun je ook nog eens snel de beste deals sluiten!

  • Kaart
  • Streetview