Jacques Urlusplantsoen 308 2324 LE Leiden

83m2
Wonen
4
Kamers
0m2
Perceel
1964
Bouwjaar
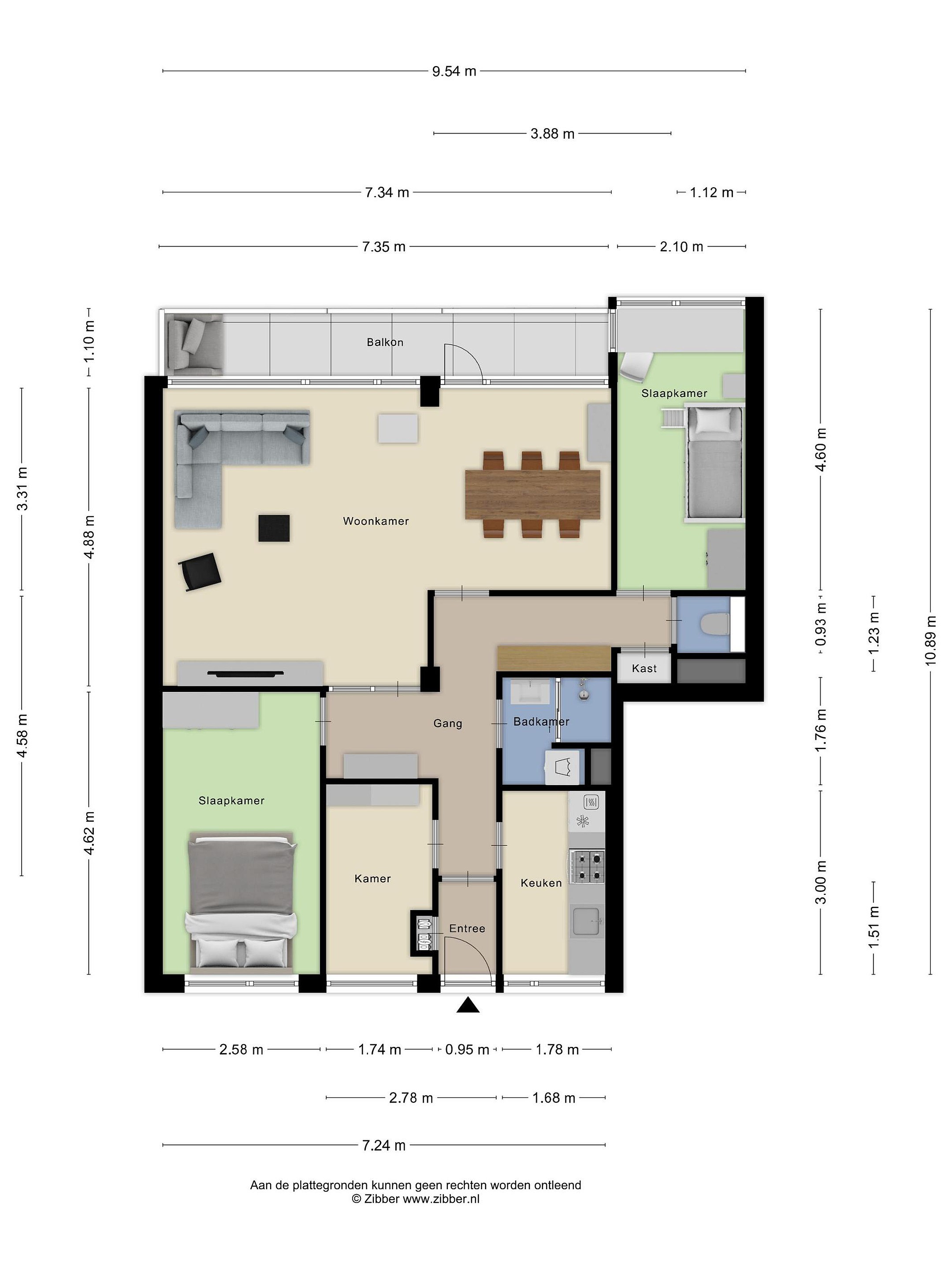
Op de vierde verdieping van een goed onderhouden complex vind je dit lichte, royale, moderne, smaakvol gerenoveerde (2018), instapklare, duurzame (energielabel A) en praktische 4-kamerappartement (voorheen 5-kamerappartement) van 83 m2. Gelegen naast de lift en het trappenhuis en daarom een maat groter dan de meeste andere appartementen, met vrij uitzicht over sportvelden en het centrum van Leiden, met berging (6 m2) in de onderbouw en een royaal overdekt balkon (8 m2) over de breedte van de woon-eetkamer met ligging op het oosten (8 m2). Het appartement beschikt o.a. over 3 (slaap)kamers, waarvan één momenteel in gebruik is als opslag-/provisieruimte, een riante L-vormige woon-eetkamer, moderne badkamer met inloopdouche, modern separaat toilet, moderne keuken voorzien van alle denkbare inbouwapparatuur, gestucte wanden en plafonds, zwart deurbeslag en fraaie doorgelegde visgraatlaminaatvloer. Het appartement lijkt zo te zijn weggelopen uit een woonmagazine!

Ideale ligging op slechts 5 minuten fietsafstand van het centrum, op loopafstand van het vernieuwde winkelcentrum De Luifelbaan (o.a. Albert Heijn XL, Lidl en Hema) en nabij scholen, sport- en recreatievoorzieningen, openbaar vervoer en diverse uitvalswegen (A4/A44).

Het appartementencomplex is recentelijk grondig gerenoveerd. Opgeknapte entrees en de buitenzijde is in fraaie kleurstellingen geschilderd. Tussen de complexen bevindt zich een langgerekt binnenterrein met voldoende parkeergelegenheid, groenvoorzieningen en speelveldjes. Het appartement is zeer geschikt voor starters, senioren maar uiteraard ook voor gezinnen met kinderen.

Begane grond
Begane grond:
Centrale afgesloten en beveiligde entree (ingang B) met bellentableau, intercom, brievenbussen, trappenhuis en (vernieuwde) lift. Afgesloten berging (6 m2) in de onderbouw gelegen direct rechts naast de entree.

4e verdieping:
Entree dichtbij lift en trappenhuis, tochtportaal met vernieuwde meterkast en garderobe, hal met toegang tot alle vertrekken. Aan de voorzijde de moderne en neutrale keuken voorzien van diverse inbouwapparatuur o.a. vaatwasser, magnetron, koelkast, oven, 4-pits gaskookplaat en afzuigkap met veel werk- en bergruimte en separate kamer thans in gebruik als opslag-/provisieruimte. Via de ruime hal toegang tot de (ouder)slaapkamer aan de voorzijde met voldoende ruimte voor een kastenwand. Tot aan het plafond wit betegelde badkamer met inloopdouche met glazen schuifwand, wastafel(meubel) met spiegel(verlichting) en opstelplaats voor wasapparatuur. Aan de achterzijde de tweede slaapkamer met handig ingebouwd bureau. Separaat en fraai betegeld, ruim vrij hangend toilet. Lichte (dankzij de vele hoge raampartijen), riante en brede L-vormige woon-eetkamer met 2 toegangsdeuren (dit waren voorheen 2 kamers en valt eenvoudig weer terug te brengen) met ruime inrichtingsmogelijkheden voor het plaatsen van een hoekbank en grote eettafel. Vanuit de woon-eetkamer toegang naar een heerlijk overdekt en ruim balkon (8 m2) over de volle breedte met vrij uitzicht over het centrum van Leiden.

Details
- Bouwjaar 1964
- Gebruiksoppervlakte wonen 83 m2
- Overige inpandige ruimte 0 m2
- Externe bergruimte 6 m2
- Gebouw gebonden buitenruimte 8 m2
- Inhoud woning 274 m3
- Energielabel A; volledig HR++ glas, vloer- en muurisolatie;
- Verwarming via blokverwarming;
- Smaakvol gerenoveerd (instap klaar) in 2018
- Groene woonomgeving met kindvriendelijk binnenterrein;
- Op korte loop-fietsafstand van de historische binnenstad van Leiden;
- Royaal overdekt balkon (8 m2) op het oosten met uitzicht over Leiden;
- Vlakbij winkels, scholen, openbaar vervoer en uitvalswegen (A4/A44);
- Berging (6 m2) in de onderbouw naast de entree;
- Voldoende parkeerplaatsen voor de complexen;
- Parkeervergunningen; 1ste 61,- per jaar, 2e 215,- per jaar
- Actieve en gezonde VvE;
- Servicekosten € 334,- per maand waarvan € 70,- voorschot stookkosten;
- Vernieuwd winkelcentrum De Luifelbaan met o.a. Albert Heijn XL, Lidl en Hema om de hoek
- Aanwezigheid van een huismeester;
- Gevelbekleding is in 2025 vernieuwd en wordt aan de voorzijde 1 x per jaar schoongemaakt in opdracht VvE;
- Extra groepen geplaatst in de meterkast (2018) t.b.v. krachtstroom in keuken;
- Mechanische ventilatie (onderhouden in 2025)
- Tado slimme radiatorknoppen aanwezig op alle radiatoren (2021)
- Vele roerende zaken blijven achter o.a. raamdecoratie, Tv-meubel, badkamermeubel, ingebouwd bureau slaapkamer, tuinbanken kopse kant balkon en stellingkasten berging of kunnen worden overgenomen (zie daarvoor de lijst van zaken)
- Beveiligde entree;
- Vernieuwde lift;
- Oplevering in overleg

Koopakte
- voor woningen ouder dan 30 jaar is de ouderdoms- en materiaalclausule van toepassing
- voor woningen gebouwd voor 1993 is de asbestclausule van toepassing

Lees meer

Kenmerken

Overdracht

Prijs per m2
€ 4.639
Aangeboden sinds
24 februari 2026
Status
Beschikbaar
Aanvaarding
In overleg

Bouw

Soort appartement
Galerijflat, appartement
Soort bouw
Bestaande bouw
Bouwjaar
1964
Soort dak
Plat dak
Staat van onderhouden binnen
Uitstekend
Staat van onderhouden buiten
Uitstekend

Oppervlakte en inhoud

Inhoud van de woning
274 m3
Oppervlakte externe bergruimte
6 m2
Oppervlakte gebouwgebonden buitenruimten
8 m2

Indeling

Aantal kamers
4
Aantal slaapkamers
3
Aantal woonlagen
1
Voorzieningen
Vve checklist, balkon, schuur/berging, ventilatie, kabel-tv, lift

Buitenruimte

Balkon
Ja
Schuur/berging
Ja

Maandlasten berekenen

De maandlasten voor je woning bestaan uit meer dan alleen de hypotheeklasten. Hieronder vind je een overzicht van de bijkomende kosten en lasten. Zo weet je precies wat je huis per maand gaat kosten. En met de handige vergelijkers kun je ook nog eens snel de beste deals sluiten!

  • Kaart
  • Streetview