Verkocht

Valkestein 417 6714 BD Ede

68m2
Wonen
3
Kamers
0m2
Perceel
1970
Bouwjaar
Prettig wonen in een lichte 3-kamer appartement met balkon op het zonnige zuidwesten!

Ben je starter of zoek je gewoon een fijn appartement? Dan is dit appartement op de 4e verdieping écht iets voor jou! Met een fijn balkon op het zuidwesten, een praktische eigen berging en een (gedeeltelijk) uitzicht over groen en water, woon je hier op een plek waar je iedere dag blij van wordt.

Het complex ligt gunstig naast het Proosdijpark met vijver, speeltuin en kinderboerderij. Ook de winkelcentra Bellestein en Rozenplein, scholen, openbaar vervoer en de uitvalswegen naar de A12 en A30 zijn vlakbij. Alles wat je nodig hebt, ligt dus letterlijk om de hoek.

Het gebouw:
De afgesloten entree met video-intercom geeft toegang tot de hal met brievenbussen, trappenhuis en liften. Voor de fiets is er een gezamenlijke berging in de onderbouw.

Indeling:
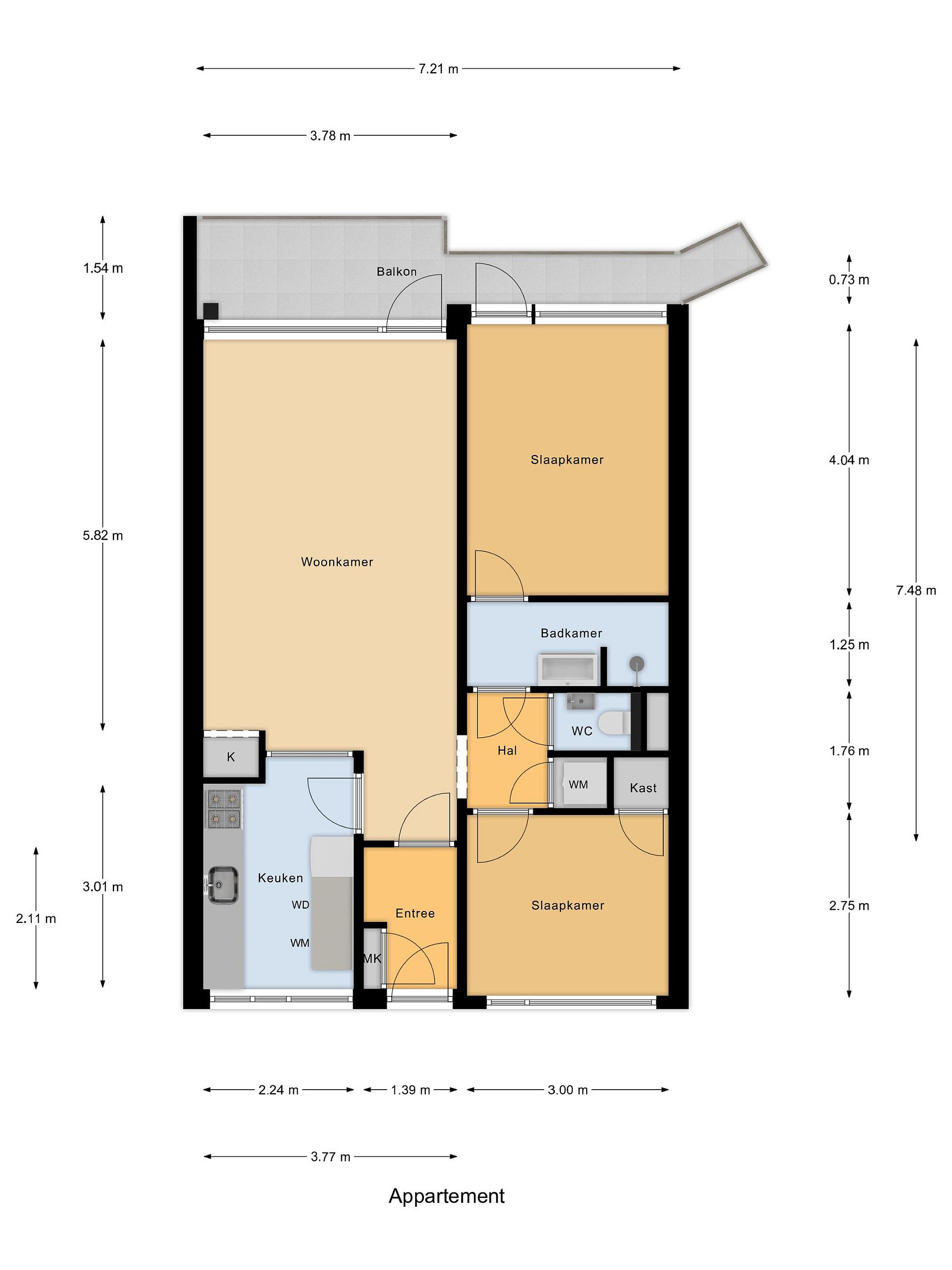
Bij binnenkomst stap je in de hal met meterkast. Vanuit hier loop je direct de lichte woonkamer in (ca. 24 m2), voorzien van een laminaatvloer, vaste kast en toegang tot de keuken, het balkon en de tussenhal.
De keuken is praktisch ingedeeld en beschikt over een keukenblok met spoelbak, gaskookplaat, afzuigkap en vaste kast. Ook vind je hier de boiler en aansluitingen voor wasmachine en vaatwasser.

Via een tussenportaal heb je toegang tot een vaste kast (met aansluiting voor de droger), een modern toilet met fonteintje, de eerste slaapkamer gelegen aan de gallerijzijde (met vaste kast) én de badkamer.

De frisse badkamer is uitgerust met een wastafelmeubel en een fijne inloopdouche. Vanuit de badkamer loop je door naar de ruime ouderslaapkamer (ca. 12 m2), die beschikt over een vaste kast en een deur naar het balkon.

Het balkon is gesitueerd op het zuidwesten en is de ideale plek om ’s middags en ’s avonds van de zon te genieten. Je kijkt deels uit op het parkeerterrein en deels op het mooie Proosdijpark met vijver.

Berging:
De ruime berging (ca. 6 m2) bevindt zich op dezelfde verdieping als het appartement én is ook bereikbaar vanaf je eigen balkon. Zo kun je handig en snel bij je spullen.

Bijzonderheden:
- Woonoppervlakte: ca. 68 m2
- Bouwjaar ca. 1970
- Inhoud: ca. 218 m3
- Servicekosten: ca. €178,- p/m (excl. voorschot gas €106,- p/m)
- Volledig dubbel glas (m.u.v. bovenlichten)
- Boiler (Daalderop, 80 liter) voor warm water
- Verwarming via blokverwarming
- Eigen stroomvoorziening in de berging
- Complex met 2 liften en video-intercom
- Oplevering: eerste week januari 2026

Kortom: een heerlijk, licht en praktisch ingedeeld appartement op een centrale locatie, waar je zowel de rust van het groen als de gezelligheid van voorzieningen dichtbij hebt. Ideaal voor starters of koppels die comfortabel en zorgeloos willen wonen!
Lees meer

Verkoopgeschiedenis

Aangeboden sinds
1 oktober 2025
Verkoopdatum
26 november 2025
Looptijd
2 maanden

Kenmerken

Overdracht

Prijs per m2
€ 4.191
Aangeboden sinds
1 oktober 2025
Status
Verkocht
Aanvaarding
Per datum

Bouw

Soort appartement
Galerijflat, appartement
Soort bouw
Bestaande bouw
Bouwjaar
1970
Soort dak
Plat dak
Staat van onderhouden binnen
Goed
Staat van onderhouden buiten
Goed

Oppervlakte en inhoud

Inhoud van de woning
218 m3
Oppervlakte externe bergruimte
6 m2
Oppervlakte gebouwgebonden buitenruimten
9 m2

Indeling

Aantal kamers
3
Aantal slaapkamers
2
Aantal woonlagen
1
Voorzieningen
Vve checklist, schuur/berging, lift

Buitenruimte

Balkon
Nee
Schuur/berging
Ja

Maandlasten berekenen

De maandlasten voor je woning bestaan uit meer dan alleen de hypotheeklasten. Hieronder vind je een overzicht van de bijkomende kosten en lasten. Zo weet je precies wat je huis per maand gaat kosten. En met de handige vergelijkers kun je ook nog eens snel de beste deals sluiten!

  • Kaart
  • Streetview