Verkocht OV

Marsdiepstraat 147 1784 AC Den Helder

91m2
Wonen
3
Kamers
0m2
Perceel
1974
Bouwjaar
NIEUW TE KOOP!!!
Marsdiepstraat 147 te Den Helder

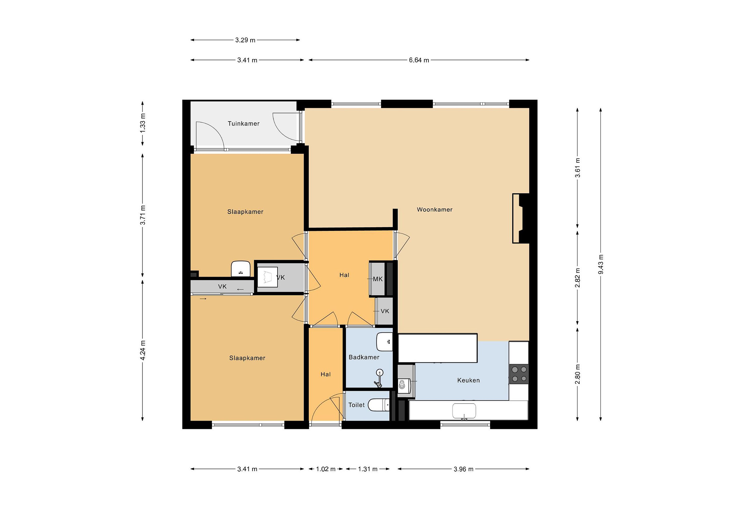
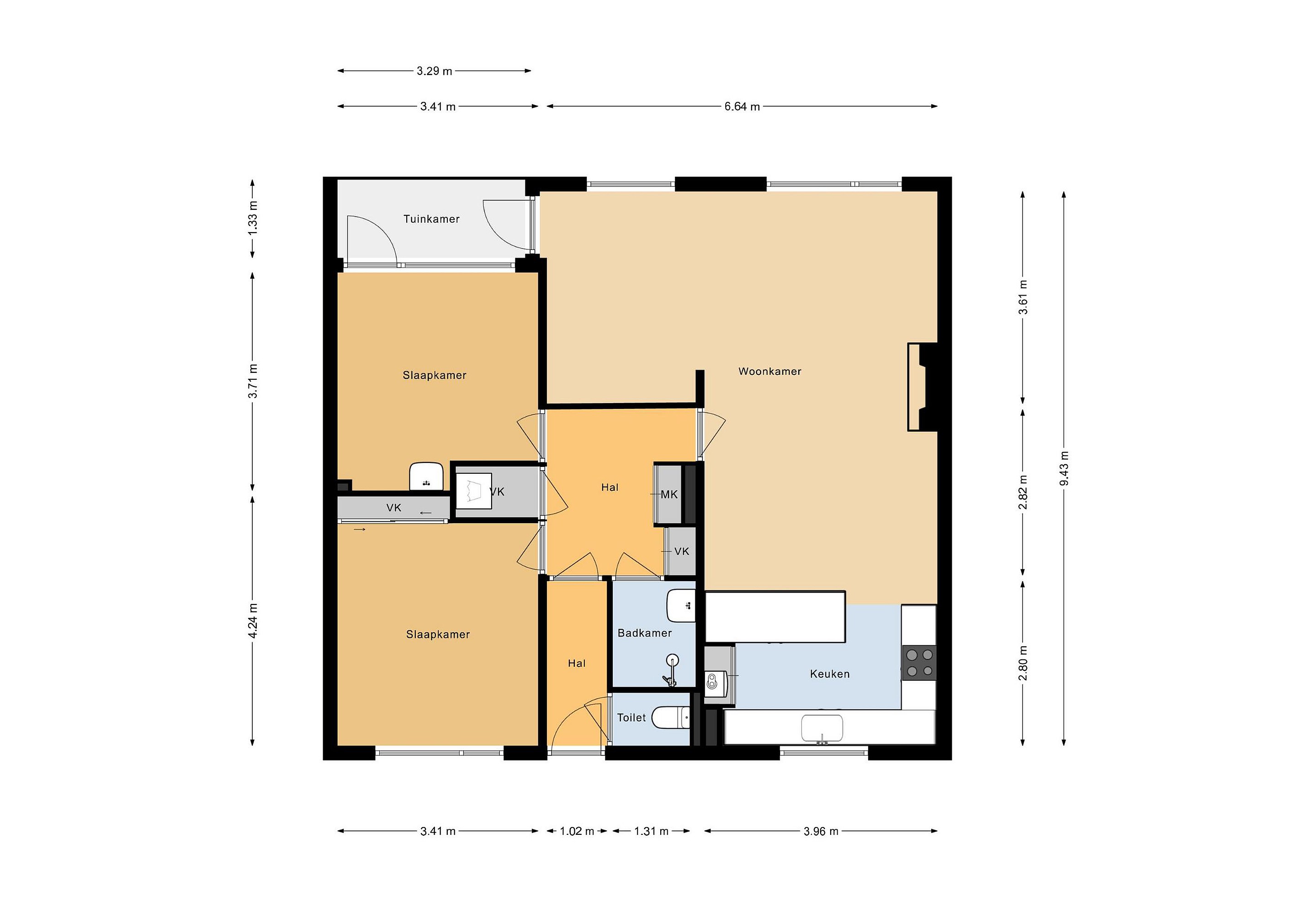
3-kamer appartement met lift en garage.

Gelegen nabij het vernieuwde winkelhart van Nieuw Den Helder, op fietsafstand van het centrum en ook bos, duinen en strand mogen wij u dit duurzame (energielabel A) en verrassend ruime 3-kamer appartement op de eerste verdieping (tweede woonlaag) aanbieden. Bij dit appartement behoort tevens een eigen garagebox. In het, overigens keurige portiek vind u naast de trapopgang ook nog een lift. Een fijn appartement op een prettige en centraal gelegen locatie!

Het appartement biedt ruim 90m2 aan bruikbaar woonoppervlak en is oorspronkelijk opgeleverd met 3 slaapkamers. Een van de slaapkamers is door de laatste eigenaar bij de woonkamer betrokken waardoor hier een riante L-vormige living is ontstaan met fraaie open keuken, geplaatst in een U opstelling met ontbijtbar en voorzien van al het gewenste apparatuur. Blijven er 2 ruime slaapkamers over, één aan de galerijkant gelegen en een tweede aan het inpandige balkon die vanaf de woonkamer is te bereiken. De hal biedt toegang tot alle vertrekken waaronder ook de geheel betegelde douche en separaat het toilet. Tevens zijn er diverse inbouwkasten waaronder een witgoedkast.

Recent zijn een groot deel van de kozijnen vervangen door kunststof en is het glaswerk vervangen door HR+ glas. Aan de buitenzijde van het appartement (straatkant) zijn er elektrische zonnescreens aan de gevel aangebracht. De garage, behorende bij het appartement, is gelegen aan de achterzijde, via de openbare weg toegankelijk en biedt een elektrische deur.

--------
De richtprijs van dit appartement, inclusief garage bedraagt € 255.000 kosten koper. Een bezichtiging vraag je makkelijk aan via Funda of onze website. Bij een online bezichtigingsaanvraag krijg je direct een link toegestuurd per mail en/of sms waarmee je zelf in onze agenda een afspraak in kunt plannen. Zijn alle plekken gevuld zet je zelf dan zeker op de wachtlijst. Wij nemen dan snel contact met je op. Uiteraard kan je ons ook altijd bellen om een bezichtiging in te plannen!
--------

LAAN MAKELAARS
voor de Kop van Noord-Holland

koop- en verkoopbegeleiding
van bestaande woningen
Lees meer

Kenmerken

Overdracht

Prijs per m2
€ 2.802
Aangeboden sinds
10 maart 2026
Status
Verkocht onder voorbehoud
Aanvaarding
In overleg

Bouw

Soort appartement
Galerijflat, appartement
Soort bouw
Bestaande bouw
Bouwjaar
1974
Staat van onderhouden binnen
Goed
Staat van onderhouden buiten
Goed

Oppervlakte en inhoud

Inhoud van de woning
300 m3
Oppervlakte externe bergruimte
19 m2

Indeling

Aantal kamers
3
Aantal slaapkamers
2
Aantal woonlagen
1
Voorzieningen
Lift

Buitenruimte

Balkon
Nee
Schuur/berging
Nee

Maandlasten berekenen

De maandlasten voor je woning bestaan uit meer dan alleen de hypotheeklasten. Hieronder vind je een overzicht van de bijkomende kosten en lasten. Zo weet je precies wat je huis per maand gaat kosten. En met de handige vergelijkers kun je ook nog eens snel de beste deals sluiten!

  • Kaart
  • Streetview