Verkocht

Passage 11 1941 ER Beverwijk

55m2
Wonen
2
Kamers
0m2
Perceel
1980
Bouwjaar
Altijd al willen wonen in hartje centrum Beverwijk? Grijp nu je kans met dit ideale startersappartement dat direct te betrekken is!
Dit tweekamer appartement is gelegen op de eerste verdieping van dit centraal gelegen appartementencomplex.
Het balkon is gelegen op het zuidoosten, daarnaast is er aan de galerij kant van het appartement ook ruimte om buiten te zitten. Het complex beschikt over een liftinstallatie.

Wonen in De Passage is wonen in het hart van Beverwijk.
Tussen het NS-station en de bruisende Breestraat heb je letterlijk alles binnen handbereik. Shoppen, boodschappen doen of een terrasje pakken? Het kan allemaal om de hoek. Met het trein- en busstation op slechts twee minuten lopen ben je bovendien zo in Haarlem, Alkmaar of Amsterdam. Kom je liever met de auto? Ook dat is geen probleem: De Passage is uitstekend bereikbaar en parkeergelegenheid is altijd dichtbij. Centraler én comfortabeler wonen wordt het bijna niet!

Bouwjaar: 1980
Woonoppervlakte: ca. 55 m2
Overige inpandige ruimte: ca. 3 m2
Gebouwgebonden buitenruimte (balkon): ca. 4 m2
Externe bergruimte ca. 5 m2
Inhoud: ca. 190 m3
Energielabel: B
Begane grond
Begane grond:
Centrale entree met brievenbussen en bellentableau. De externe berging is gelegen in de kelder van het complex.

Eerste verdieping
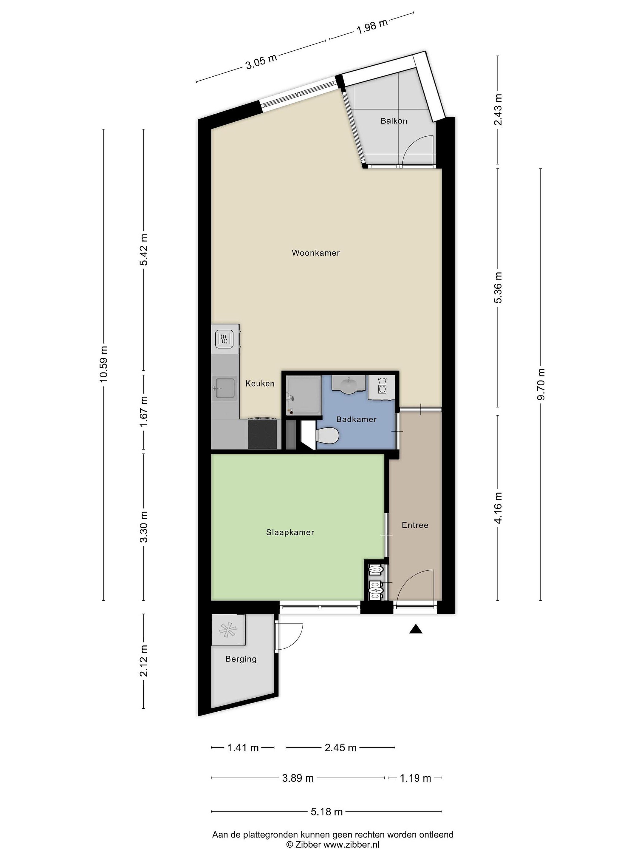
Indeling appartement:
Entree, hal met toegang tot alle vertrekken, meterkast, woonkamer met open keuken voorzien van diverse inbouwapparatuur: te weten een koel-vriescombinatie, vaatwasser, afzuigkap en 5-pits gaskookplaat. De woonkamer heeft tevens toegang tot het zonnige balkon, badkamer voorzien van douchecabine, de witgoedaansluiting, wastafelmeubel en zwevend toilet, ruim bemeten slaapkamer.

Details
- Energielabel C;
- De badkamer is gerenoveerd in 2023;
- Complex is voorzien van een liftinstallatie;
- Veel parkeergelegenheid in de nabije omgeving, parkeren kan met parkeervergunning (eerste vergunning thans slechts € 27,86 per jaar);
- De servicekosten bedragen € 277,02 per maand inclusief voorschot stookkosten voor verwarming en (warm) water i.v.m. blokverwarming. Dit is tevens inclusief opstal- en glasverzekering, reservering groot onderhoud, schoonmaak algemene ruimtes, verlichting algemene ruimtes);
- Gelegen in het centrum van Beverwijk met het NS- en busstation op loopafstand;
- Breestraat met diverse (winkel)faciliteiten aan de achterzijde gelegen.

Lees meer

Verkoopgeschiedenis

Aangeboden sinds
25 september 2025
Verkoopdatum
7 november 2025
Looptijd
één maand

Kenmerken

Overdracht

Prijs per m2
€ 4.727
Aangeboden sinds
25 september 2025
Status
Verkocht
Aanvaarding
In overleg

Bouw

Soort appartement
Galerijflat, appartement
Soort bouw
Bestaande bouw
Bouwjaar
1980
Soort dak
Plat dak
Staat van onderhouden binnen
Goed
Staat van onderhouden buiten
Goed

Oppervlakte en inhoud

Inhoud van de woning
190 m3
Oppervlakte externe bergruimte
5 m2
Oppervlakte gebouwgebonden buitenruimten
3 m2
Oppervlakte overige inpandige ruimten
2 m2

Indeling

Aantal kamers
2
Aantal slaapkamers
1
Aantal woonlagen
1
Voorzieningen
Balkon, schuur/berging, lift

Buitenruimte

Balkon
Ja
Schuur/berging
Ja

Maandlasten berekenen

De maandlasten voor je woning bestaan uit meer dan alleen de hypotheeklasten. Hieronder vind je een overzicht van de bijkomende kosten en lasten. Zo weet je precies wat je huis per maand gaat kosten. En met de handige vergelijkers kun je ook nog eens snel de beste deals sluiten!

  • Kaart
  • Streetview