Verkocht OV

Ravenweg 217 7331 LD Apeldoorn

75m2
Wonen
3
Kamers
0m2
Perceel
2010
Bouwjaar
Ravenweg 217 – Apeldoorn

Modern en licht 3-kamerappartement met balkon op het zuiden, kookeiland en eigen parkeerplaats.

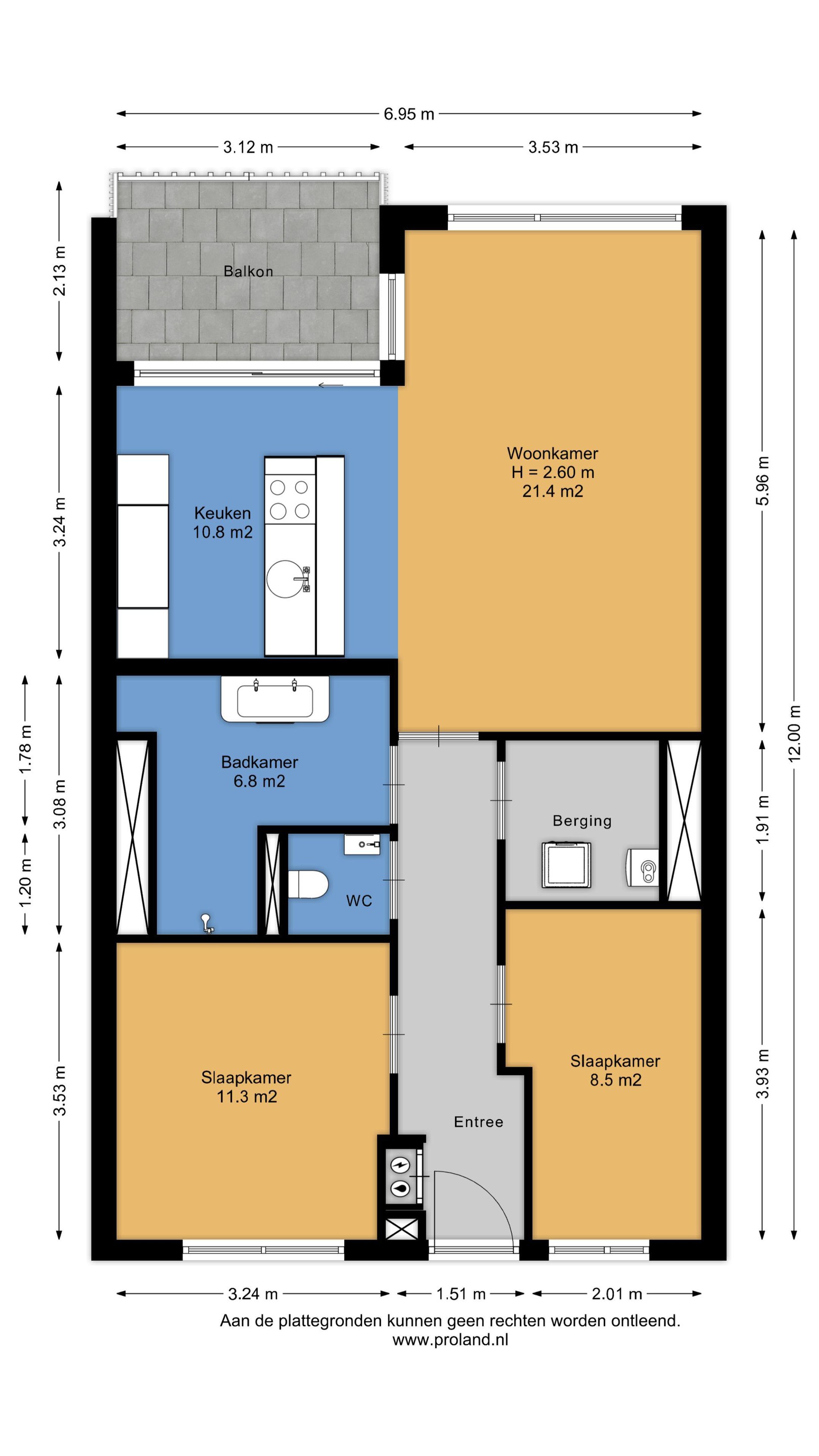
Op een rustige en groene locatie, direct bij het Zuiderpark, ligt dit moderne en uitstekend onderhouden appartement op de eerste woonlaag van een verzorgd complex. Het appartement beschikt over een lichte woonkamer, een keuken met kookeiland en diverse inbouwapparatuur, twee slaapkamers, een royaal balkon op het zuiden en een eigen parkeerplaats. Een comfortabele woonplek met alle voorzieningen binnen handbereik.

Bij binnenkomst treft u op de begane grond een ruim en verzorgd gezamenlijk entree, voorzien van zowel een personenlift als een handige fietsenlift. Vanuit hier bereikt u eenvoudig het appartement.

Binnen in de woning biedt de hal toegang tot de twee slaapkamers aan de rustige achterzijde, het separate toilet, de ruime badkamer, de inpandige berging en de woonkamer met open keuken.

De woonkamer is heerlijk licht dankzij de grote raampartijen en biedt voldoende ruimte voor een zit- en eethoek. De open keuken vormt het hart van de ruimte en is ingericht met een modern kookeiland en diverse inbouwapparatuur, waaronder een afzuigkap, 5 pits gaskookplaat, waarvan één speciaal voor
wokken en een grilplaat, vaatwasser, koel-vriescombinatie en een combi-oven. Vanuit de keuken loopt u direct het zonnige balkon op, gelegen op het zuiden – een fijne plek om te ontspannen en van de zon te genieten.

De badkamer is opvallend ruim en volledig ingericht met een inloopdouche en een dubbele wastafel. In de inpandige berging vindt u bovendien extra opbergruimte, de cv-ketel, het WTW-systeem en de aansluiting voor de wasmachine.

Aan de achterzijde van het appartement bevinden zich twee rustige slaapkamers: een ruime masterbedroom en een tweede kamer die ideaal is als werk-, logeer- of hobbykamer.

in de onderbouw van het complex bevind zich een eigen parkeerplaats en een separate berging voorzien van stroom. Daarnaast is er een gezamenlijke fietsenstalling met fietsenlift aanwezig.

De ligging is uitstekend: direct bij het Zuiderpark en op korte afstand van winkelcentra Adelaarsplein en Schubertplein. Het centrum van Apeldoorn bereikt u binnen circa 10 minuten fietsen, en de uitvalswegen A1 en A50 zijn snel toegankelijk.

Bijzonderheden:
- Kunststof kozijnen met isolerende beglazing

-Modern appartement op de eerste woonlaag

-Lichte woonkamer met open keuken en kookeiland

-Balkon op het zuiden, bereikbaar via de keuken

-Twee slaapkamers aan de rustige achterzijde

-Ruime badkamer met inloopdouche en dubbele wastafel

-Inpandige berging + eigen parkeerplaats

-Lift en fietsenlift aanwezig

-Nabij park, winkels en centrum

-Energielabel A


Vraagprijs € 375.000,- k.k.
Aanvaarding in overleg

Interesse?
Bel 055 – 760 1777 of mail

Wij plannen graag een bezichtiging voor u in!
Lees meer

Kenmerken

Overdracht

Prijs per m2
€ 4.973
Aangeboden sinds
29 november 2025
Status
Verkocht onder voorbehoud
Aanvaarding
In overleg

Bouw

Soort appartement
Galerijflat, appartement
Soort bouw
Bestaande bouw
Bouwjaar
2010
Soort dak
Plat dak
Staat van onderhouden binnen
Goed
Staat van onderhouden buiten
Goed

Oppervlakte en inhoud

Inhoud van de woning
248 m3
Oppervlakte externe bergruimte
7 m2
Oppervlakte gebouwgebonden buitenruimten
6 m2

Indeling

Aantal kamers
3
Aantal slaapkamers
2
Aantal woonlagen
1
Voorzieningen
Vve checklist, balkon, schuur/berging, ventilatie, kabel-tv, glasvezel, lift

Buitenruimte

Balkon
Ja
Schuur/berging
Ja

Maandlasten berekenen

De maandlasten voor je woning bestaan uit meer dan alleen de hypotheeklasten. Hieronder vind je een overzicht van de bijkomende kosten en lasten. Zo weet je precies wat je huis per maand gaat kosten. En met de handige vergelijkers kun je ook nog eens snel de beste deals sluiten!

  • Kaart
  • Streetview