Hofgeest 103 1102 EE Amsterdam

63m2
Wonen
3
Kamers
0m2
Perceel
1969
Bouwjaar
Indien u een bezichtiging wenst, gelieve deze schriftelijk aan te vragen via FUNDA -> plan een bezichtiging

2-kamer appartement met balkon gelegen in een goed onderhouden complex in Amsterdam-Zuidoost. De woning bevindt zich op een gunstige locatie, nabij het levendige winkelcentrum Amsterdamse Poort, diverse scholen en sportvoorzieningen. Bovendien zijn de Johan Cruijff ArenA, AFAS Live en Pathé Arena op korte afstand, wat zorgt voor een breed aanbod aan entertainment en recreatie.

De bereikbaarheid is uitstekend: metro- en treinstation Bijlmer Arena liggen op enkele minuten loopafstand, waardoor je in no-time in het centrum van Amsterdam bent. Daarnaast is de woning goed bereikbaar met de auto via de A9, A2 en A10. Parkeren kan voor de deur met een parkeervergunning. Het appartement zelf is goed onderhouden en biedt een lichte woonkamer met toegang tot een ruim balkon. De moderne keuken met kookeiland is voorzien van diverse inbouwapparatuur. Verder beschikt de woning over een ruime slaapkamer en een moderne badkamer met wastafelmeubel en hangend toilet. Een bijkomend voordeel is dat de woning niet is aangesloten op gas en derhalve geen gasmeter heeft; er hoeft dus geen gascontract te worden afgesloten. Kortom, een fraai en goed onderhouden appartement dat je zeker gezien moet hebben!

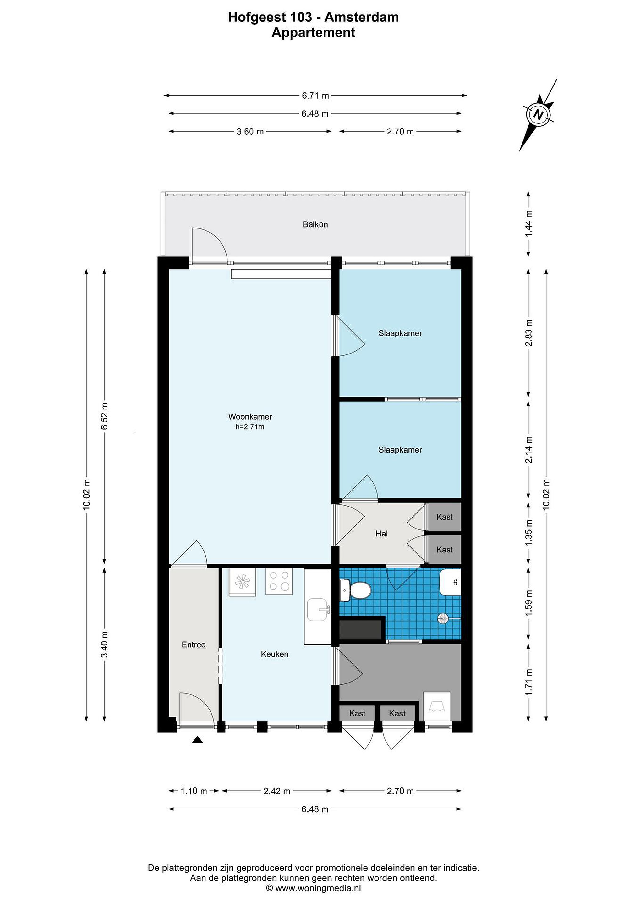
Indeling:
Begane grond:
Centrale entree met afgesloten entree, intercom en brievenbussen. Vanuit hier heb je toegang tot de lift, het trappenhuis en de bergingen.

4e verdieping:
entree/hal, royale woonkamer met toegang tot het balkon, ruime keuken. Vanuit de keuken heb je toegang tot de bijkeuken met wasmachine- en drogeraansluiting. 2e hal met vaste kast(en), zeer ruime slaapkamer met mede toegang tot het balkon. Badkamer voorzien van een toilet, douche en wastafel.

Bijzonderheden:
- verwarming middels stadsverwarming;
- ouderdoms- en asbestclausule zijn van toepassing;
- de erfpacht canon afgekocht t/m 31-03-2049;
- actieve en professionele VvE, maandelijkse bijdrage is ca. € 254,-- per maand, exclusief stookkosten van ca. € 78,-- euro per maand;
- parkeervergunning beschikbaar via de gemeente;
- oplevering in overleg, kan snel.

Disclaimer: De op deze website getoonde vrijblijvende informatie is door ons (met zorg) samengesteld op basis van gegevens van de verkoper (en/of derden). Deze tekst is zorgvuldig samengesteld, echter kunnen er geen rechten worden ontleend. Wij staan niet in voor de juistheid of volledigheid daarvan. Wij adviseren u en/of uw makelaar om contact met ons op te nemen bij interesse in een van onze woningen.
Lees meer

Kenmerken

Overdracht

Prijs per m2
€ 4.631
Aangeboden sinds
20 januari 2026
Status
Beschikbaar
Aanvaarding
In overleg

Bouw

Soort appartement
Galerijflat, appartement
Soort bouw
Bestaande bouw
Bouwjaar
1969
Staat van onderhouden binnen
Goed
Staat van onderhouden buiten
Goed

Oppervlakte en inhoud

Inhoud van de woning
214 m3
Oppervlakte gebouwgebonden buitenruimten
9 m2

Indeling

Aantal kamers
3
Aantal slaapkamers
2
Aantal woonlagen
1
Voorzieningen

Buitenruimte

Balkon
Nee
Schuur/berging
Nee

Maandlasten berekenen

De maandlasten voor je woning bestaan uit meer dan alleen de hypotheeklasten. Hieronder vind je een overzicht van de bijkomende kosten en lasten. Zo weet je precies wat je huis per maand gaat kosten. En met de handige vergelijkers kun je ook nog eens snel de beste deals sluiten!

  • Kaart
  • Streetview