Onder optie

Weverskaarde 27 5014 DX Tilburg

99m2
Wonen
3
Kamers
0m2
Perceel
2025
Bouwjaar

Deze ruime bovenwoning met dakterras op het zuidwesten is uniek voor het centrum van Tilburg. Lange straten zijn kenmerkend voor het Tilburgse binnengebied, en dat is waar woningtype C op is afgestemd. De sheddaken, gebaseerd op oude fabriekshallen, en de gevels passen perfect bij de bestaande industriesfeer. De woningen liggen aan een stadsparkje.

Een uitgelezen kans op een nieuwbouwwoning op 2 minuten wandelen gelegen van de spoorzone. Ruime bovenwoning met dakterras op het zuidwesten, inclusief parkeerplaats. Uitzicht op het park.
De woning is gasloos en voorzien van energieklasse A+++, vloerverwarming, vloerkoeling, warmtepomp, zonnepanelen, badkamer en toilet.

Weverskaarde 27 is nu in de verkoop gekomen. Oplevering van dit nieuwbouwproject is 2e -3e kwartaal 2026.

Spaendonck is een nieuw project op de plek van de voormalige wollenstoffenfabriek aan de Enschotsestraat te Tilburg.

De vervallen fabrieksgebouwen zijn een fantastische plek voor de 143 duurzame woningen die in de toekomst worden gebouwd. Een plan met grondgebonden woningen, stadswoningen en appartementen in verschillende prijsklassen. Door de ontwikkeling van dit gesloten fabrieksterrein wordt het een toegankelijk en aantrekkelijk openbaar gebied.

Spaendonck voegt een interessante woon- en leefomgeving toe aan de bestaande woonwijk. Verschillende woningen krijgen een voortuin aan deze openbare ruimte wat de levendigheid zal versterken. Er zal een mooi groene autovrije zone worden gerealiseerd tussen de Enschotsestraat en de Rozenstraat. De wijze waarop de wijk en de openbare ruimte is ingedeeld verbindt verschillende groene ruimtes. Het nieuwe park wordt een aantrekkelijke verblijfsplek met natuurwaarden, waterberging en speelruimte.

Architectuur:

In de architectuur is inspiratie gevonden bij de cultuurhistorische context. De baksteen architectuur van de fabrieksgebouwen wordt gerespecteerd en de bebouwingsschaal, sheddaken en grote gevelopeningen over meerdere woningen en verdiepingen zijn een verwijzing naar de industriële architectuur in het algemeen. Weefpatronen in het metselwerk, verschillende baksteen structuren en geprofileerde gevelbekleding refereren aan de rijke geschiedenis van de wollenstoffenproductie en de ambacht uit het verleden. Waardevolle en bijzondere elementen uit de bestaande bebouwing, zoals de roosterramen en het Heilig Hartbeeld, worden ingepast in het nieuwe plan.

De bebouwing bestaat uit een aaneenschakeling van bouwblokken van drie á vier bouwlagen en twee hoogteaccenten op de hoeken. Met de positionering van de woningen is afstand gecreëerd tot de bestaande percelen om de privacy te waarborgen voor de bestaande en nieuwe bewoners. Het woongebouw aan de Enschotsestraat en een lager woongebouw aan de Rozenstraat accentueren de entree van het park en vormen een mooie beëindiging van het bouwblok.

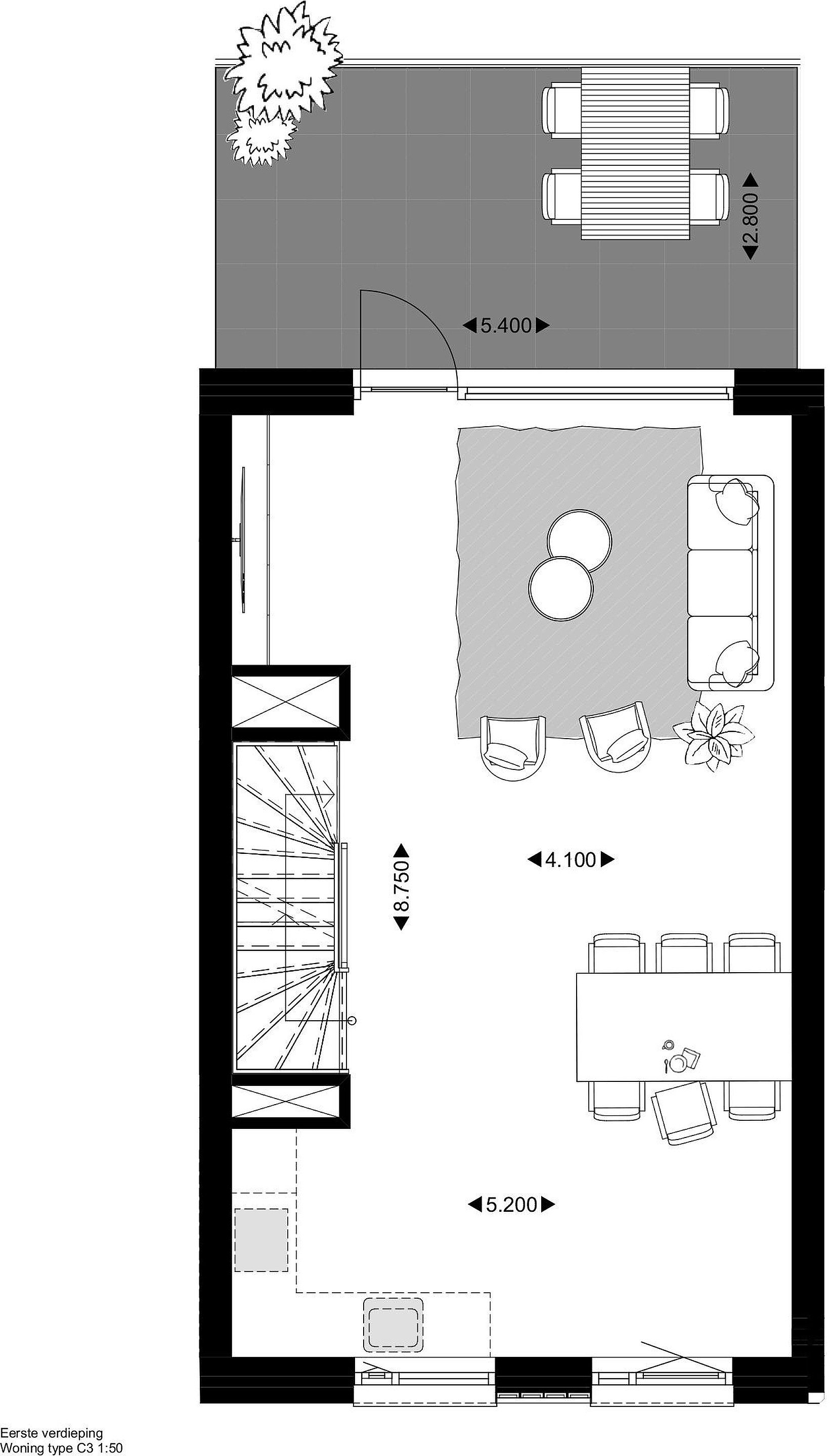
Deze ruime grondgebonden woningen met tuin en dakterras op het zuidwesten zijn uniek voor het centrum van Tilburg. Lange straten zijn kenmerkend voor het Tilburgse binnen gebied, en dat is waar woningtype op is afgestemd. De sheddaken, gebaseerd op oude fabriekshallen, en de gevels passen perfect bij de bestaande industriesfeer. De woningen liggen aan een stadsparkje.

Overzicht:

Energieklasse: A+++
Oppervlakte: 99 m2 gebruiksoppervlakte
Slaapkamers: 2
Dakterras: 5,40 x 2,80 m op het zuidwesten
Parkeerplaats: inclusief
Berging: inclusief
Uniek: aangrenzend aan stadsparkje


Wilt u gebruik maken van deze unieke kans?
Bel voor meer informatie of een afspraak op kantoor: info@mtbmakelaardij - 06-54364867
Lees meer

Kenmerken

Overdracht

Prijs per m2
€ 4.646
Aangeboden sinds
23 december 2025
Status
Beschikbaar
Aanvaarding
In overleg

Bouw

Soort appartement
Bovenwoning, appartement
Soort bouw
Nieuwbouw
Bouwjaar
2025
Soort dak
Plat dak
Staat van onderhouden binnen
Uitstekend
Staat van onderhouden buiten
Uitstekend

Oppervlakte en inhoud

Inhoud van de woning
263 m3
Oppervlakte externe bergruimte
6 m2

Indeling

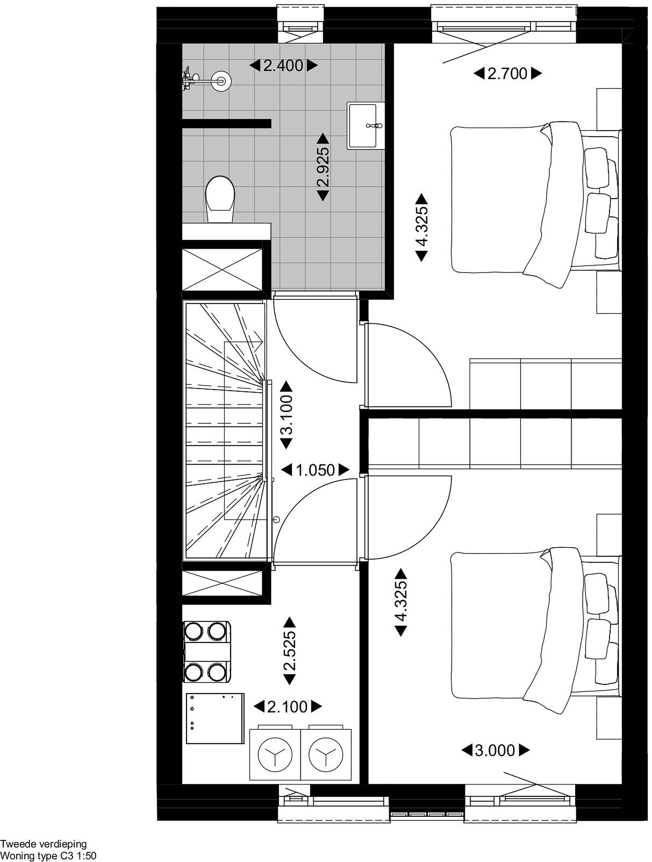
Aantal kamers
3
Aantal slaapkamers
2
Aantal woonlagen
3
Voorzieningen
Balkon, schuur/berging, ventilatie, glasvezel, schuifpui

Buitenruimte

Balkon
Ja
Schuur/berging
Ja

Maandlasten berekenen

De maandlasten voor je woning bestaan uit meer dan alleen de hypotheeklasten. Hieronder vind je een overzicht van de bijkomende kosten en lasten. Zo weet je precies wat je huis per maand gaat kosten. En met de handige vergelijkers kun je ook nog eens snel de beste deals sluiten!

  • Kaart
  • Streetview