Rotterdamsedijk 156B 3112 BJ Schiedam

85m2
Wonen
3
Kamers
0m2
Perceel
1934
Bouwjaar
Ruime bovenwoning met eigen entree, veel buitenruimte en volop mogelijkheden

Aan de Rotterdamsedijk 156B in Schiedam bevindt zich deze verrassend ruime bovenwoning met eigen entree, meerdere balkons en een indeling die logisch én flexibel is. Een woning met een solide basis, veel licht en vooral: duidelijke potentie voor wie vooruit durft te kijken.

Licht, ruimte en buitenleven

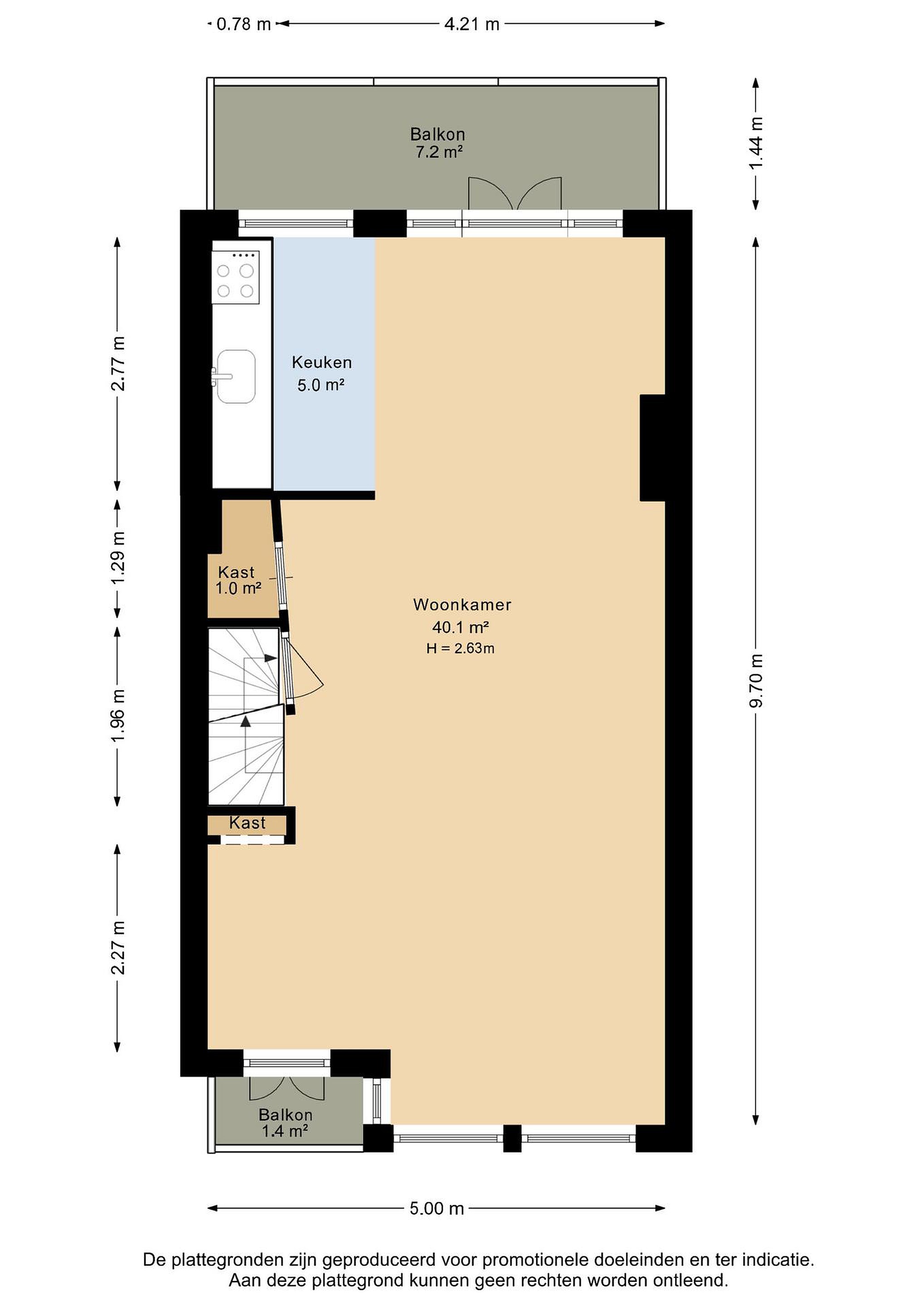
Via de eigen entree op straatniveau bereik je de woning. Op de eerste verdieping tref je een royale woonkamer van circa 48 m2 met open woonkeuken. Dankzij de balkons aan zowel de voor- als achterzijde geniet je hier de hele dag van licht en buitenruimte — zonliefhebbers hoeven dus niet te kiezen.

Aan de achterzijde zijn kunststof kozijnen met dubbel glas geplaatst. De houten kozijnen aan de voorzijde zijn eveneens voorzien van dubbel glas, maar bieden ruimte voor modernisering.

Twee volwaardige woonlagen

Een interne trap leidt naar de tweede verdieping. Hier vind je een ruime overloop met toegang tot:

Twee slaapkamers (ca. 22 m2 en 9 m2)

Een badkamer

Een separaat toilet

Een aparte wasruimte

Ook deze verdieping beschikt over balkons aan twee zijden, wat zorgt voor extra licht, ventilatie en comfort.

Technisch solide uitgangspunt

De woning is voorzien van een CV-installatie uit 2023, wat bijdraagt aan een betrouwbare en energiezuinige basis. Functioneel is de woning goed op orde; op het gebied van afwerking is modernisering wenselijk — en juist daarin schuilt de meerwaarde.

Ligging: centraal en goed bereikbaar

De Rotterdamsedijk ligt op een strategische locatie in Schiedam, met snelle verbindingen richting Rotterdam, openbaar vervoer op korte afstand en diverse voorzieningen in de directe omgeving. Een stedelijke omgeving met alles binnen handbereik, zonder dat je midden in de drukte zit.

Een woning met perspectief

Zoek je geen kant-en-klaar plaatje, maar een woning met ruimte, buitenruimte en ontwikkelkansen? Dan is dit een interessant object. Met gerichte investeringen is hier duidelijke waarde te creëren — ideaal voor kopers die kansen herkennen en benutten.

Pluspunten op een rij

Bovenwoning met eigen entree

Royale woonkamer van ca. 48 m2

Balkons aan beide zijden op beide verdiepingen

Twee slaapkamers

CV-installatie uit 2023

Functioneel en solide, met moderniseringsmogelijkheden

Centrale ligging nabij Rotterdam en OV

Plan een bezichtiging

Benieuwd naar de mogelijkheden van deze woning? Neem contact met ons op voor een vrijblijvende bezichtiging en ontdek zelf het potentieel van Rotterdamsedijk 156B.

Bieden vanaf € 270.000kk

Project notaris ( Kooijman Autar) is reeds aangesteld
Lees meer

Kenmerken

Overdracht

Prijs per m2
€ 3.176
Aangeboden sinds
16 december 2025
Status
Beschikbaar
Aanvaarding
Direct

Bouw

Soort appartement
Bovenwoning, dubbel bovenhuis
Soort bouw
Bestaande bouw
Bouwjaar
1934
Staat van onderhouden binnen
Goed
Staat van onderhouden buiten
Goed

Oppervlakte en inhoud

Indeling

Aantal kamers
3
Aantal slaapkamers
2
Aantal woonlagen
2
Voorzieningen
Balkon

Buitenruimte

Balkon
Ja
Schuur/berging
Nee

Maandlasten berekenen

De maandlasten voor je woning bestaan uit meer dan alleen de hypotheeklasten. Hieronder vind je een overzicht van de bijkomende kosten en lasten. Zo weet je precies wat je huis per maand gaat kosten. En met de handige vergelijkers kun je ook nog eens snel de beste deals sluiten!

  • Kaart
  • Streetview