Verkocht

Groenelaan 121B 3114 CE Schiedam

86m2
Wonen
4
Kamers
0m2
Perceel
1935
Bouwjaar
WEGENS GROTE BELANGSTELLING ZIJN DE BEZICHTIGINGSMOMENTEN VOLGEPLAND. U KUNT ZICH WEL AANMELDEN VOOR DE RESERVELIJST DOOR ONS EEN EMAIL TE STUREN.

Ben je op zoek naar een instapklare bovenwoning in de Gorzen, dan moet je deze woning beslist komen bezichtigen!

Enkele pluspunten van deze woning:
- Woonkamer met sfeervolle en-suite met schuifdeuren
- Moderne keuken, badkamer en toilet – geplaatst in 2024
- 3 slaapkamers
- 2 balkons
- Geheel voorzien van kunststof kozijnen met dubbel glas
- 6 zonnepanelen

De Schiedamse woonwijk “De Gorzen” is een gezellige en levendige buurt met een dorpsachtig karakter met veelal woningen uit begin van de twintigste eeuw. De dagelijkse boodschappen doe je in de straat, de Albert Heijn zit letterlijk tegenover de woning. De wijk is kindvriendelijk en heeft diverse basisscholen en kinderdagopvang op korte afstand.
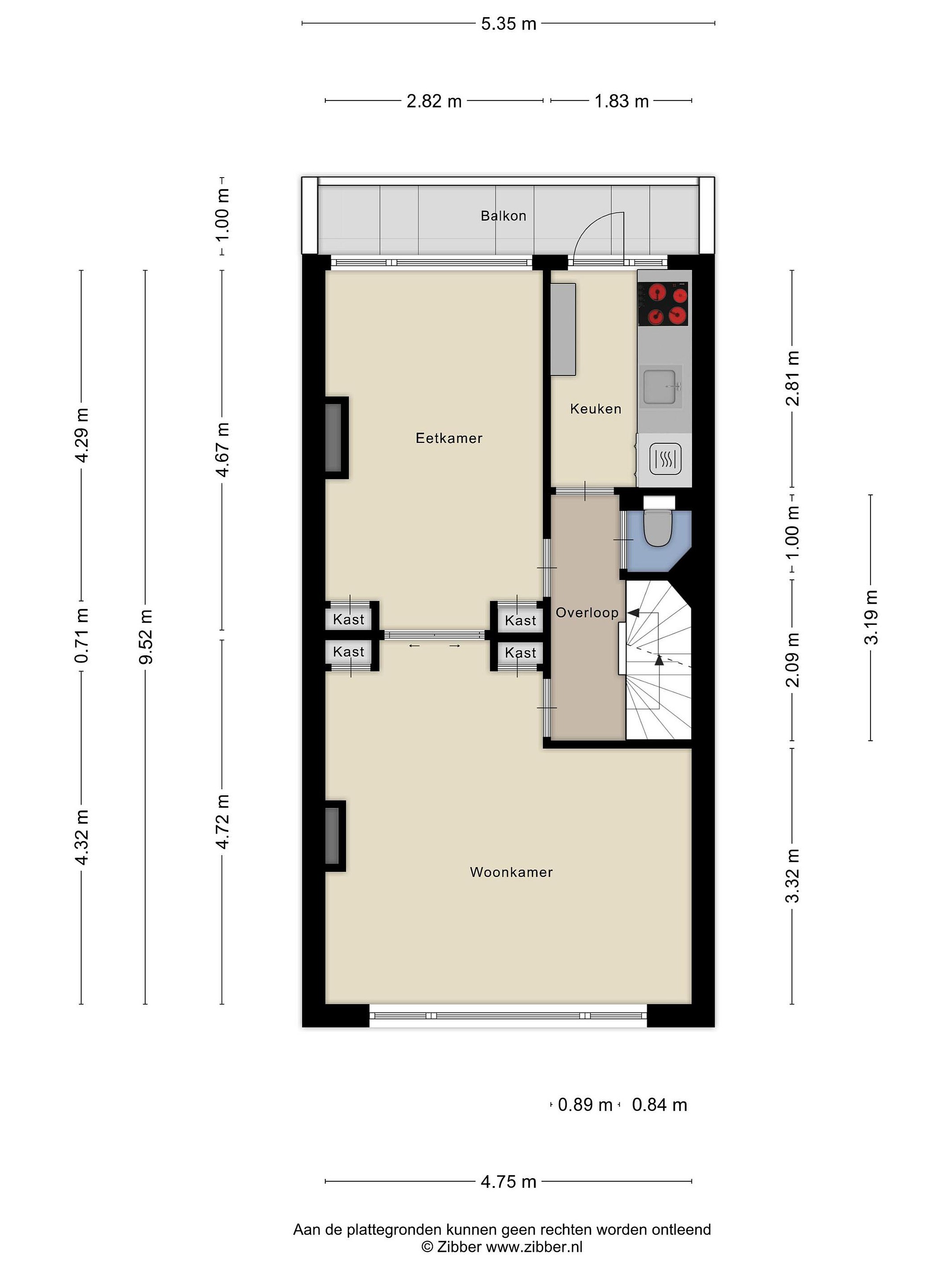
Begane grond
Begane grond:
Eigen entree met trap naar de 1e verdieping

Eerste verdieping:
Overloop met toegang tot de woonkamer, keuken en toilet en trapopgang naar de 2e verdieping
De woonkamer is voorzien van een laminaatvloer en wordt middels een en-suite met schuifdeuren verdeeld in een woon- en eetkamer. De keuken is gelegen aan de achterzijde van de woning en de keukeninrichting met inbouwapparatuur is in 2024 geplaatst, dus zo goed als nieuw. Vanuit de keuken kom je op het eerste balkon, heerlijk gelegen op het zuiden. Het toilet heeft een vrijhangend closet en een leuke nis en is in 2024 geplaatst.

Tweede verdieping:
Overloop met toegang tot 3 slaapkamers, 2 aan de voorzijde en 1 aan de achterzijde, en de badkamer. In de slaapkamer aan de voorzijde is een aansluiting voor wasmachine en droger. De badkamer is in 2024 geplaatst en voorzien van een douche, 2e toilet en wastafel. Via de badkamer kom je op het 2e balkon.

Details
* Woonoppervlak 86 m2
* Energielabel
* Keuken - 2024
* Badkamer – 2024
* Toilet - 2024
* Airconditioning - 2021
* CV – 2019
* 6 zonnepanelen – 2022
* nieuwe binnendeuren (toilet, badkamer, 2 slaapkamers en keuken)
* vloer, trapbekleding en stucwerk - 2020
* In opdracht van verkoper is een bouwkundige keuring uitgevoerd. Het rapport is ter inzage.
* De VVE is ingeschreven bij de KVK maar dient nog verder geactiveerd te worden.
* Bij deze woning (ouder dan 30 jaar) is de ouderdomsclausule van toepassing.
* Bij deze woning (gebouwd voor 1993) is de asbestclausule van toepassing.

Biedlogboek
Vanaf 1 januari 2023 zijn makelaars wettelijk verplicht een biedlogboek bij te houden bij de verkoop van bestaande woningen (en wanneer de koper en/of de verkoper een particulier is). Biedingen kunt u per die datum, en indien gewenst, nog steeds mondeling met ons bespreken maar dient u daarna digitaal aan ons te bevestigen via Eerlijk Bieden.

Toelichtingsclausule BBMI/NEN2580
De meetinstructie is gebaseerd op de BBMI/NEN2580. De meetinstructie is bedoeld om een meer eenduidige manier van meten toe te passen voor het geven van een indicatie van de gebruiksoppervlakte. De meetinstructie sluit verschillen in meetuitkomsten niet volledig uit, door bijvoorbeeld interpretatieverschillen, afrondingen of beperkingen bij het uitvoeren van de meting.

Rechtsgeldige koopovereenkomst pas ná ondertekening
Een mondelinge overeenstemming tussen de particuliere verkoper en de particuliere koper is niet rechtsgeldig. Met andere woorden: er is geen koop. Er is pas sprake van een rechtsgeldige koop als de particuliere verkoper en de particuliere koper de koopovereenkomst hebben ondertekend. Dit vloeit voort uit artikel 7:2 Burgerlijk Wetboek. Een bevestiging van de mondelinge overeenstemming per e-mail of een toegestuurd concept van de koopovereenkomst wordt overigens niet gezien als een ‘ondertekende koopovereenkomst’.

Deze informatie is met zorg samengesteld, maar voor de juistheid ervan kan door Moerman & De Jong Makelaars geen aansprakelijkheid worden aanvaard, noch kan aan de vermelde gegevens enig recht worden ontleend. Nadrukkelijk is vermeld dat deze informatieverstrekking niet als een aanbieding of offerte mag worden beschouwd.



Lees meer

Verkoopgeschiedenis

Aangeboden sinds
11 februari 2026
Verkoopdatum
23 april 2026
Looptijd
2 maanden

Kenmerken

Overdracht

Prijs per m2
€ 3.360
Aangeboden sinds
11 februari 2026
Status
Verkocht
Aanvaarding
In overleg

Bouw

Soort appartement
Bovenwoning, dubbel bovenhuis
Soort bouw
Bestaande bouw
Bouwjaar
1935
Soort dak
Plat dak
Staat van onderhouden binnen
Goed
Staat van onderhouden buiten
Goed

Oppervlakte en inhoud

Inhoud van de woning
283 m3
Oppervlakte gebouwgebonden buitenruimten
12 m2

Indeling

Aantal kamers
4
Aantal slaapkamers
3
Aantal woonlagen
2
Voorzieningen
Balkon, airconditioning

Buitenruimte

Balkon
Ja
Schuur/berging
Nee

Maandlasten berekenen

De maandlasten voor je woning bestaan uit meer dan alleen de hypotheeklasten. Hieronder vind je een overzicht van de bijkomende kosten en lasten. Zo weet je precies wat je huis per maand gaat kosten. En met de handige vergelijkers kun je ook nog eens snel de beste deals sluiten!

  • Kaart
  • Streetview