Luijbenstraat 22 5211 BT 's-Hertogenbosch

155m2
Wonen
5
Kamers
0m2
Perceel
1890
Bouwjaar
Prachtig koopappartement Luijbenstraat 22, ‘s-Hertogenbosch

Uniek wonen in karakteristiek pand uit 1898

Dit schitterende appartement op de 2e en 3e verdieping van dit historisch pand biedt een unieke kans om te wonen in een rustige straat, vlak bij de binnenstad en het station van ‘s-Hertogenbosch. Perfect voor wie op zoek is naar een combinatie van authentieke charme en moderne gemakken.

Kenmerken
Bouwjaar: 1898 – een pand met historie en karakter.
Locatie: Gelegen op een steenworp afstand van de levendige binnenstad en het station, terwijl je geniet van de rust van de Luijbenstraat.
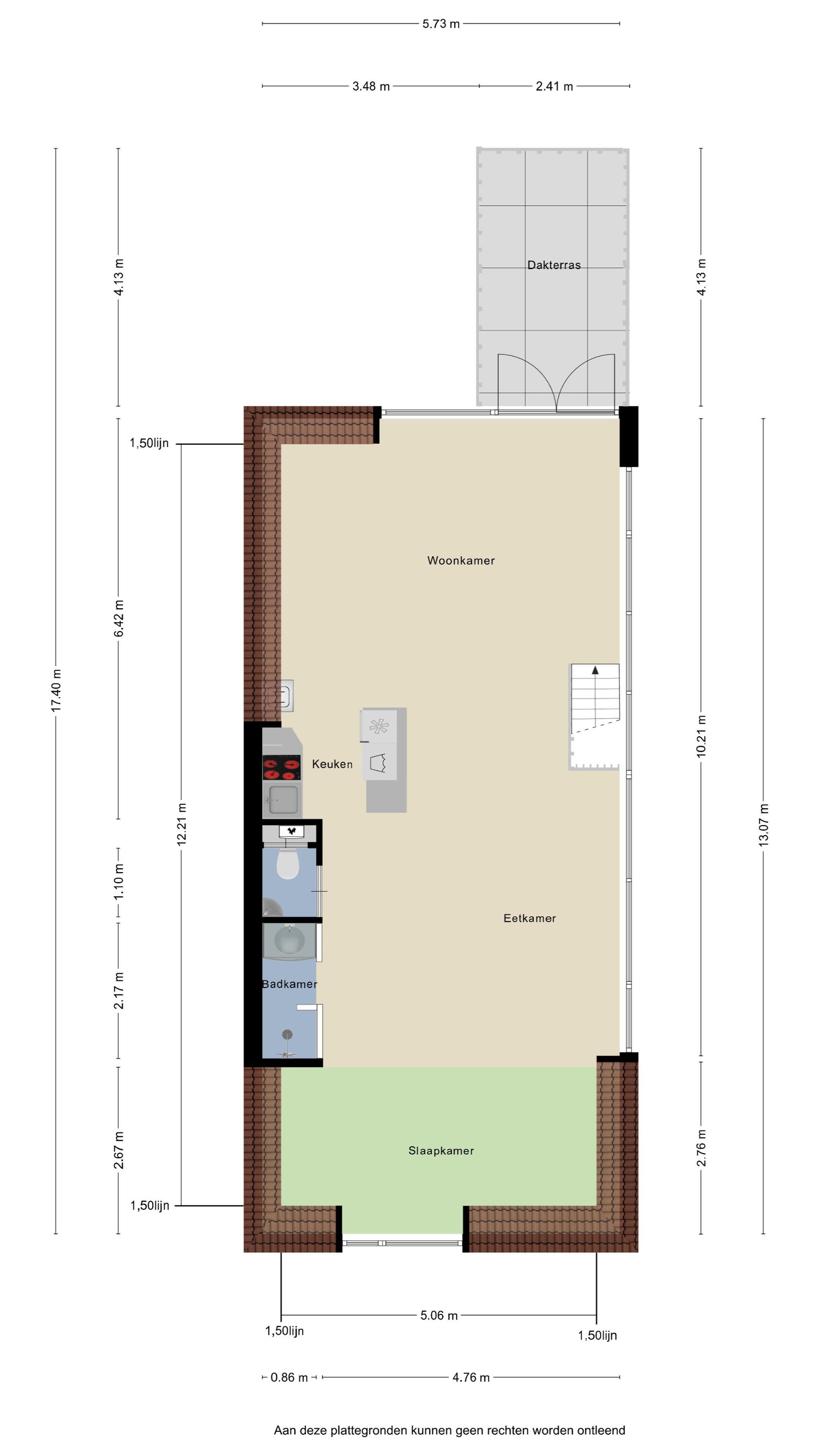
Verdiepingen: Het ruime appartement beslaat de gehele 2e en 3e verdieping.
Buitenruimtes: Een balkon met openslaande deuren op de 2e etage en een dakterras op de 3e etage, beiden op het zuiden om te genieten van de buitenlucht en het vrije uitzicht.
Rustige achterzijde: Ideaal om te ontsnappen aan de drukte van de stad, rust mede door het aangrenzend stadsklooster.
Originele details: Authentieke elementen die elke etage een unieke uitstraling geven.
Begane grond
Woonobject is thans opgedeeld in 2 appartementen:
Op zowel de 2e als de 3e etage is een appartement met een gedeelde opgang en ieder een eigen voordeur. Beide etages zijn niet kadestraal gescheiden.


Eerste verdieping
Kenmerken 2e verdieping
Twee grote woonkamers gescheiden door vaste kasten en originele schuifdeuren met glas in lood.
De woonkamer aan de voorkant met openslaande deuren naar Frans balkon en zicht op de straat.
Grote woonkamer achter met openslaande deuren naar praktisch balkon.
Kleine (slaap)kamer achter met veel licht 250 x 205 cm.
Kleine (slaap)kamer voor met zicht op de straat 300 x 205 cm.
Gebruikte en volledig ingerichte keuken met apparatuur en deur naar balkon.
Badkamer, gerenoveerd met inloopdouche, badkamermeubel met wastafel en hangend toilet.
Naar eigen wensen zijn de 4 kamers te gebruiken als zitkamer, eetkamer, werkkamer of slaapkamer(s).


Beide etages zijn voorzien van laminaatvloeren in lichte tint, ruimschoots voorzien van (led) verlichting en stopcontacten en het schilderwerk binnen en buiten is recent gedaan.



Tweede verdieping
Kenmerken 3e verdieping
Authentieke bovenetage en verrassende entree voor iedere bezoeker, met name door het enorme (zon-)licht door de vele ramen.
De originele balken en houten dakconstructie geven deze ruimte een uniek karakter en sfeer.
Eén grote ruimte, waarin de verschillende woonfuncties verenigd zijn: koken, eten, douchen, slapen en genieten buiten op het dakterras.
Eilandkeuken met bar, inductiekookplaat, koelkast en wasmachine.
Het penthouse biedt alle ruimte voor zithoek, eethoek, studiecorner, enz.
Slaapcorner met inbouwkasten.
Badkamer met inloopdouche, wastafel, apart toilet .
Grandioos balkon / dakterras op het zuiden met buitenverlichting en riant uitzicht.

Details
Isolatie en verwarming
Het recente energierapport geeft een energielabel C voor het hele gebouw, een uitstekende isolatiewaarde voor een dergelijk pand.
Beide verdiepingen hebben ieder eigen Intergas CV -installatie (2014 en 2019) en op 22A bevinden zich in de meterkast de hoofdgas-, elektra- en watermeters. Er zijn ook tussenmeters geplaatst, zodat het verbruik van 22B eventueel apart berekend kan worden.
Deuren en kozijnen zijn voorzien van HR-isolatieglas, op een enkel niet essentieel raam na.
De etages zijn in alle balkenlagen extra geïsoleerd met steenwol met als effectief doel warmte- en geluidsisolatie.
Het dak is geïsoleerd.

VVE bijdrage € 250 per maand
Het pand is recent gesplitst in appartementsrechten, waarbij een Vereniging van Eigenaars (VvE) is opgericht. Voorheen werden de appartementen verhuurd.
Er is geen vragenlijst. In de koopakte zal een niet zelf bewoningsclausule en een ouderdomsclausule worden opgenomen.

Parkeren
Via de gemeente kunt u een parkeervergunning aanvragen voor in de straat. Meestal is er voldoende parkeerruimte in deze 1-richtingsstraat.
Tevens is er via de gemeenteapp een bezoekersregeling, waarmee u uw bezoek kunt aanmelden.

Waarom kiezen voor dit appartement?

Dit appartement biedt de perfecte balans tussen stadse dynamiek en serene rust. Of je nu geniet van een kop koffie op het balkon, een gezellige avond op het dakterras, of de originele details bewondert die het pand zijn unieke karakter geven – dit is wonen zoals je dat werkelijk zelden elders zult vinden.
Neem contact op voor een bezichtiging en ontdek de charme van dit bijzondere appartement!


Lees meer

Kenmerken

Overdracht

Prijs per m2
€ 4.194
Aangeboden sinds
21 februari 2026
Status
Beschikbaar
Aanvaarding
In overleg

Bouw

Soort appartement
Bovenwoning, appartement
Soort bouw
Bestaande bouw
Bouwjaar
1890
Soort dak
Plat dak
Staat van onderhouden binnen
Goed
Staat van onderhouden buiten
Goed

Oppervlakte en inhoud

Inhoud van de woning
533 m3
Oppervlakte gebouwgebonden buitenruimten
14 m2

Indeling

Aantal kamers
5
Aantal slaapkamers
3
Aantal woonlagen
2
Voorzieningen
Balkon

Buitenruimte

Balkon
Ja
Schuur/berging
Nee

Maandlasten berekenen

De maandlasten voor je woning bestaan uit meer dan alleen de hypotheeklasten. Hieronder vind je een overzicht van de bijkomende kosten en lasten. Zo weet je precies wat je huis per maand gaat kosten. En met de handige vergelijkers kun je ook nog eens snel de beste deals sluiten!

  • Kaart
  • Streetview