Spionkopstraat 34 2572 NM 's-Gravenhage

84m2
Wonen
4
Kamers
0m2
Perceel
1927
Bouwjaar
Ruim 4-kamerappartement (84 m2) met balkon en vrij uitzicht in het hart van Transvaal

Zoek je een licht en ruim bovenhuis met drie slaapkamers, een brede leefkamer en alle voorzieningen om de hoek? Dan is dit je kans. Dit appartement op de tweede (top)verdieping ligt supercentraal tussen Hobbemaplein/Paul Krugerlaan en de Haagse Markt. Winkels en supermarkten (o.a. Albert Heijn aan de Hobbemastraat) liggen op loopafstand; tramlijnen 6 (halte Hobbemaplein/Paul Krugerplein) en 12 brengen je vlot richting centrum, HS/CS en Scheveningen.


Bijzonderheden:
- Vraagprijs € 269.000 k.k.
- Woonoppervlakte 84 m2
- 4-kamer bovenwoning: woonkamer + 3 slaapkamers
- Dubbel glas en HR-cv-ketel (2012)
- Energielabel D
- VvE-bijdrage ca. € 70 p/m
- Erfpacht: eeuwigdurend heruitgegeven; canon € 12,92 per halfjaar achteraf, eerstvolgende herziening 1-1-2027
- Centrale ligging: Haagse Markt op loopafstand; trams 6 & 12 richting centrum/HS/CS/Scheveningen
- Oplevering in overleg (snel mogelijk)


Omgeving & bereikbaarheid:
- Haagse Markt (Herman Costerstraat) één van de grootste markten van NL, vier dagen per week geopend.
- OV: Tram 6 (o.a. Hobbemaplein/Paul Krugerplein) en 12 (Paul Krugerplein – HS/CS – Duindorp/Scheveningen).
- Winkels: Volop speciaalzaken, horeca en supermarkten rond Hobbemaplein/Paul Krugerlaan; Albert Heijn Hobbemastraat 173 nabij.
- Fietsafstand: Binnenstad en Den Haag HS; goede aansluiting op uitvalswegen via de Hoefkade/De la Reyweg.


Interesse? Plan direct je bezichtiging.

Dit is een instapklare, betaalbare basis op een absolute A-locatie met alles binnen handbereik, ideaal voor starters en jonge gezinnen.

Aan deze presentatie kunnen geen rechten worden ontleend.
Begane grond
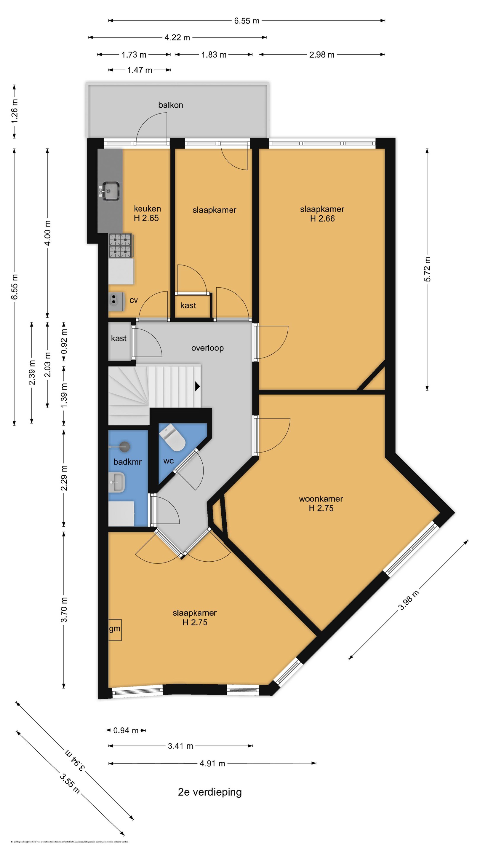
Via de open portiek trap kom je op de eerste etage bij je eigen entree met meterkast; een tweede trap leidt naar de woonverdieping. De lichte woonkamer met karakteristieke gevelindeling biedt plek voor een royale zithoek én eettafel. Aan de achterzijde liggen drie slaapkamers, waarvan één met toegang naar het brede balkon, heerlijk voor je ochtendkoffie of een rustige avond. De separate keuken grenst eveneens aan het balkon en is praktisch ingedeeld met veel kastruimte. De badkamer is voorzien van douche en wastafelmeubel; het toilet is separaat vanaf de overloop.

Lees meer

Kenmerken

Overdracht

Prijs per m2
€ 3.202
Aangeboden sinds
22 augustus 2025
Status
Beschikbaar
Aanvaarding
In overleg

Bouw

Soort appartement
Bovenwoning
Soort bouw
Bestaande bouw
Bouwjaar
1927
Soort dak
Plat dak
Staat van onderhouden binnen
Goed
Staat van onderhouden buiten
Goed

Oppervlakte en inhoud

Inhoud van de woning
135 m3
Oppervlakte gebouwgebonden buitenruimten
5 m2

Indeling

Aantal kamers
4
Aantal slaapkamers
3
Aantal woonlagen
1
Voorzieningen
Balkon

Buitenruimte

Balkon
Ja
Schuur/berging
Nee

Maandlasten berekenen

De maandlasten voor je woning bestaan uit meer dan alleen de hypotheeklasten. Hieronder vind je een overzicht van de bijkomende kosten en lasten. Zo weet je precies wat je huis per maand gaat kosten. En met de handige vergelijkers kun je ook nog eens snel de beste deals sluiten!

  • Kaart
  • Streetview