Daal en Bergselaan 54Q 2565 AG 's-Gravenhage

99m2
Wonen
3
Kamers
0m2
Perceel
2002
Bouwjaar
Ruim en licht hoekappartement met zonnig balkon en eigen parkeerplaats – rustig wonen aan de rand van de Vogelwijk.

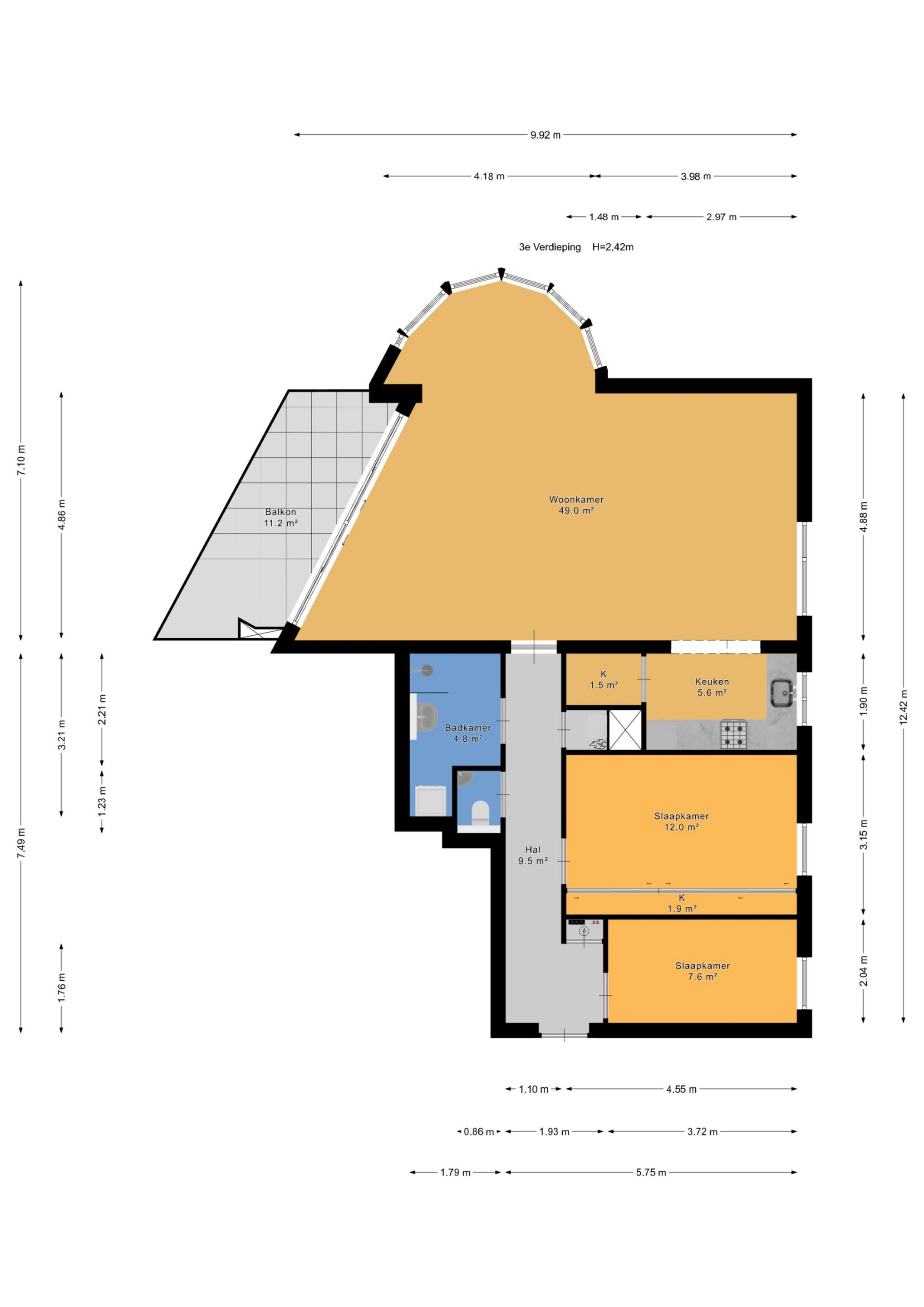
Aan de rand van de geliefde Vogelwijk, in het keurig onderhouden appartementencomplex “Pexloo”, bevindt zich dit bijzonder lichte en ruime hoekappartement van bijna 100 m2. Het appartement ligt op de derde verdieping en beschikt over een zonnig balkon op het zuidwesten, een eigen parkeerplaats en een ruime berging in de afgesloten parkeerkelder.

Dankzij de hoekligging geniet u van veel privacy, lichtinval en een vrij uitzicht over de straat en het groen van de Bosjes van Pex. De ligging is ideaal: het strand, de duinen, winkels en het openbaar vervoer bevinden zich allemaal op loopafstand.

Indeling
Centrale entree met brievenbussen, bellentableau en videofooninstallatie. Via de afgesloten hal met lift en trappenhuis bereikt u de derde verdieping.

Entree van het appartement met meterkast, modern toilet met fontein en een praktische berging met aansluiting voor de cv-installatie.

De ruime woon-/eetkamer is opvallend licht door de vele ramen aan drie zijden. Vanuit de comfortabele zithoek met schuifpui stapt u zo het zonnige balkon op, waar u tot laat op de dag van de zon kunt genieten. De brede raampartijen aan de ronde gevel zorgen voor een prachtig ruimtelijk gevoel en uitzicht over de straat.

De halfopen L-vormige keuken is netjes onderhouden en voorzien van diverse inbouwapparatuur, waaronder een gasfornuis, oven, vaatwasser, afzuigkap en spoelbak. Aangrenzend bevindt zich een extra bergkast.

Ruime hoofdslaapkamer met vaste schuifkast en een tweede logeerkamer, ook met vaste kast. De badkamer is volledig betegeld en voorzien van een inloopdouche, wastafelmeubel en aansluitingen voor de wasmachine en droger.

In de ondergelegen parkeerkelder beschikt u over een privéparkeerplaats en een ruime (fietsen)berging.

Bijzonderheden:
- Actieve en gezonde VvE, maandelijkse bijdrage € 220,- per maand
- Eigen parkeerplaats in afgesloten, elektrisch bedienbare parkeerkelder
- Ruime privéberging in de onderbouw
- Eeuwigdurend afgekochte erfpacht
- Energielabel B
- Bouwjaar 2002
- Verkoopvoorwaarden Den Braber & Ram van toepassing
- Oplevering in overleg

Dit appartement biedt comfortabel en zorgeloos wonen op een rustige, groene locatie met alle voorzieningen binnen handbereik.
Lees meer

Kenmerken

Overdracht

Prijs per m2
€ 5.909
Aangeboden sinds
26 februari 2026
Status
Beschikbaar
Aanvaarding
In overleg

Bouw

Soort appartement
Bovenwoning, appartement
Soort bouw
Bestaande bouw
Bouwjaar
2002
Soort dak
Plat dak
Staat van onderhouden binnen
Goed
Staat van onderhouden buiten
Goed

Oppervlakte en inhoud

Inhoud van de woning
303 m3
Oppervlakte externe bergruimte
7 m2
Oppervlakte gebouwgebonden buitenruimten
11 m2

Indeling

Aantal kamers
3
Aantal slaapkamers
2
Aantal woonlagen
1
Voorzieningen
Balkon, schuur/berging, ventilatie, lift, schuifpui

Buitenruimte

Balkon
Ja
Schuur/berging
Ja

Maandlasten berekenen

De maandlasten voor je woning bestaan uit meer dan alleen de hypotheeklasten. Hieronder vind je een overzicht van de bijkomende kosten en lasten. Zo weet je precies wat je huis per maand gaat kosten. En met de handige vergelijkers kun je ook nog eens snel de beste deals sluiten!

  • Kaart
  • Streetview