Convivastraat 76 2522 XJ 's-Gravenhage

73m2
Wonen
4
Kamers
0m2
Perceel
1934
Bouwjaar
Staan de verhuisdozen al klaar ? Inpakken maar ! Dit daglichtrijke 4 kamer appartement van 73m2, gelegen op eigen grond en energielabel C, is klaar voor nieuwe bewoners !

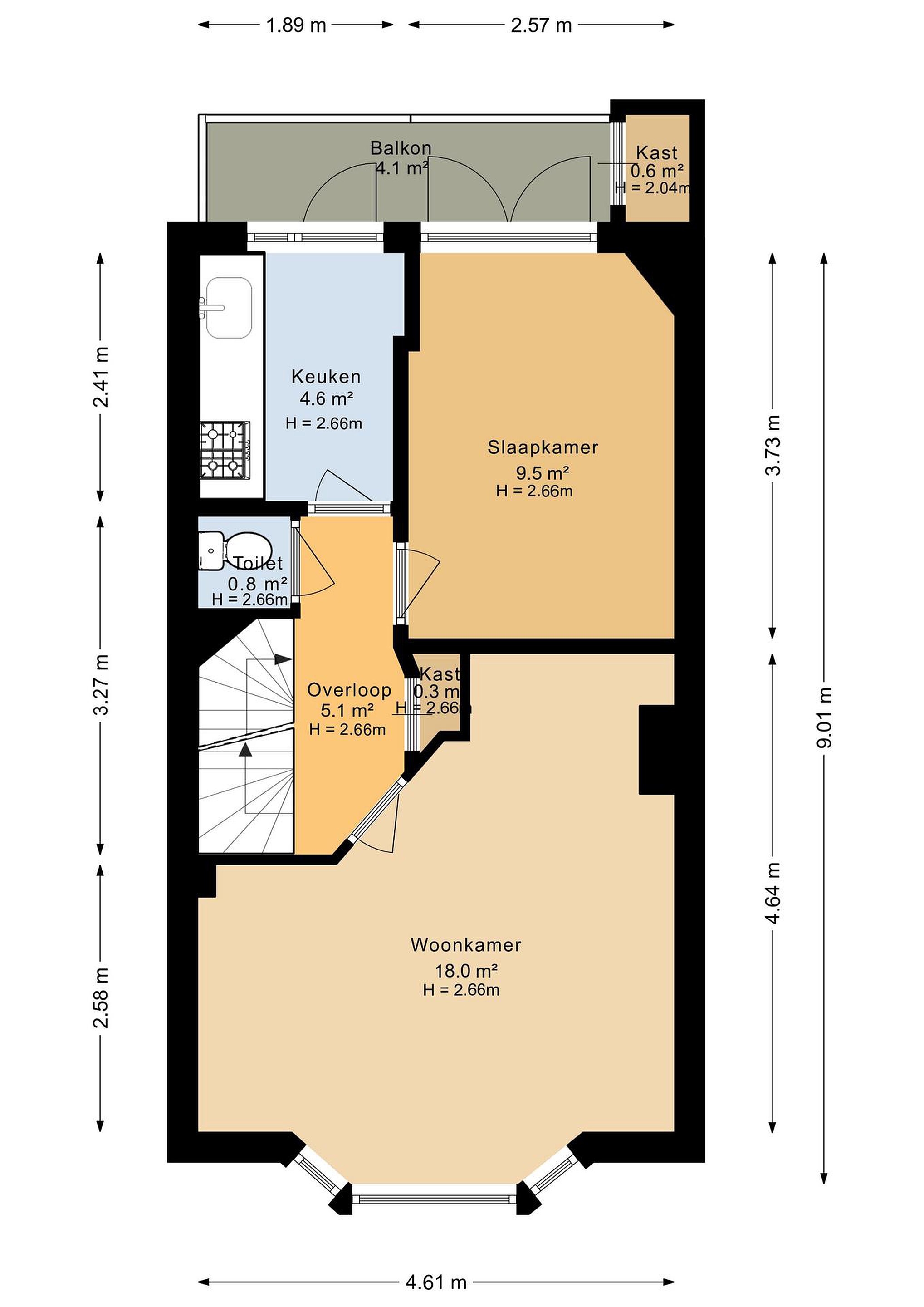
Het appartement, een dubbel bovenhuis, heeft een eigen entree op de begane grond. Via een interne trap bereikt u de eerste etage.

Via de centrale hal op de eerste etage bereikt u de ruime woonkamer van 18m2 aan de voorzijde van de woning.
In het verlengde van de woonkamer vindt u 1 van de drie overige kamers. Deze kamer is 9,5 m2.
Ideaal om in te richten als een slaap- / werk- of studeerkamer. Tevens vindt u op deze etage het toilet.

De keuken is tevens gelegen op de eerste etage, aan de achterzijde van de woning. De keuken is voorzien van een 4 pits gasfornuis, een elektrische oven en een afzuigkap (er is ruimte om een tafelmodel koelkast te plaatsen). De keuken heeft ruime opbergmogelijkheden.

Het balkon bereikt u via de keuken en de eerder genoemde (slaap-/studeer-)kamer. Het balkon is gelegen aan de achterzijde van de woning, welke gelegen is op het Noordoosten (4 m2). Het balkon heeft tevens een balkonkast.

Op de tweede etage bevinden zich twee kamers van resp. 11 m2 (voorzijde woning) en 8,5 m2 (achterzijde woning). Er is een separate badkamer met een douchecabine, wastafel en handdoekradiator.

De woning is intern in 2015 geheel opgeknapt. Tijdens deze werkzaamheden is de gehele woning tevens voorzien van nieuwe kunststofkozijnen aan de voor- en achterzijde. Alle ruimtes zijn voorzien van plafonnieres. Bijna de gehele woning heeft een laminaatvloer. De badkamervloer is voorzien van antraciet gekleurd vloerzeil.

De woning heeft een CV ketel - Intergas Kombi Kompakt HRE 28/24 A (2015). Deze is netjes is weggewerkt in een bergkast op de tweede etage.

De actieve VvE (Convivastraat 76-78-80 Den Haag) bestaat uit 3 Leden. De maandelijkse bijdrage is Eur 80,- Het beheer is overgegaan naar een professionele VvE beheerder per oktober 2025 : Totaal VvE Beheer in Rijswijk.
Er is een collectieve opstalverzekering en er is een meerjarenonderhoudsplan (2024).

In 2023/2024 zijn er werkzaamheden extern uitgevoerd door de VvE. De werkzaamheden waren oa. verfwerk boeidelen voor- en achterzijde, balkonvloer, verfwerk van de balkonkasten en de voordeur.

Kenmerken:
- Oppervlakte 73m2
- Bouwjaar 1934
- Eigen grond
- Energielabel C (geldig tot december 2035)
- 2015 intern opgeknapt
- Geheel voorzien van kunststof kozijnen aan de voor- en achterzijde
- Actieve VvE, maandbijdrage Eur 80,- (1/3e aandeel)
- Per direct beschikbaar

Locatie: Het centraal gelegen appartement ligt in het Laakkwartier. Met het openbaar vervoer, direct om de hoek, zijn oa. Rijswijk , de Haagse binnenstad alsmede de beide treinstations in Den Haag zo goed als binnen handbereik ! Diverse supermarkten zijn op loopafstand. Centraal gelegen t.o.v. de snelwegen A4, A13 en A12.

Parkeren: Vanaf 18:00 uur is betaald parkeren in de straat van toepassing. De kosten voor een parkeervergunning voor de eerste auto bedragen € 99,20 per jaar (excl. kosten aanvraag).

Oplevering & bijzonderheden:
 Oplevering in overleg, op korte termijn mogelijk
 Niet-bewoningsclausule van toepassing (de woning komt uit de verhuur)
 Ouderdoms-/materialenclausule van toepassing

Belangrijke opmerking: Deze verkoopinformatie is met grote zorgvuldigheid samengesteld. Aan de inhoud kunnen echter geen rechten worden ontleend. De informatie is puur informatief en dient als indicatief. Kopers worden geadviseerd zelf onderzoek te doen naar voor hen belangrijke zaken. Bent u geïnteresseerd in deze ruime, lichte en centraal gelegen woning? Neem dan snel contact met ons op voor een bezichtiging!
Lees meer

Kenmerken

Overdracht

Prijs per m2
€ 3.689
Aangeboden sinds
8 januari 2026
Status
Beschikbaar
Aanvaarding
In overleg

Bouw

Soort appartement
Bovenwoning, dubbel bovenhuis
Soort bouw
Bestaande bouw
Bouwjaar
1934
Soort dak
Zadeldak
Staat van onderhouden binnen
Uitstekend
Staat van onderhouden buiten
Uitstekend

Oppervlakte en inhoud

Inhoud van de woning
250 m3
Oppervlakte gebouwgebonden buitenruimten
4 m2

Indeling

Aantal kamers
4
Aantal slaapkamers
3
Aantal woonlagen
2
Voorzieningen
Vve checklist, balkon

Buitenruimte

Balkon
Ja
Schuur/berging
Nee

Maandlasten berekenen

De maandlasten voor je woning bestaan uit meer dan alleen de hypotheeklasten. Hieronder vind je een overzicht van de bijkomende kosten en lasten. Zo weet je precies wat je huis per maand gaat kosten. En met de handige vergelijkers kun je ook nog eens snel de beste deals sluiten!

  • Kaart
  • Streetview