Millinxstraat 26B02 3081 PN Rotterdam

100m2
Wonen
3
Kamers
0m2
Perceel
1931
Bouwjaar
Instapklaar en volledig gerenoveerd dubbel bovenhuis op een centrale locatie in Rotterdam

In de levendige wijk Feijenoord bevindt zich dit verrassend ruime en recent volledig gerenoveerde appartement. Een ideale woonomgeving voor starters en jonge gezinnen, met diverse voorzieningen zoals scholen, speeltuinen en horecagelegenheden in de directe omgeving.

Ruimte, licht en comfort

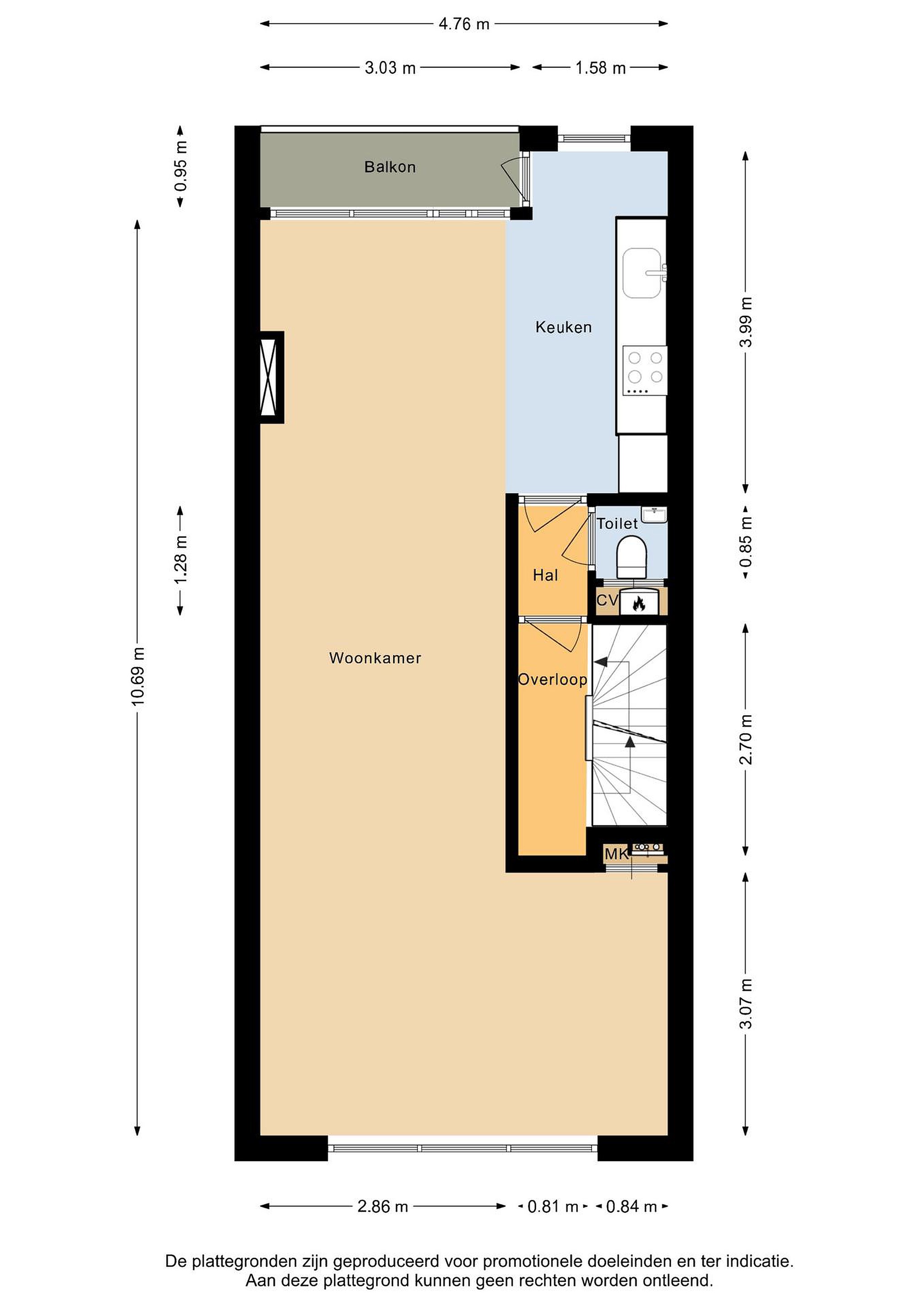
Dit fraaie dubbele bovenhuis aan de Millinxstraat 26-B02 is gelegen op de 2e en 3e verdieping en heeft een woonoppervlakte van circa 100 m2. De woning is hoogwaardig gerenoveerd en direct te betrekken. De lichte doorzonwoonkamer zorgt voor een prettige en open leefruimte met veel natuurlijk daglicht.

Modern afgewerkt en van alle gemakken voorzien

De woning beschikt over een moderne, luxe inbouwkeuken voorzien van diverse apparatuur. De ruime badkamer is stijlvol afgewerkt en uitgerust met een comfortabele inloopdouche. Daarnaast zijn er twee goed bemeten slaapkamers, ideaal voor een gezin, thuiswerkplek of logeerkamer.

Centrale ligging met uitstekende bereikbaarheid

Feijenoord is volop in ontwikkeling en biedt een aantrekkelijke mix van rust en stedelijke dynamiek. Met goede verbindingen naar het centrum van Rotterdam en alle dagelijkse voorzieningen binnen handbereik, woon je hier op een praktische en gewilde locatie.

Bijzonderheden:

Volledig en hoogwaardig gerenoveerd

Luxe keuken met inbouwapparatuur

Twee ruime slaapkamers

Moderne badkamer met inloopdouche

Nieuwe vloerafwerking door de gehele woning

De getoonde foto's met meubilair zijn deels met AI gegenereerd ter illustratie van de mogelijkheden.
Lees meer

Kenmerken

Overdracht

Prijs per m2
€ 3.500
Aangeboden sinds
20 maart 2026
Status
Beschikbaar
Aanvaarding
Direct

Bouw

Soort appartement
Bovenwoning, dubbel bovenhuis
Soort bouw
Bestaande bouw
Bouwjaar
1931
Soort dak
Zadeldak
Staat van onderhouden binnen
Uitstekend
Staat van onderhouden buiten
Uitstekend

Oppervlakte en inhoud

Inhoud van de woning
270 m3
Oppervlakte gebouwgebonden buitenruimten
4 m2

Indeling

Aantal kamers
3
Aantal slaapkamers
2
Aantal woonlagen
2
Voorzieningen
Balkon, ventilatie

Buitenruimte

Balkon
Ja
Schuur/berging
Nee

Maandlasten berekenen

De maandlasten voor je woning bestaan uit meer dan alleen de hypotheeklasten. Hieronder vind je een overzicht van de bijkomende kosten en lasten. Zo weet je precies wat je huis per maand gaat kosten. En met de handige vergelijkers kun je ook nog eens snel de beste deals sluiten!

  • Kaart
  • Streetview