Millinxstraat 26B02 3081 PN Rotterdam

100m2
Wonen
3
Kamers
0m2
Perceel
1931
Bouwjaar
Ontdek dit geweldige volledig nieuw gerenoveerde en ruime appartement op een toplocatie in Rotterdam!

Welkom in de bruisende wijk Feijenoord, waar het stedelijke leven samenkomt met een gemoedelijke sfeer. Voor jonge gezinnen is dit de perfecte plek om te settelen. Met gezellige speeltuinen, leuke kindvriendelijke cafés en scholen in de buurt, hoef je je hier nooit te vervelen.

**Een droomwoning voor starters en jonge gezinnen**

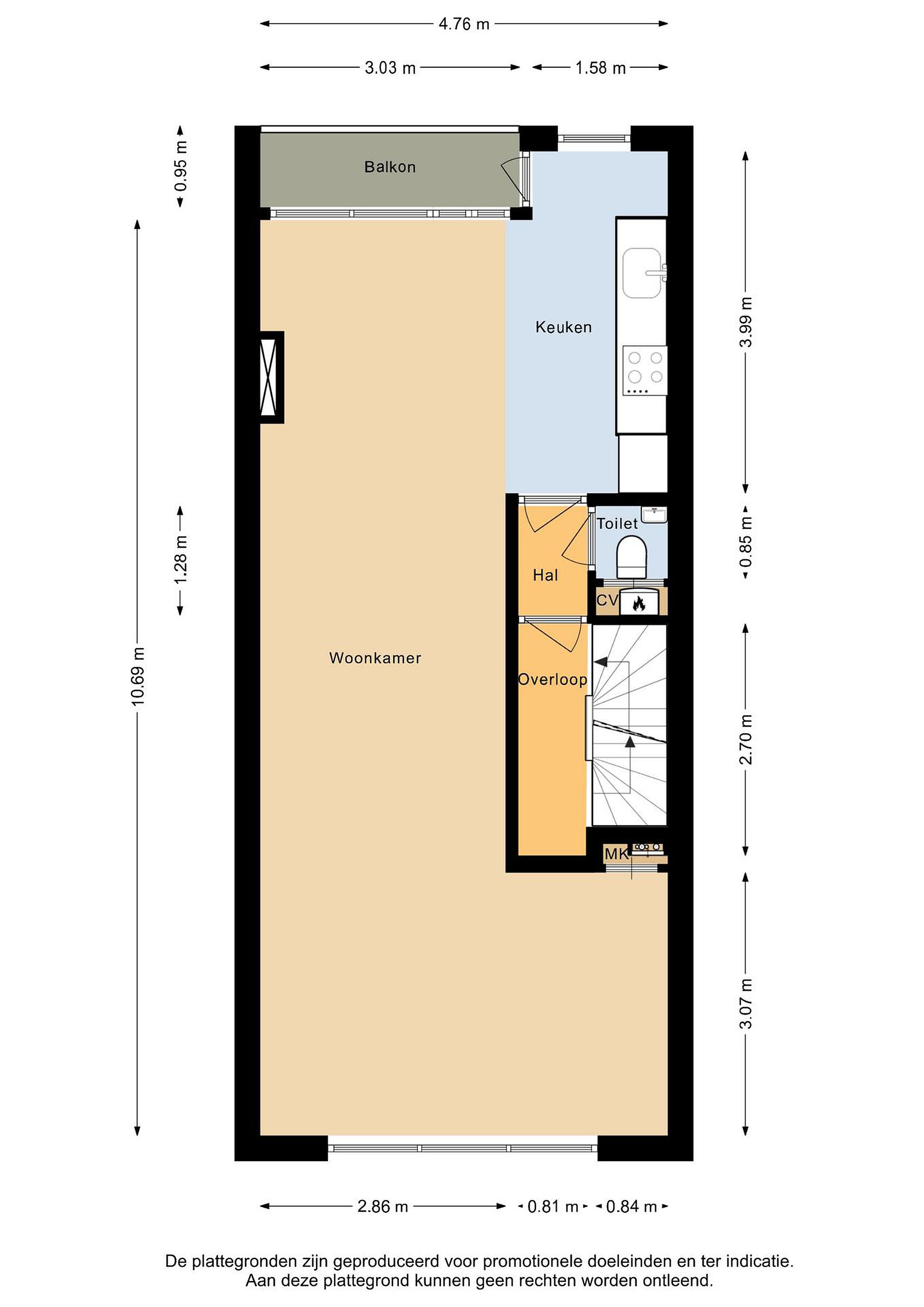
Stap binnen in dit prachtige appartement aan de Millinxstraat 26-B02 en laat je betoveren door de ruimte en het comfort. Dit dubbele bovenhuis, gelegen op de 2e en 3e etage, van 100m2 is volledig gerenoveerd en klaar om betrokken te worden. De woonetage kenmerkt zich door de vele lichtinval in de doorzonwoonkamer.

**Moderne faciliteiten voor optimaal woongenot**

De nieuwe inbouwkeuken is een waar pronkstuk en biedt alle ruimte en gemak om de lekkerste maaltijden te bereiden. De ruime nieuwe badkamer is een oase van rust en ontspanning. Met maar liefst 2 comfortabele slaapkamers is er genoeg ruimte voor het hele gezin.

**Wonen in Feijenoord: Jouw thuis in bruisend Rotterdam**

Ontdek de levendigheid van Rotterdam vanuit je eigen stekje in Feijenoord. Met goede verbindingen naar het centrum en alle voorzieningen binnen handbereik, is dit de ideale locatie voor jonge gezinnen die willen genieten van alles wat de stad te bieden heeft.

Aarzel niet langer en maak van deze kant en klare woning jouw nieuwe thuis. Maak snel een afspraak voor een bezichtiging en wie weet ben jij binnenkort de trotse eigenaar van dit fantastische appartement in Feijenoord.

- Nieuw gerenoveerd
- Nieuwe luxe keuken met apparatuur
- Ruime slaapkamers
- Ruime en nieuwe badkamer met inloopdouche
- Nieuwe vloer door hele woning

* Foto's met meubilair zijn met AI gegenereerd
Lees meer

Kenmerken

Overdracht

Prijs per m2
€ 3.500
Aangeboden sinds
1 oktober 2025
Status
Beschikbaar
Aanvaarding
Direct

Bouw

Soort appartement
Bovenwoning, dubbel bovenhuis
Soort bouw
Bestaande bouw
Bouwjaar
1931
Soort dak
Zadeldak
Staat van onderhouden binnen
Uitstekend
Staat van onderhouden buiten
Uitstekend

Oppervlakte en inhoud

Indeling

Aantal kamers
3
Aantal slaapkamers
2
Aantal woonlagen
2
Voorzieningen
Balkon, ventilatie

Buitenruimte

Balkon
Ja
Schuur/berging
Nee

Maandlasten berekenen

De maandlasten voor je woning bestaan uit meer dan alleen de hypotheeklasten. Hieronder vind je een overzicht van de bijkomende kosten en lasten. Zo weet je precies wat je huis per maand gaat kosten. En met de handige vergelijkers kun je ook nog eens snel de beste deals sluiten!

  • Kaart
  • Streetview