Noordenweg 53 2984 AG Ridderkerk

66m2
Wonen
4
Kamers
0m2
Perceel
1965
Bouwjaar
Op zoek naar een licht, ruim en praktisch ingedeeld appartement op een rustige plek, maar toch dichtbij het centrum? Dan is dit appartement zeker het bekijken waard!

Dit goed onderhouden 4-kamerappartement ligt op de tweede verdieping van een kleinschalig appartementencomplex in de wijk Donkersloot. Hier woon je in alle rust, terwijl je toch profiteert van de nabijheid van winkels, supermarkten, openbaar vervoer én de gezellige dorpskern van Ridderkerk. Binnen drie autominuten bereik je de A15, waarmee je snel in Rotterdam of Dordrecht bent.

De woning zelf biedt verrassend veel ruimte en comfort. De lichte woonkamer is voorzien van grote ramen die zorgen voor een fijne sfeer. Ruim balkon aan de achterzijde een fijne plek om te ontspannen met een kop koffie of een goed boek.

Met in totaal drie slaapkamers, een gesloten keuken met inbouwapparatuur en een nette badkamer, is dit appartement praktisch ingericht en geschikt voor uiteenlopende woonwensen. Of je nu starter bent, op zoek bent naar een betaalbare gezinswoning, of juist een rustige plek zoekt met alles binnen handbereik – dit appartement heeft het allemaal.

Daarnaast beschik je over een eigen berging in de onderbouw en parkeren voor de deur.

Begane grond
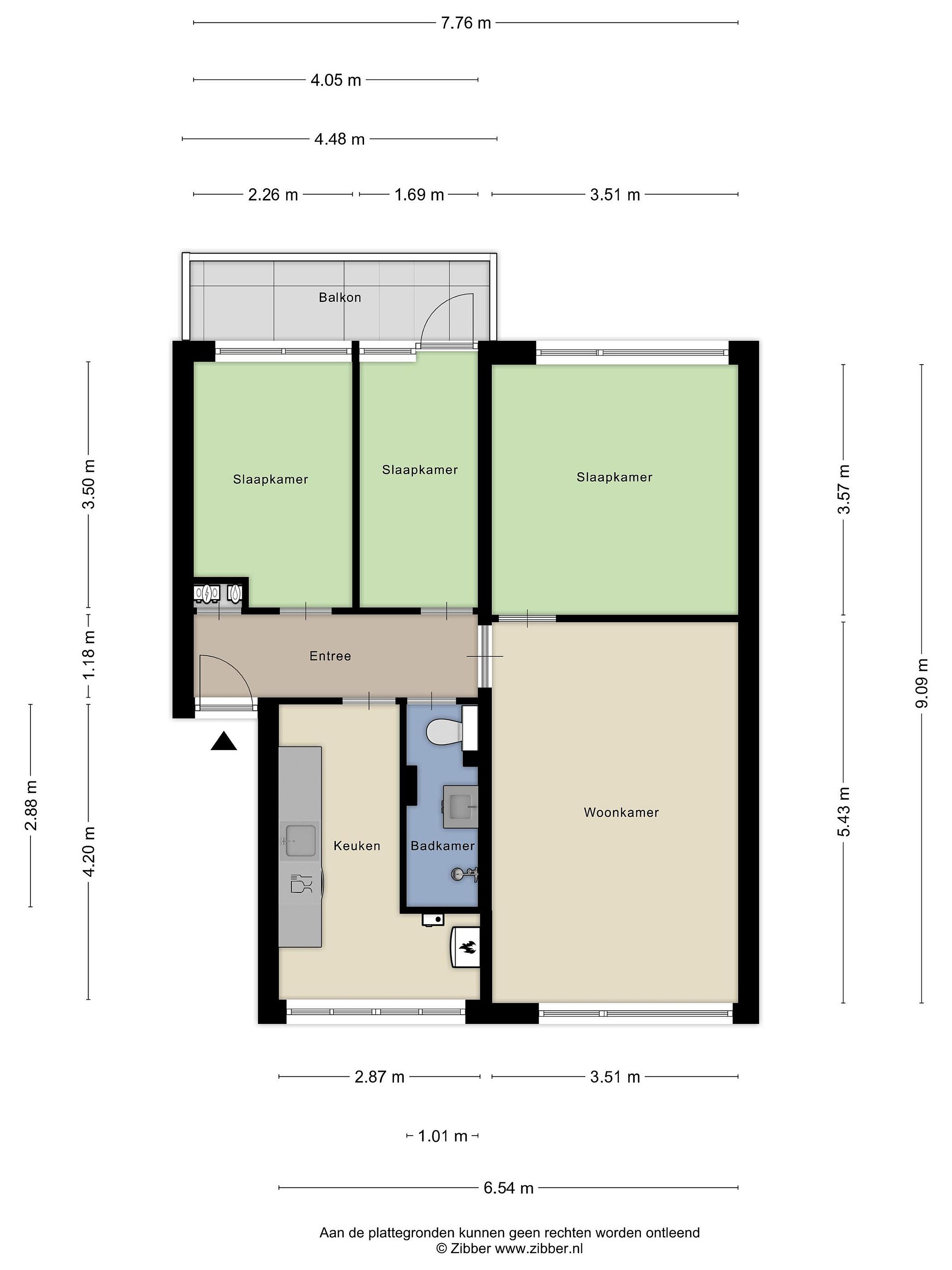
Zodra je het appartement binnenstapt, kom je in de centrale hal die fungeert als het hart van de woning. Vanuit hier heb je toegang tot vrijwel alle ruimtes, wat zorgt voor een prettige, logische indeling.
Aan de voorzijde van het appartement bevindt zich de woonkamer, waar de grote raampartijen direct de aandacht trekken. Het natuurlijke daglicht stroomt hier royaal naar binnen en zorgt voor een open en frisse sfeer. Deze ruimte nodigt uit tot ontspannen: een gezellige zithoek, een fijne leesplek of juist een werkplek – alles voelt hier ruimtelijk en licht aan.
Aangrenzend aan de woonkamer ligt een veelzijdige kamer, momenteel ingericht als royale slaapkamer, maar zeker ook geschikt als eetkamer, werkruimte of hobbykamer. Dankzij de directe verbinding met de woonkamer kun je deze kamer gemakkelijk betrekken bij je leefruimte voor nog meer comfort en flexibiliteit.

Aan de andere kant van het appartement vind je de gesloten keuken. Deze is functioneel ingedeeld, voorzien van een inbouwkookplaat en een vaatwasser, en biedt voldoende kastruimte om al je keukenspullen netjes op te bergen.
Via de hal bereik je daarnaast nog twee extra slaapkamers, beiden goed van formaat en ideaal in te richten als kinderkamer, logeerkamer of thuiskantoor. Hierdoor biedt het appartement volop mogelijkheden voor gezinnen, stellen of mensen die graag extra ruimte hebben. Vanuit de middelste slaapkamer heb je directe toegang tot het ruime balkon aan de achterzijde, waar je in alle rust kunt genieten van een kop koffie of een moment voor jezelf. Dankzij de ligging op het noorden is het hier ook op warme dagen goed toeven.
De badkamer is praktisch ingericht en beschikt over een inloopdouche, een modern wastafelmeubel en een wandcloset. Alles wat je nodig hebt is hier aanwezig, afgewerkt in een nette en verzorgde stijl.
Als extra pluspunt beschik je over een eigen berging op de begane grond, ideaal voor het stallen van je fiets, seizoensspullen of wat extra voorraad. Wel zo handig!

Details
Energielabel C
Bouwjaar 1965.
Woonoppervlak ca. 66 m2 .
Geheel voorzien van dubbele beglazing en kunststof kozijnen.
Verwarming en Warm water via CV ketel
Moderne groepenkast
Ruim balkon
Eigendom belast met erfpacht, het betreft eeuwigdurend recht van erfpacht
Actieve VvE, bijdrage € 176,27 per maand (inclusief bijdrage erfpachtcanon)
Ruime privéberging op begane grond ca. 5 m2
Gratis parkeren voor de deur


Benieuwd geworden?
Maak snel een afspraak voor een bezichtiging en laat je verrassen door de ruimte, de lichtinval en de fijne ligging van dit comfortabele appartement. Je bent van harte welkom aan de Noordenweg 53 in Ridderkerk.

ONZE TIP: Schakel direct uw eigen aankoopmakelaar in. Uw aankoopmakelaar komt op voor uw belang en bespaart u veel tijd, geld en zorgen. Wij zijn de makelaar van de verkoper.

“Ahuys Makelaars vermeld nadrukkelijk dat deze informatieverstrekking niet als aanbieding of offerte mag worden beschouwd. Deze dient slechts als uitnodiging tot het maken van een afspraak tot bezichtiging en het doen van een bod. Aan deze gegevens kunnen geen rechten worden ontleend.”

“Deze informatie is door ons met de nodige zorgvuldigheid samengesteld. Onzerzijds wordt echter geen enkele aansprakelijkheid aanvaard voor enige onvolledigheid, onjuistheid of anderszins, dan wel de gevolgen daarvan. Alle opgegeven maten en oppervlakten zijn indicatie”

Lees meer

Kenmerken

Overdracht

Prijs per m2
€ 4.015
Aangeboden sinds
19 september 2025
Status
Beschikbaar
Aanvaarding
Direct

Bouw

Soort appartement
Bovenwoning, appartement
Soort bouw
Bestaande bouw
Bouwjaar
1965
Soort dak
Plat dak
Staat van onderhouden binnen
Uitstekend
Staat van onderhouden buiten
Uitstekend

Oppervlakte en inhoud

Inhoud van de woning
216 m3
Oppervlakte externe bergruimte
4 m2

Indeling

Aantal kamers
4
Aantal slaapkamers
3
Aantal woonlagen
1
Voorzieningen
Balkon

Buitenruimte

Balkon
Ja
Schuur/berging
Nee

Maandlasten berekenen

De maandlasten voor je woning bestaan uit meer dan alleen de hypotheeklasten. Hieronder vind je een overzicht van de bijkomende kosten en lasten. Zo weet je precies wat je huis per maand gaat kosten. En met de handige vergelijkers kun je ook nog eens snel de beste deals sluiten!

  • Kaart
  • Streetview