Verkocht

Muntstraat 1 3911 KJ Rhenen

114m2
Wonen
3
Kamers
0m2
Perceel
1950
Bouwjaar
Zoekt u een ruim en licht 3-kamerappartement met een groot dakterras en unieke ligging?
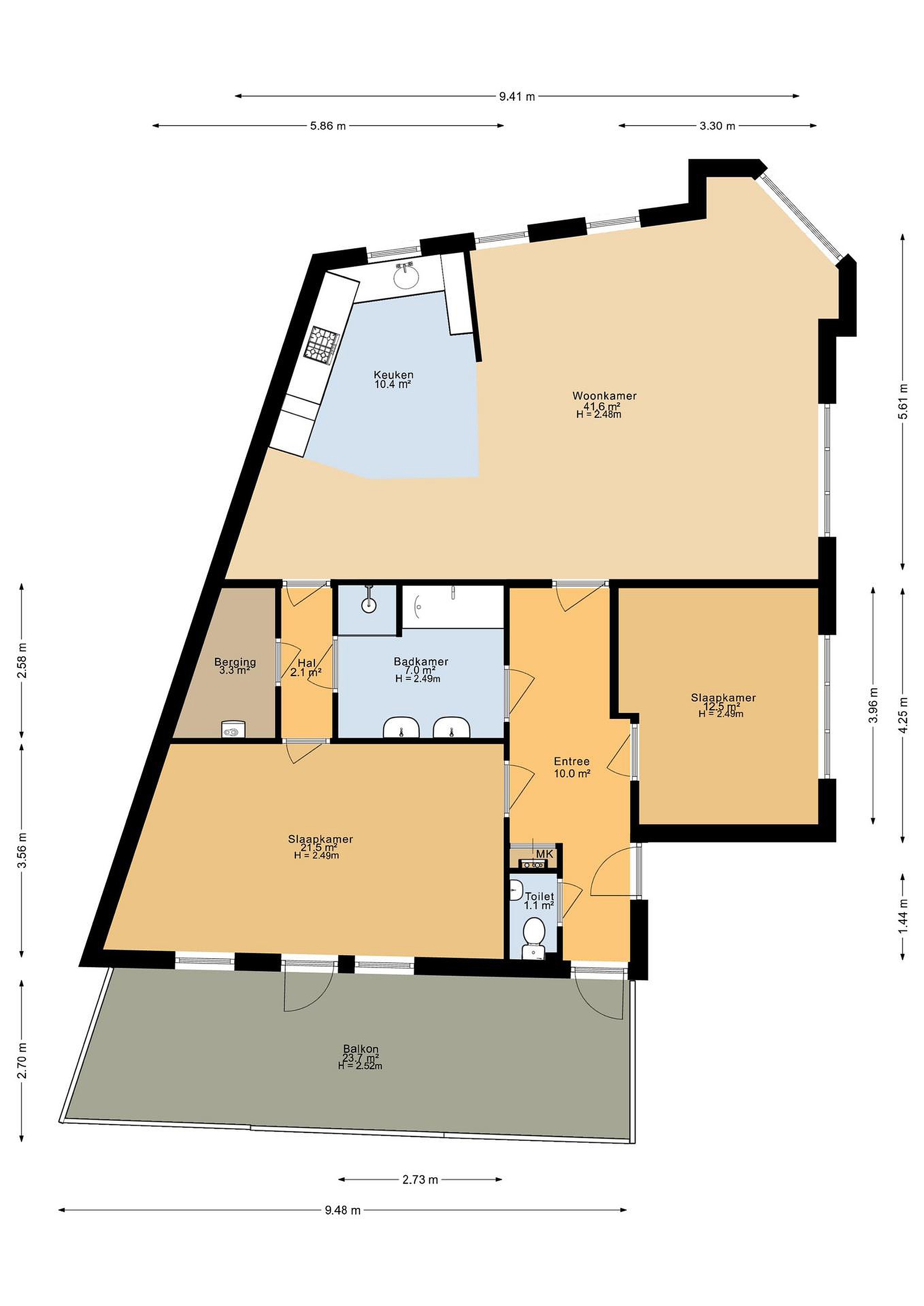
Dan mag u deze kans op de Muntstraat 1 in het hart van Rhenen niet missen. Dit sfeervolle en keurig onderhouden appartement ligt in een kleinschalig complex, in een levendige en toch rustige woonomgeving. U woont hier midden tussen de winkels en gezellige restaurantjes, met alles op loopafstand, en tegelijkertijd geniet u van rust en privacy. Met een riante woonkamer, open keuken, 2 ruime slaapkamers en een keurige badkamer is dit een heerlijk appartement. De inpandige berging/bijkeuken geeft de woning de nodige praktische ruimte. Het grote overdekte terras op het zuiden met uitzicht op de Cuneratoren maakt het plaatje compleet. Hier kunt u in alle rust van het buitenleven genieten. Optioneel is er een ruime garagebox bij te kopen, waardoor u over extra bergruimte en een eigen parkeerplaats kunt beschikken.

Ligging
Terrasjes, speciaalzaken, supermarkten: al uw dagelijkse voorzieningen liggen letterlijk om de hoek, te midden van het historische centrum van Rhenen. De uiterwaarden van de Rijn en de Utrechtse Heuvelrug bieden prachtige wandel- en fietsroutes. Parkeren kan om de hoek of in de garagebox die separaat wordt aangeboden. Liever met de trein? Station Rhenen ligt op fietsafstand.

Begane grond
U komt het kleinschalige complex via de representatieve gemeenschappelijke entree binnen. Via het goed onderhouden trappenhuis bereikt u het appartement op
de eerste verdieping.

De woning
De ruime entree biedt ruimte voor een garderobe, vanuit de hal zijn alle vertrekken bereikbaar. Ook is er directe toegang tot het royale terras.
Woonkamer & open keuken
De ruime, lichte woonkamer is dankzij de royale raampartij met het unieke uitzicht een heerlijke leefruimte. De open keuken sluit hier logisch op aan, ideaal voor wie graag kookt en ondertussen in contact wil blijven met het gezelschap aan tafel. De ruimte nodigt uit tot een royale zithoek en eethoek.

Slaapkamers
De twee volwaardige slaapkamers bieden flexibiliteit: slapen, thuiswerken of logeren. Dankzij de rechte wanden en het fijne lichtinval zijn ze praktisch en geheel naar eigen wens in te richten.

Badkamer & toilet
Verzorgde badkamer met douche, bad en dubbele wastafel. Separaat toilet in de hal. Functioneel en netjes.

Buitenruimte
Het grote, overdekte terras op het zuiden is het pronkstuk van dit appartement. Hier geniet u in de zon en kijkt u uit op de Cuneratoren. Door de overkapping is het terras een groot deel van het jaar comfortabel te gebruiken.

Algemene gegevens
- Type woning: 3-kamerappartement
- Bouwjaar: 1950
- Aantal kamers: 3
- Aantal slaapkamers: 2
- Aantal badkamers: 1
- Parkeerruimte: In de omgeving en optioneel garagebox bij te kopen
- Aanwezig: riant dakterras
- Ligging tuin: zuid
- Balkon/dakterras: via het appartement

Technische gegevens
- Warmwatervoorziening: HR cv-ketel, Vaillant
- Verwarmvoorziening: HR cv-ketel, Vaillant
- Vloerverwarming: niet aanwezig
- Mechanische ventilatie: aanwezig
- Isolatie: spouwisolatie aanwezig
- Dubbel glas: geheel
- Kozijnen: aluminium en hout

WILT U EVEN BINNEN KIJKEN?

Voor meer informatie omtrent deze woning, kunt u contact opnemen met ons kantoor in Rhenen.

U bent van harte welkom! De beste indruk van deze woning krijgt u natuurlijk tijdens een bezichtiging. Wij proberen onze bezichtigingen altijd in samenspraak met verkoper en koper te plannen en nemen ruim de tijd, zodat u op uw gemak de woning kan bekijken en ervaren.
N.B. Aan de samenstelling van deze gegevens is maximale zorg besteed. Aan onvolkomenheden in de vermelde gegevens en tekeningen kunnen geen rechten en aanspraken worden ontleend.
Lees meer

Verkoopgeschiedenis

Aangeboden sinds
21 november 2025
Verkoopdatum
3 april 2026
Looptijd
4 maanden

Kenmerken

Overdracht

Prijs per m2
€ 3.504
Aangeboden sinds
21 november 2025
Status
Verkocht
Aanvaarding
In overleg

Bouw

Soort appartement
Bovenwoning, appartement
Soort bouw
Bestaande bouw
Bouwjaar
1950
Soort dak
Plat dak
Staat van onderhouden binnen
Goed
Staat van onderhouden buiten
Goed

Oppervlakte en inhoud

Inhoud van de woning
349 m3
Oppervlakte gebouwgebonden buitenruimten
24 m2

Indeling

Aantal kamers
3
Aantal slaapkamers
2
Aantal woonlagen
1
Voorzieningen
Balkon, schuur/berging, ventilatie, kabel-tv, glasvezel

Buitenruimte

Balkon
Ja
Schuur/berging
Ja

Maandlasten berekenen

De maandlasten voor je woning bestaan uit meer dan alleen de hypotheeklasten. Hieronder vind je een overzicht van de bijkomende kosten en lasten. Zo weet je precies wat je huis per maand gaat kosten. En met de handige vergelijkers kun je ook nog eens snel de beste deals sluiten!

  • Kaart
  • Streetview