Verkocht

Lange Kerkstraat 18B 3417 HJ Montfoort

34m2
Wonen
2
Kamers
0m2
Perceel
1985
Bouwjaar
Betaalbaar wonen in Montfoort? Het kan en wel in dit leuke appartement gelegen in het centrum van Montfoort. Dit appartement is onderdeel van een recent gesplitst pand waarbij er 3 appartementsrechten zijn ontstaan. Wij bieden nu op de 2e verdieping dit appartement aan. Het geheel is zowel van binnen als buiten goed onderhouden. Door de grote dakramen rondom is het een heel licht en sfeervol appartement.

De vloer en wandafwerking is keurig netjes dus het is echt een kwestie van je spullen oppakken en je kunt zo verhuizen. Je woont midden in het centrum dus de gezellige horeca van Montfoort is letterlijk om de hoek. En uiteraard tref je ook alle winkels op loopafstand aan. Een leuk goed onderhouden en betaalbaar appartement en jij kunt hier de nieuwe eigenaar van worden! Bel ons wij laten je graag zien wat misschien jouw nieuwe woning kan worden.
Begane grond
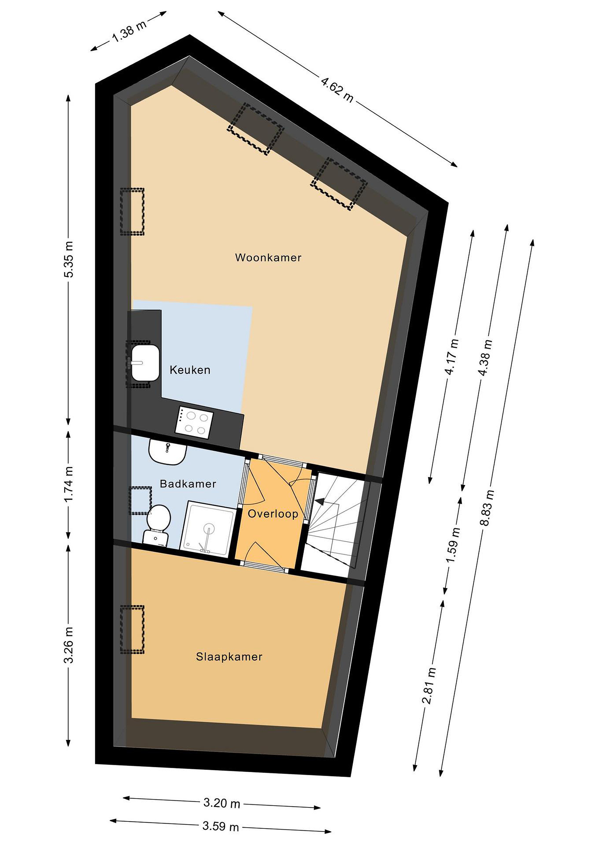
Entree met trapopgang naar het appartement. Deze ruimte fungeert als een gemeenschappelijk berging. Via de trap kom je bij de voordeur van het appartement. De entree geeft toegang naar de badkamer, slaapkamer en woonkamer. De woonkamer heeft een open keuken en rondom zijn er dakramen waardoor veel licht naar binnen komt. De keuken is voorzien van een nieuwe kookplaat met afzuigkap. Verder is er dan nog een losse koelkast.

Vanuit de hal bereik je de nette badkamer met toilet, wastafel, douchecabine en handdoekradiator.

De slaapkamer beschikt ook over een dakraam en is net zoals het hele appartement voorzien van een fraaie pvc vloer.

Details
- bijdrage VVE € 45,-- per maand

Lees meer

Verkoopgeschiedenis

Aangeboden sinds
26 februari 2026
Verkoopdatum
23 maart 2026
Looptijd
25 dagen

Kenmerken

Overdracht

Prijs per m2
€ 6.676
Aangeboden sinds
26 februari 2026
Status
Verkocht
Aanvaarding
In overleg

Bouw

Soort appartement
Bovenwoning, appartement
Soort bouw
Bestaande bouw
Bouwjaar
1985
Soort dak
Plat dak
Staat van onderhouden binnen
Goed
Staat van onderhouden buiten
Goed

Oppervlakte en inhoud

Indeling

Aantal kamers
2
Aantal slaapkamers
1
Aantal woonlagen
2
Voorzieningen

Buitenruimte

Balkon
Nee
Schuur/berging
Nee

Maandlasten berekenen

De maandlasten voor je woning bestaan uit meer dan alleen de hypotheeklasten. Hieronder vind je een overzicht van de bijkomende kosten en lasten. Zo weet je precies wat je huis per maand gaat kosten. En met de handige vergelijkers kun je ook nog eens snel de beste deals sluiten!

  • Kaart
  • Streetview