Verkocht

Lange Kerkstraat 18A 3417 HJ Montfoort

36m2
Wonen
2
Kamers
0m2
Perceel
1985
Bouwjaar
Betaalbaar wonen in Montfoort? Het kan en wel in dit leuke appartement gelegen in het centrum van Montfoort. Dit appartement is onderdeel van een recent gesplitst pand waarbij er 3 appartementsrechten zijn ontstaan. Wij bieden nu op de 1e verdieping dit appartement aan. Het geheel is zowel van binnen als buiten goed onderhouden. Door de grote ramen rondom is het een heel licht appartement en je hebt ook nog een balkon dat op het zuiden ligt!

De vloer en wandafwerking is keurig netjes dus het is echt een kwestie van je spullen oppakken en je kunt zo verhuizen. Je woont midden in het centrum dus de gezellige horeca van Montfoort is letterlijk om de hoek. En uiteraard tref je ook alle winkels op loopafstand aan. Dus een leuk goed onderhouden en betaalbaar appartement en jij kunt hier de nieuwe eigenaar van worden! Bel ons wij laten je graag zien wat misschien jouw nieuwe woning kan worden.
Begane grond
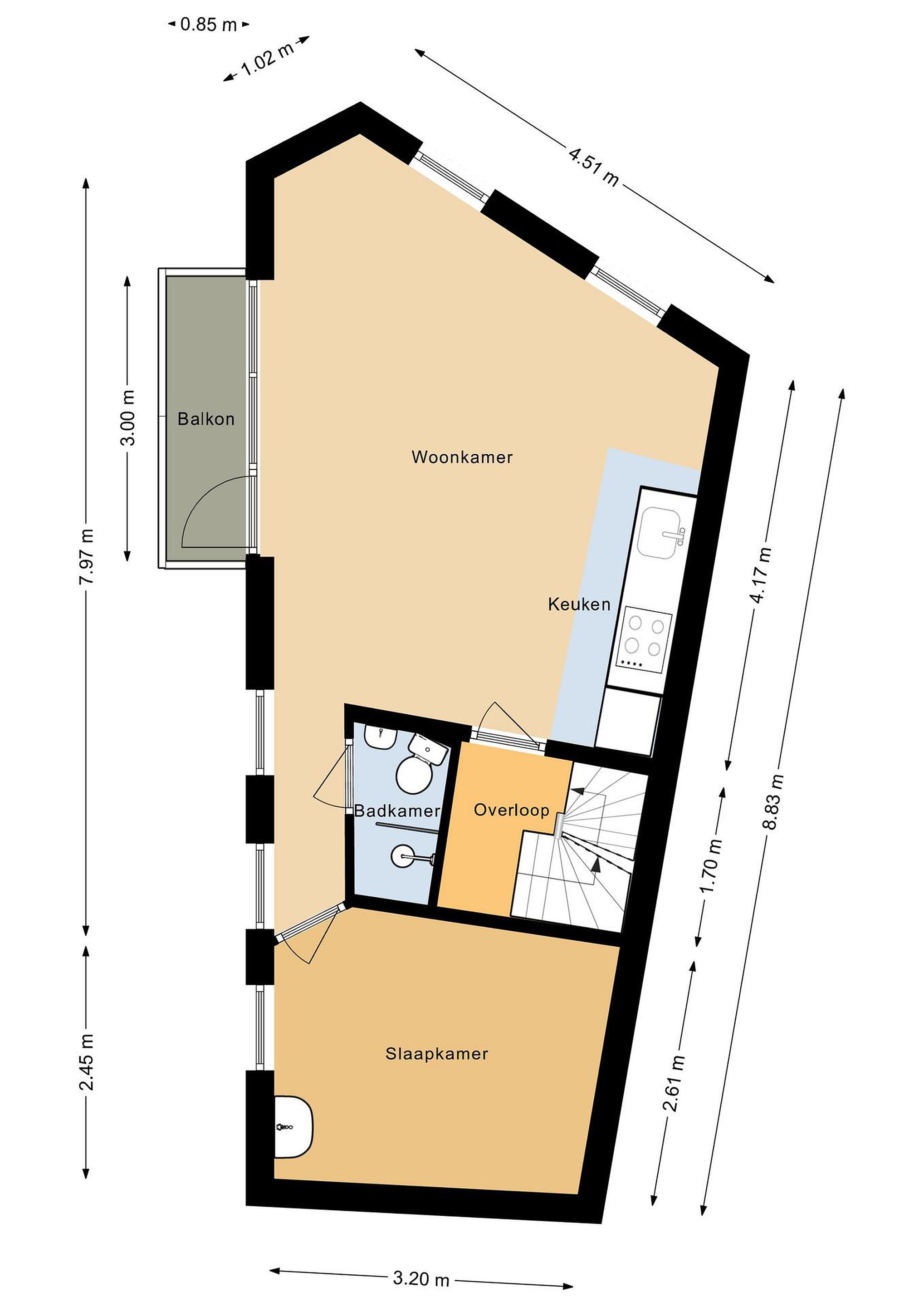
Entree met trapopgang naar het appartement. Deze ruimte fungeert als een gemeenschappelijk berging. Via de trap kom je bij de voordeur van het appartement. Bij binnenkomst zie je gelijk hoe licht het hier is. Je treft rondom grote draai / kiepramen aan en de toegangsdeur naar het balkon. De open keuken is voorzien van een inductie kookplaat met afzuigkap en de nodige kastruimte. Het balkon ligt op het zuiden en hier kun je dus lekker in de zon zitten. Verder is het nog fijn dat alle ramen zijn voorzien van nette rolgordijnen.

De gang geeft dan toegang naar de badkamer met douchecabine, wastafel en toilet. En aan het eind van de gang heb je dan de slaapkamer met een apart wastafelmeubel.

Details
VVE bijdrage € 50,-- per maand

Lees meer

Verkoopgeschiedenis

Aangeboden sinds
26 februari 2026
Verkoopdatum
10 april 2026
Looptijd
één maand

Kenmerken

Overdracht

Prijs per m2
€ 7.115
Aangeboden sinds
26 februari 2026
Status
Verkocht
Aanvaarding
In overleg

Bouw

Soort appartement
Bovenwoning, appartement
Soort bouw
Bestaande bouw
Bouwjaar
1985
Soort dak
Plat dak
Staat van onderhouden binnen
Goed
Staat van onderhouden buiten
Goed

Oppervlakte en inhoud

Indeling

Aantal kamers
2
Aantal slaapkamers
1
Aantal woonlagen
2
Voorzieningen

Buitenruimte

Balkon
Nee
Schuur/berging
Nee

Maandlasten berekenen

De maandlasten voor je woning bestaan uit meer dan alleen de hypotheeklasten. Hieronder vind je een overzicht van de bijkomende kosten en lasten. Zo weet je precies wat je huis per maand gaat kosten. En met de handige vergelijkers kun je ook nog eens snel de beste deals sluiten!

  • Kaart
  • Streetview