Westhavendijk 6B 3241 LP Middelharnis

159m2
Wonen
3
Kamers
0m2
Perceel
2024
Bouwjaar
Te Koop: Luxueus Appartement aan de Westhavendijk 6B Middelharnis

Met uw eigen lift vanuit de parkeergarage naar uw appartement! hoe bijzonder is dat...

Ontdek het ultieme wooncomfort in dit prachtige nieuwbouw appartement aan de Westhavendijk, gelegen aan het water nabij het bruisende centrum van Middelharnis. Dit ruime appartement van circa 250m2 biedt alles wat u nodig heeft voor een stijlvol en comfortabel leven.

Omgeving:
Middelharnis is een sfeervol dorp met een rijke geschiedenis en tal van voorzieningen. Geniet van een ontspannen wandeling langs de haven of ontdek de gezellige winkels en restaurants in het centrum. Voor natuurliefhebbers zijn er prachtige fiets- en wandelroutes in de nabije omgeving. Bovendien zijn scholen, sportfaciliteiten en supermarkten allemaal binnen handbereik.

Mis deze unieke kans niet en maak een afspraak voor een bezichtiging. Uw nieuwe droomhuis wacht op u aan de Westhavendijk 6B!

Dit appartement wordt casco aan u opgeleverd en is per direct beschikbaar

https://www.ivdhinterieurontwerp.nl/ heeft ons al een handje geholpen met een maken van deze fantastische sfeerimpressies en zij helpt u graag verder met de daadwerkelijke inrichting van de woning. Geen verplichting uiteraard maar een mogelijkheid.
Begane grond
Op de begane grond bevinden zich de privé toegankelijke parkeergarage met vloerverwarming en een ruime slaap-/studeerkamer, tweede badkamer en technische ruimte. De garage in het souterrain is ook middels de privé lift bereikbaar. Tevens heeft het appartement ook de beschikking over een op het eigen terrein gelegen eigen carport met zonnepanelen en laadpaal. Deze is waarschijnlijk voor uw tweede auto of voor de visite.

Eerste verdieping
Op de eerste etage bevindt zich de privé entree en door middel van de privé lift komt u op de tweede etage.

Tweede verdieping
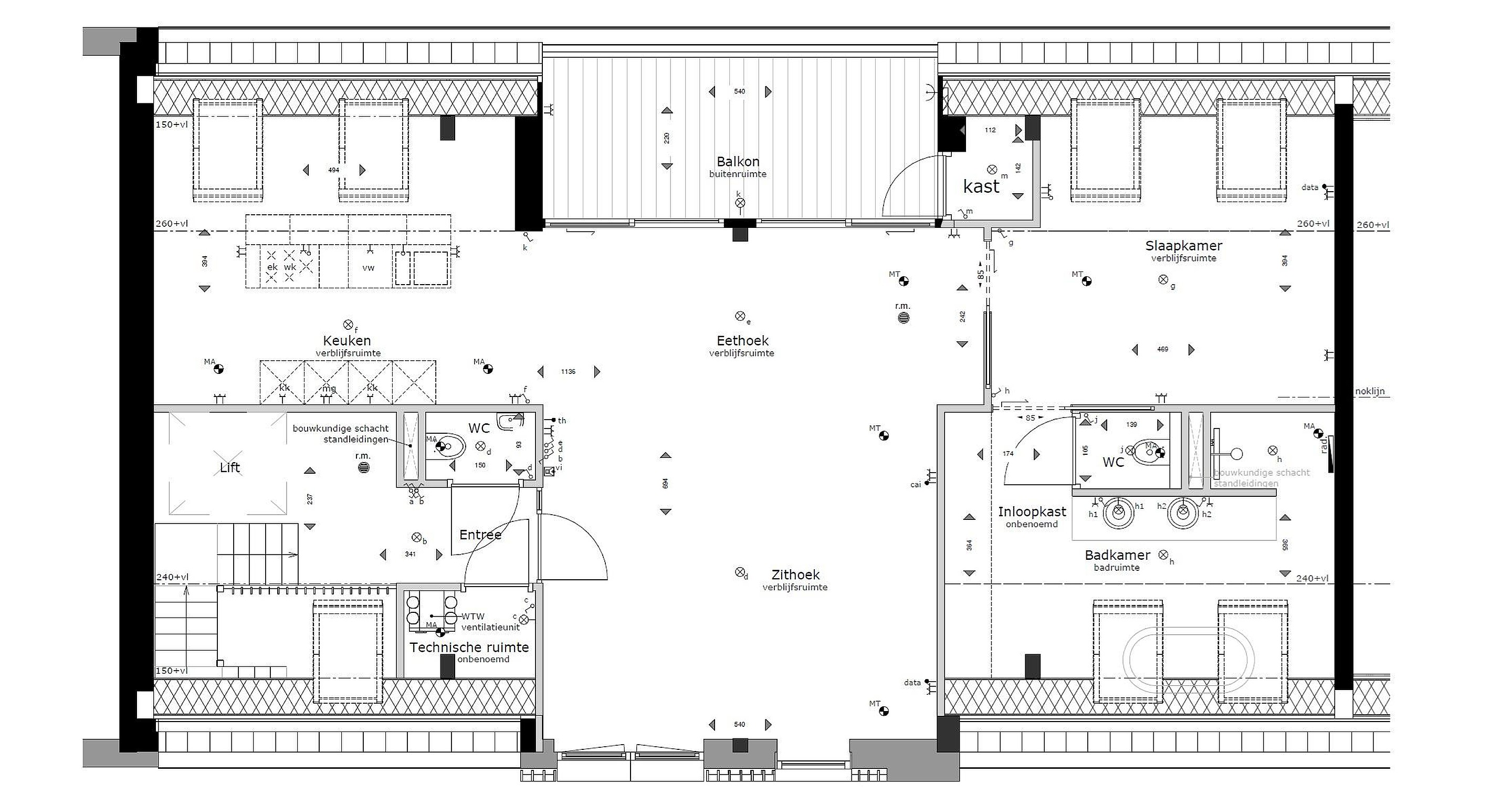
Hier bevinden zich de royale woonkamer met open keuken, het ruime balkon, de master bedroom is voorzien van een koelplafond met van daaruit toegang tot de walk in closet en de badkamer.

Details
Het appartement is gesitueerd in een modern gebouw met houten gevelbekleding dat wordt gekenmerkt door de langwerpige vorm met een licht hellend en verspringend klassiek zadeldak.

U kunt hier op duurzame wijze wonen aan het water, binnen het overwegend open landschap van Goeree-Overflakkee
Het uiterst luxe appartementencomplex Waterrijck aan de Westhavendijk, op steenworp afstand van de gezellige oude haven van Middelharnis. Goeree-Overflakkee is een veelzijdig eiland met een rijke geschiedenis.

U vindt hier eindeloze fiets- en wandelroutes langs allerlei bezienswaardigheden. Een Zuid-Hollands eiland o.a. omgeven door het Haringvliet, het Grevelingenmeer en de Noordzee. Een prachtige plek voor liefhebbers van diverse watersporten en natuurlijk ook van zon, zee en strand. Goeree-Overflakkee een veelzijdig eiland met voor ieder wat wils.

Wilt u ook wonen in Waterrijck? Neemt u dan contact met ons op voor verdere informatie.

De sfeerimpressies zijn ter indicatie, hieraan kunnen geen rechten worden ontleend

Lees meer

Kenmerken

Overdracht

Prijs per m2
€ 5.792
Aangeboden sinds
27 maart 2025
Status
Beschikbaar
Aanvaarding
Direct

Bouw

Soort appartement
Bovenwoning, appartement
Soort bouw
Bestaande bouw
Bouwjaar
2024
Soort dak
Dwarskap
Staat van onderhouden binnen
Uitstekend
Staat van onderhouden buiten
Uitstekend

Oppervlakte en inhoud

Inhoud van de woning
739 m3
Oppervlakte gebouwgebonden buitenruimten
11 m2
Oppervlakte overige inpandige ruimten
37 m2

Indeling

Aantal kamers
3
Aantal slaapkamers
2
Aantal woonlagen
2
Voorzieningen
Kabel-tv, glasvezel, lift, schuifpui

Buitenruimte

Balkon
Nee
Schuur/berging
Nee

Maandlasten berekenen

De maandlasten voor je woning bestaan uit meer dan alleen de hypotheeklasten. Hieronder vind je een overzicht van de bijkomende kosten en lasten. Zo weet je precies wat je huis per maand gaat kosten. En met de handige vergelijkers kun je ook nog eens snel de beste deals sluiten!

  • Kaart
  • Streetview