Verkocht

Nieuwe Noord 57 1621 EM Hoorn

62m2
Wonen
2
Kamers
0m2
Perceel
1880
Bouwjaar
Bieden vanaf € 325.000,- k.k.

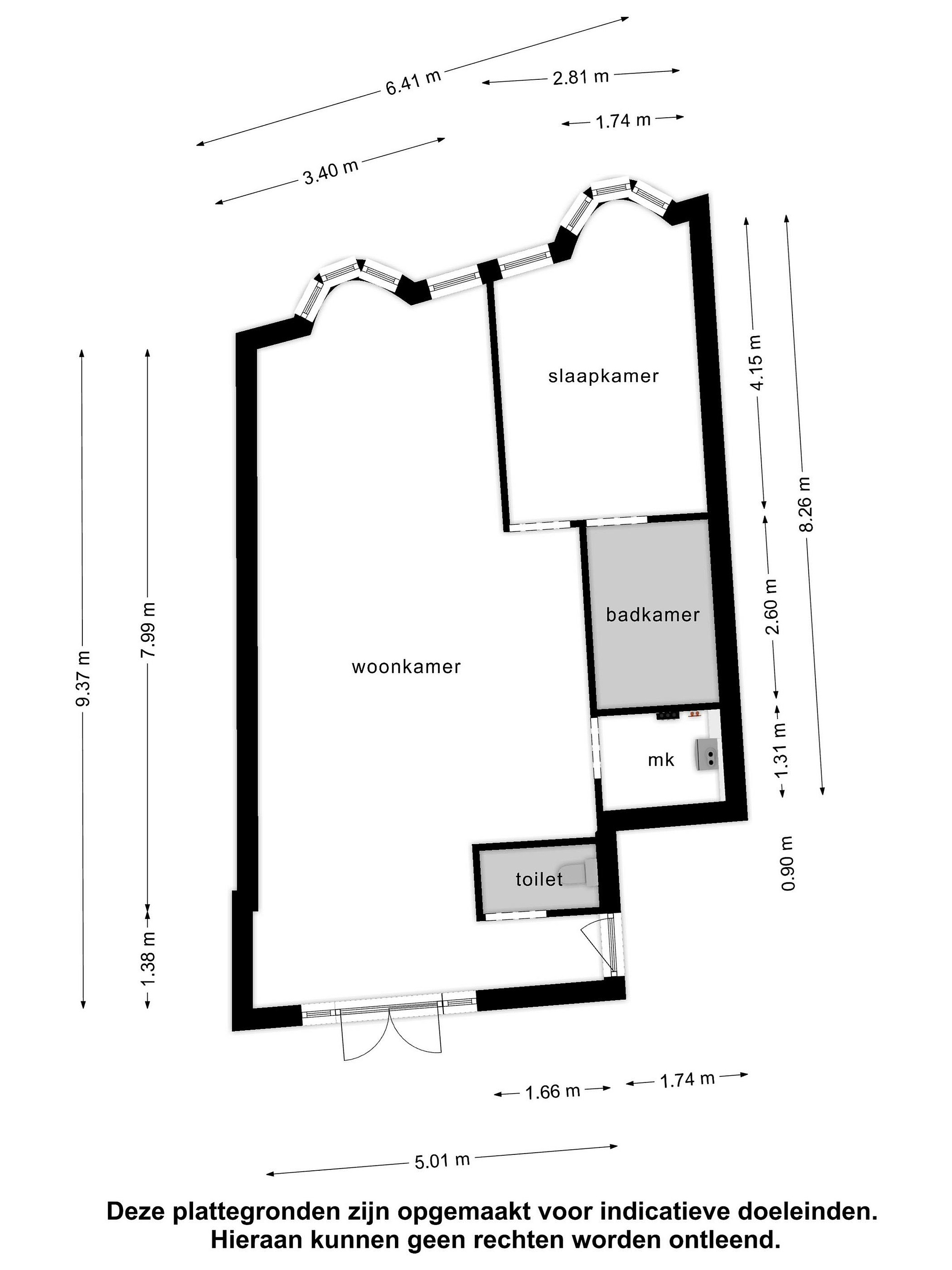
Wat een leuk appartement! In 2024 is dit ruime 2-kamer appartement met veel lichtinval op de 1e verdieping compleet gerenoveerd met een A-label. Het appartement heeft speelse ronde erkers met HR++ glas in de kozijnen, glas-in-lood in de bovenramen en openslaande deuren naar het gedeelde dakterras. Het betreft een kleinschalig project met 6 appartementen in hartje Hoorn op loopafstand van de gezellige haven, het horecaplein De Roode Steen, het station en het Stadsstrand. Naast de ruime living met moderne en complete keuken is er een ruime slaapkamer met en-suite een modern betegelde badkamer, separaat toilet en in de cv-ruimte staat al een wasmachine. Instapklaar dus…. en als dit jouw interesse heeft geprikkeld zien we je graag bij een bezichtiging!

Entree
Gezamenlijke entree met een nette diepe hal. De wanden zijn gesausd en op de vloer ligt donkere vloerbedekking. In de hal op de begane grond is er voor ieder appartement een eigen meterkast en een hoge trap geeft toegang tot een tussenverdieping naar het appartement 57.
Naast de voordeur is het toilet met modern betegelde wanden, wandcloset, fonteintje en een centraal afzuigsysteem.

Living
Ruime en sfeervolle living met stijlvolle erker met glas-in-lood in de bovenramen en zicht op de Nieuwe Noord. De wanden zijn gesausd en er ligt een pvc-vloer met vloerverwarming wat ook de hoofdverwarming is. Openslaande deuren geven toegang tot het dakterras en de wasmachine (die bij het appartement geleverd wordt) en CV staan in een ruime trapkast.

Keuken
In 2024 is een moderne Sense keuken in lichte kleurstelling geplaatst met kastruimte, vaatwasser, inductie kookplaat, afzuigkap, combimagnetron en koelkast met vriesvakje. Compleet dus!

Slaapkamer
Ruime slaapkamer met ook hier een stijlvolle ronde erker met glas-in-lood in de bovenramen en en-suite de badkamer. De pvc-vloer is doorgelegd in de slaapkamer en de wanden zijn gesausd. Echt een leuke kamer met volop ruimte voor een kledingkast.

Badkamer
De badkamer en-suite heeft modern betegelde wanden en dito vloer, de badkamer voorziet in een wastafelmeubel met 2 laden en spiegel met verlichting, inloopdouche met thermostaatkraan en drainafvoer, centraal afzuigsysteem en een elektrische sierradiator om de handdoeken droog en warm te maken.

Bijzonderheden:
- BESCHERMD STADSGEZICHT
- Vloerverwarming in hele appartement
- Wasmachine en raambekleding slaapkamer blijven achter
- VVE kosten € 166,18 per maand
- Energielasten ca. € 95,- per maand
- HR++ glas
- De VVE is in oprichting en wordt uitbesteed aan een professioneel beheerder
- A-label
Lees meer

Verkoopgeschiedenis

Aangeboden sinds
26 februari 2026
Verkoopdatum
27 maart 2026
Looptijd
één maand

Kenmerken

Overdracht

Prijs per m2
€ 5.242
Aangeboden sinds
26 februari 2026
Status
Verkocht
Aanvaarding
In overleg

Bouw

Soort appartement
Bovenwoning, appartement
Soort bouw
Bestaande bouw
Bouwjaar
1880
Staat van onderhouden binnen
Goed
Staat van onderhouden buiten
Goed

Oppervlakte en inhoud

Indeling

Aantal kamers
2
Aantal slaapkamers
1
Aantal woonlagen
1
Voorzieningen
Vve checklist, ventilatie

Buitenruimte

Balkon
Nee
Schuur/berging
Nee

Maandlasten berekenen

De maandlasten voor je woning bestaan uit meer dan alleen de hypotheeklasten. Hieronder vind je een overzicht van de bijkomende kosten en lasten. Zo weet je precies wat je huis per maand gaat kosten. En met de handige vergelijkers kun je ook nog eens snel de beste deals sluiten!

  • Kaart
  • Streetview